Version: 8.24.0Navigation überspringen
919.000 €
10 Zimmer  •  286,7 m²  •  1.170 m² Grundstück
Immowelt logo

Haus zum Kauf
919000 €
3.206 €/m²
10 Zimmer  •  286,7 m²  •  1.170 m² Grundstück

ZFH mit Pool und Salzgrotte auf großem Grundstück

Zum Verkauf steht ein großzügiges Zweifamilienhaus mit zwei separaten Wohneinheiten sowie einer zusätzlichen Gewerbeeinheit im Untergeschoss. Das im Jahr 1985 errichtete Gebäude befindet sich auf einem 1.170?m² großen Grundstück. Der Bodenrichtwert (Stand 2024) beträgt 550?€/m², woraus sich ein Bodenwert von rund 643.500?€ ergibt. Die Heizungsanlage wurde im Jahr 2010 durch eine Pelletheizung erneuert. Zusätzlich verfügt das Haus über 6 Solarthermie-Kollektoren zur Warmwasseraufbereitung. Die Betriebskosten des Hauses liegen monatlich bei ca. 690 €.

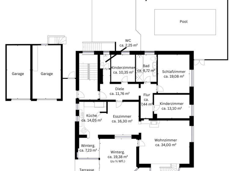
Erdgeschoss - 6 Zimmer - 194,53 m²:
Vom Eingangsbereich aus gelangen Sie zum Gäste-WC, dem Badezimmer, drei Schlafräumen sowie dem offenen Essbereich. Direkt angrenzend befinden sich die Küche und das helle Wohnzimmer mit Holzofen - das zentrale Herzstück der Wohnung. Über eine innenliegende Treppe erreichen Sie einen zusätzlichen, lichtdurchfluteten Raum im Obergeschoss mit großer Fensterfront. Ideal als Schlafzimmer, Atelier oder Studio. Ein Wintergarten (mit Markise), eine sonnige Südterrasse sowie ein gepflegter Garten mit kleinem Teich verleihen dieser Wohneinheit besonderen Charme. Eine Einzelgarage sowie ein separater Lagerraum im Kellergeschoss und eine Werkstatt bieten zusätzlichen Stauraum. Die Wohnung ist aktuell nicht bewohnt und sofort verfügbar.

Obergeschoss - 4 Zimmer - 92,15 m²:
Die gepflegte Etagenwohnung überzeugt durch vier helle Zimmer: ein großzügiges Wohnzimmer mit Holzofen, eine separate Küche mit integriertem Essbereich, zwei Schlafzimmer sowie ein Büro. Vom Wohnbereich aus haben Sie direkten Zugang zum überdachten Südbalkon. Das moderne Tageslichtbad ist mit Dusche, Badewanne und Waschmaschinenanschluss ausgestattet. Ein separates Gäste-WC sowie eine innenliegende Abstellkammer sorgen für zusätzlichen Komfort. Der Bereich vor dem Wohnungseingang wird derzeit als Garderobe genutzt und bietet außerdem Zugang zum Dachspeicher, der ebenfalls zur Verfügung steht. Zur Wohnung gehören außerdem eine Einzelgarage, ein eigener Kellerraum sowie die Mitbenutzung des Nordgartens mit Gartenhaus, Terrasse und überdachtem Pool. Die Wohnung ist seit 2022 für 950?€ kalt vermietet.

Kellergeschoss - Gewerbeeinheit und Lagerflächen - nicht in Wohnfläche:
Das Kellergeschoss bietet vielseitige Nutzflächen, darunter drei Lagerräume, eine Werkstatt, ein Waschraum mit Sauna, ein Pelletlager sowie den Heizraum. Die großzügige Gewerbeeinheit (99,72 m² Nutzfläche) umfasst zwei Salzoasen, einen Empfangsbereich mit Teeküche, einen großen Seminarraum sowie ein Badezimmer mit Dusche. Die Einheit ist ab Juli 2025 für 700?€ brutto vermietet.

Überzeugen Sie sich von der Immobilie in der virtuellen 360°-Tour! Diese erhalten Sie auf Anfrage von uns. Ebenso sind alle weiteren Unterlagen vollständig und perfekt vorbereitet und können jederzeit zur Verfügung gestellt werden.

Merkmale

  • Bezug: Nach Vereinbarung
  • 1.170 m² Grundstück
  • Einbauküche
  • 2 Stellplätze: 2 Garagen
+ ZFH mit zwei großen Wohneinheiten und einer Gewerbeeinheit im KG
+ Renovierung 2008: Fenster, Dämmung, Solarthermie, Pool
+ Heizung von 2010
+ ökologischer Umbau des 1. OG mit Lehmbauplatten, -putz und -farbe
+ großzügige Einfahrt und zwei Einzelgaragen
+ überdachter Pool und kleiner Teich
+ Gartenhäuschen und Müllhäuschen
+ großer Nord- (Nutzung OG-Wohnung) und Südgarten (Nutzung EG-Wohnung)
+ komplett freistehend, keine direkten Nachbarn

Erdgeschoss:
+ inkl. EBK mit angrenzendem Esszimmer
+ Holzofen im Wohnzimmer (von Kaminkehrer abgenommen)
+ Tageslichtbad mit Dusche und Badewanne, WM-Anschluss möglich
+ Gäste-WC am Eingangsbereich
+ innenliegende Treppe zu weiterem Zimmer mit Fensterfront
+ Wintergarten mit zusätzlicher Markise zur Beschattung

Obergeschoss:
+ inkl. moderner EBK
+ Holzofen im Wohnzimmer (von Kaminkehrer abgenommen)
+ Bad mit Waschmaschinenanschluss
+ Abstellkammer innerhalb der Wohnung
+ Dachspitz zum Lagern vor der Wohnung
+ überdachter Südbalkon

Kellergeschoss:
+ Gewerbeeinheit mit zwei Salzoasen, Seminarraum und Bad inkl. Dusche
+ Waschraum mit WM- und Trockneranschluss
+ mehrere Lagerräume
+ Heiz- und Lagerraum für Pellets
+ Werkstatt mit separatem Eingang

Grundrisse

Grundrisse
1 / 3

Realisiere Dein Projekt

Bausubstanz und Energie

Der Anbieter hat keine Informationen zum Energieverbrauch bereit gestellt.
  • Baujahr1985
  • Zustand der ImmobilieGepflegt
  • HeizungsartZentralheizung
Immowelt logo

Preisdetails

Kaufpreis
919000 €
3.205,66 €/m²
Provision für Käufer
2,99 % (inkl. MwSt.)
Weitere Preisinformationen
2 Garagenstellplätze
Geschätzte Gesamtkosten
997.023 €1
Kaufpreis
919.000 €
Notarkosten (1,5%)
13.785 €
Grunderwerbsteuer (3,5%)
32.165 €
Provision für Käufer (2,99%)
27.478 €
Grundbucheintrag (0,5%)
4.595 €
1Der angezeigte Wert ist eine automatisch berechnete Schätzung von immowelt.
2Bei den Angaben handelt es sich um ortsübliche Werte. Individuelle Kosten können abweichen.

Lage

address-icon
Hitzhofen (85122)
Der Anbieter hat die genaue Adresse nicht freigegeben
Hitzhofen ist eine kleine Gemeinde im Herzen des Altmühltals. Alle Geschäfte des täglichen Bedarfs (Edeka, Bäckerei, Metzger, Tankstelle) befinden Sie im benachbarten Eitensheim, nur 5 Fahrminuten entfernt. Ebenso erreichen Sie in ca. 20 Fahrminuten auf dem einfachsten Weg, über die B13, Ingolstadt oder Eichstätt. Hier finden Sie weitere Einkaufsmöglichkeiten, Ärzte, Apotheken, Schulen, Restaurants und vieles mehr. Im Ort selbst gibt es einen Kindergarten und eine Grund- und Mittelschule. Weiterführende Schulen sind in Gaimersheim, Ingolstadt oder Eichstätt. Eine Busanbindung ist gegeben. Hitzhofen bietet den perfekten Ort für Familien mit viel Natur in der die Energie wieder aufgetankt werden kann.

Weitere Informationen

Sonstiges Die Vermittlung dieser Immobilie erfolgt exklusiv durch DR Immobilien & Partners GmbH. Mit der Anfrage bei und durch Inanspruchnahme der Dienstleistung der Firma DR Immobilien & Partners GmbH, wird ein Maklervertrag geschlossen. Vom Käufer ist eine Vermittlungsprovision in Höhe von 3,57 % (inkl. 19 % MwSt.) vom vertraglich vereinbarten Kaufpreis, nach Abschluss des notariell beurkundeten Kaufvertrages, zu zahlen. Bitte beachten Sie zusätzlich unsere AGBs.

Wir weisen darauf hin, dass die von uns weitergegebenen Objektinformationen, Unterlagen, Pläne etc. vom Verkäufer stammen. Eine Haftung für die Richtigkeit oder Vollständigkeit der Angaben übernehmen wir daher nicht. Es obliegt daher unseren Kunden, die darin enthaltenen Objektinformationen und Angaben auf ihre Richtigkeit hin zu u?berpru?fen. Alle Immobilienangebote sind freibleibend und vorbehaltlich Irrtümer, Zwischenverkauf- und Vermietung oder sonstiger Zwischenverwertung. Stichworte Nutzfläche: 99,74 m², Anzahl der Schlafzimmer: 7, Anzahl der Badezimmer: 3, Anzahl der separaten WCs: 2, Anzahl Balkone und Terrassen: 3

Weitere Services

Lust auf eine Besichtigung?
Eine Frage zur Immobilie?
Nachricht hinzufügen
Mit der Nutzung der oben angegebenen Telefonnummer oder durch Klicken auf „Kontaktieren“ akzeptierst Du die Allgemeinen Nutzungsbedingungen, denen Du jederzeit widersprechen kannst. Weitere Informationen zum Datenschutz

Über den Anbieter

Milchstraße 9, 85049 Ingolstadt
Herr Dennis Richarz
Herr Dennis RicharzDein Kontakt
Online-ID: 2lq9b5m
Referenznummer: DRI-157625
DR Immobilien & Partners GmbH
title
DR Immobilien & Partners GmbH
Nachricht hinzufügen
Mit der Nutzung der oben angegebenen Telefonnummer oder durch Klicken auf „Kontaktieren“ akzeptierst Du die Allgemeinen Nutzungsbedingungen, denen Du jederzeit widersprechen kannst. Weitere Informationen zum Datenschutz
Wie zufrieden bist du mit dieser Seite (nicht mit der Immobilie selbst)?