Maisonette Wohnung mit traumhafter Dachterrasse im Stühlinger
Ihr Zuhause in Freiburg - sozial, lebenswert und nachhaltig! Ein Quartier voller guter Ideen!
Im Freiburger Stadtteil Stühlinger entsteht ein nachhaltiges, zukunftsfähiges und wertvolles Wohnquartier! Das Projekt wird in vier Bauabschnitten zwischen Ferdinand-Weiß-Straße und Bissierstraße realisiert. Insgesamt werden über 550 Wohnungen gebaut, davon etwa 75 % Mietwohnungen und etwa 25 % Eigentumswohnungen.
Das Metzgergrün ist ein wertvolles Quartier, das als Vorzeigeprojekt für urbanes und ökologisches Wohnen steht!
Hier entsteht ein Zuhause, in dem Menschen zusammenkommen und gemeinsam ihre Zukunft gestalten. Das Quartier hat die höchste Zertifizierung erhalten: das DGNB-Platin-Zertifikat. Die DGNB-Zertifizierung umfasst Kriterien aus fünf Themenfeldern des nachhaltigen Bauens (ökologisch, ökonomisch, soziokulturell, technisch und prozessual). Eine gute Investition in die Zukunft!
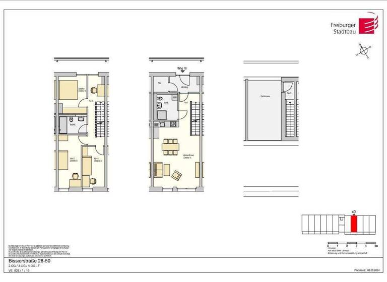
Die Freiburger Stadtbau errichtet aktuell in der ersten Bauphase einen viergeschossigen Gebäudekomplex an der Bissierstraße 28-50 mit 24 Eigentumswohnungen mit 4-5 Zimmern. Die Wohnungen sind als Maisonettewohnungen konzipiert und bieten Familien eine Art Haus in Haus Konzept.
Die Fertigstellung ist bis 31.08.2026 geplant.
Das Quartier besticht durch seine abwechslungsreiche Architektur in Massiv- und Holzbauweise und ein umfangreiches Nachhaltigkeitskonzept. Die Zeilen-, Punkt- und Winkelgebäude im Effizienzhaus-Standard 55 gruppieren sich um eine grüne Mitte, die von einem wunderschönen Bachlauf mit einladenden Uferzonen durchzogen wird. Der verkehrsberuhigte Charakter im Inneren, Spiel- und Freiflächen, die zum Verweilen einladen, machen das Viertel zu einem echten Hingucker.
Zusätzlich überzeugt das Quartier durch Umweltfreundlichkeit, eine ausgezeichnete Infrastruktur und innovative Mobilitätskonzepte - ergänzt durch Cafés, Gemeinschaftsangebote und Treffpunkte.
Merkmale
frei ab 31.08.2026
Personenaufzug
Keller
Balkon
Terrasse
Tiefgarage
. 4-5 Zimmer Maisonette-Wohnung über zwei Etagen . private Terrasse mit angrenzendem Gartenanteil im Erdgeschoss . privater Zugang und Briefkasten im EG . Vorgarten mit Fahrradbox im EG . 3-fach Wärmeschutzverglasung . Barrierefreies Wohnen - mit dem FSB-Maßnahmenkatalog . elektrische Rollläden als Sonnenschutz . Fußbodenheizung . Echtholz-Eichenparkett mit geölter Oberfläche . Wände und Decken mit hochwertigem Malervlies . moderne und geschmackvolle Sanitärobjekte namhafter Hersteller . bodengleiche Dusche . großformatige Fliesen in den Bädern . stilvolle Ausstattungselemente sowie verchromte Armaturen . Waschmaschinen- und Trockneranschlüsse in der Wohnung . zusätzlicher Handtuchheizkörper im Bad . Abluftanlage mit Außenluft-Nachströmelementen . Pkw-Stellplatz mit vorgerüsteter E-Ladestation (4- und 5-Zimmerwohnungen) . zusätzlicher Abstellraum im Keller
Grundrisse
Grundrisse
1 / 1
Realisiere Dein Projekt
Bausubstanz und Energie
Energieausweis
B
Baujahr2026
Zustand der Immobilieneuwertig
EnergieträgerFernwärme
Preisdetails
Kaufpreis
867000 €867.000 €
7.539,13 €/m²
Hausgeld
345.22 €345,22 €
Provision für Käufer
keine Käuferprovision! inkl. MwSt.
Weitere Preisinformationen
1 Tiefgaragenstellplatz
Geschätzte Gesamtkosten
958.642 €1
Kaufpreis
867.000 €
Kaufnebenkosten
91.642 €
2
Notarkosten (1,5%)
13.005 €
Grunderwerbsteuer (5%)
43.350 €
Provision für Käufer (3,57%)
30.952 €
Grundbucheintrag (0,5%)
4.335 €
1Der angezeigte Wert ist eine automatisch berechnete Schätzung von immowelt.
2Bei den Angaben handelt es sich um ortsübliche Werte. Individuelle Kosten können abweichen.
Lage
Betzenhausen, Freiburg im Breisgau (79114)
Der Anbieter hat die genaue Adresse nicht freigegeben
Das Quartier besticht durch seine Zentrumsnähe und die Urbanität des beliebten Stadtteils Stühlinger.
Die Straßenbahnlinien 1, 3 und 5 sind in unmittelbarer Nähe, der Hauptbahnhof in nur fünf Minuten erreichbar. Die Freiburger Innenstadt und die Universität sind in nur 10 Minuten mit dem Rad zu erreichen - eine perfekte Anbindung.
Und das Beste: Der Eschholzpark mit seinen großzügigen Wiesenflächen, schattenspendenden Baumbeständen, Spiel- und Aufenthaltsflächen ist gleich um die Ecke und bietet Erholungs- und Rückzugsräume, in denen Sie die Seele baumeln lassen können. Als wäre das nicht genug, sind zahlreiche Einkaufsmöglichkeiten, Cafés, Restaurants und eine lebendige Kulturszene nur einen Steinwurf entfernt. Auch Arztpraxen, Schulen und öffentliche Institutionen wie das Rathaus im Stühlinger oder das Regierungspräsidium sind in unmittelbarer Nähe.
Das Metzgergrün ist der ideale Wohnort für Menschen jeden Alters!
Weitere Informationen
Sonstiges
Die Wohnungen sind voraussichtlich bis zum 31.08.2026 bezugsfertig.
Großer Mehrwert: Ein Teil der Wohnungen hat eine Unterkellerung und einen direkten Zugang zur Tiefgarage. Die weiteren Wohnungen erhalten einen Abstellraum im Kellerbereich.
Die wunderschönen Dachterrassen bieten einen atemberaubenden 360-Grad-Rundblick, während die Privatgärten der Erdgeschosswohnungen Raum für entspannte Stunden im Grünen und individuelles Gärtnern ermöglichen.
Stichworte
Anzahl der Schlafzimmer: 3, Anzahl der Badezimmer: 2, Anzahl Balkone: 1, Anzahl Terrassen: 1, Distanz zum Kindergarten: 0.10, Distanz zur Grundschule: 0.90, Distanz zur Realschule: 0.90, Distanz zum Gymnasium: 0.60, Distanz zur Autobahn: 4.10, Distanz vom Zentrum: 2.00