




Einfamilienhaus zum Kauf449000 €1.604 €/m²10 Zimmer • 280,1 m² • 1.056,1 m² Grundstück
449000 €
1.604 €/m²
10 Zimmer • 280,1 m² • 1.056,1 m² Grundstück
Mehrgenerationenhaus mit Einliegerwohnung & großem Garten - attraktive Kapitalanlage in ruhiger Lage
Merkmale
- Bezug: nach Absprache
- 1.056,1 m² Grundstück
- Einbauküche
- Keller
- 2 Stellplätze
- Gäste-WC
- Balkon
- Garten
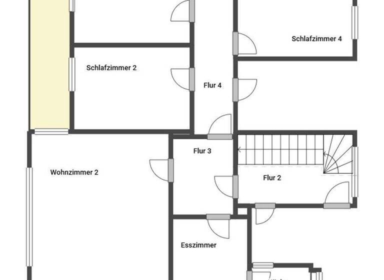
Grundrisse
Grundrisse
1 / 2
Virtueller Rundgang
3D tour

Realisiere Dein Projekt
Bausubstanz und Energie
Energieausweis
E
- Baujahr1980
- Zustand der ImmobilieGepflegt
- HeizungsartZentralheizung
- EnergieträgerÖl
Preisdetails
Kaufpreis
449000 €
1.603,57 €/m²
Provision für Käufer
Die Provision i.H.v. 3,57 % inkl. MwSt. ist mit Kaufvertragsbeurkundung fällig, sofern der Verkaufspreis über 83.000,00 € liegt.
Liegt der Verkaufspreis dagegen bei/unter 83. Weitere Informationen siehe Provisionshinweis.
Liegt der Verkaufspreis dagegen bei/unter 83. Weitere Informationen siehe Provisionshinweis.
Geschätzte Gesamtkosten
473.785 €1
Kaufpreis
449.000 €
Kaufnebenkosten
24.785 €
2Notarkosten (1,5%)
6.735 €
Grunderwerbsteuer (3,5%)
15.715 €
Provision für Käufer (0,02%)
90 €
Grundbucheintrag (0,5%)
2.245 €
1Der angezeigte Wert ist eine automatisch berechnete Schätzung von immowelt.
2Bei den Angaben handelt es sich um ortsübliche Werte. Individuelle Kosten können abweichen.
Lage

Pfaffenberg, Mallersdorf-Pfaffenberg (84066)
Der Anbieter hat die genaue Adresse nicht freigegeben
Weitere Informationen
Weitere Services
Lust auf eine Besichtigung?
Eine Frage zur Immobilie?
Über den Anbieter
Online-ID: 2n3gp5k
Referenznummer: 6a814f04e7
Wie zufrieden bist du mit dieser Seite (nicht mit der Immobilie selbst)?




