Version: 8.25.1Navigation überspringen
8,90 €
220 m² Bürofläche  •  teilbar ab 220 m²
Immowelt logo

Bürofläche zur Miete • provisionsfrei
8,90 €
/m²
220 m² Bürofläche  •  teilbar ab 220 m²

Lichtdurchflutetes City-Büro - Ausbau nach Mieterwunsch!

In zentraler Lage von Duisburg präsentiert sich diese Bürofläche im 2. Obergeschoss eines gepflegten Geschäftshauses als vielseitig nutzbare Einheit mit Entwicklungspotenzial. Auf rund 220 m² bietet die Fläche derzeit ein großzügiges Open-Space-Konzept, das sich ideal für moderne Arbeitsformen eignet und gleichzeitig die Möglichkeit eröffnet, die Raumstruktur individuell an die Bedürfnisse Ihres Unternehmens anzupassen.

Die Ausstattung ist funktional und auf den Büroalltag abgestimmt. Ein Teppichboden sorgt für eine angenehme Arbeitsatmosphäre und gute Akustik, während die vorhandene EDV-Verkabelung - nach Absprache anpassbar - eine zeitgemäße technische Infrastruktur ermöglicht. Die Kabelführung erfolgt dezent unter Putz. Pendelleuchten gewährleisten eine gleichmäßige Ausleuchtung der Arbeitsbereiche, und Anschlüsse für eine Teeküche sind bereits vorhanden, sodass sich Pausen- und Kommunikationszonen unkompliziert integrieren lassen.

Für zusätzlichen Komfort kann eine Kühlung der Fläche optional realisiert werden. Die Beheizung erfolgt effizient über Fernwärme. Ein Personenaufzug gewährleistet einen bequemen Zugang zur Büroeinheit und unterstreicht die Alltagstauglichkeit des Objekts. Parkmöglichkeiten stehen in den umliegenden Parkhäusern in ausreichender Anzahl zur Verfügung.

Diese Bürofläche überzeugt durch ihre flexible Nutzbarkeit, ihre zentrale Lage sowie die Möglichkeit, ein individuelles Raumkonzept zu verwirklichen - eine ideale Grundlage für Unternehmen, die Wert auf eine funktionale und zugleich anpassungsfähige Arbeitsumgebung legen.

Merkmale

  • Bezug: kurzfristig nach Vereinbarung
  • Barrierefrei
  • Personenaufzug
  • Teeküche
Bodenbelag: Teppichboden
EDV-Verkabelung: nach Absprache
Kabelführung: unter Putz
Kühlung: optional möglich
Küche: Anschlüsse vorhanden
Beleuchtung: Pendelleuchten
Aufzug: Personenaufzug
Heizung: Fernwärme
Barrierearm: ja
Achsmaß: uneinheitlich
Deckenhöhe: 2,50 m
Parkplätze: in nahe gelegenen Parkhäusern

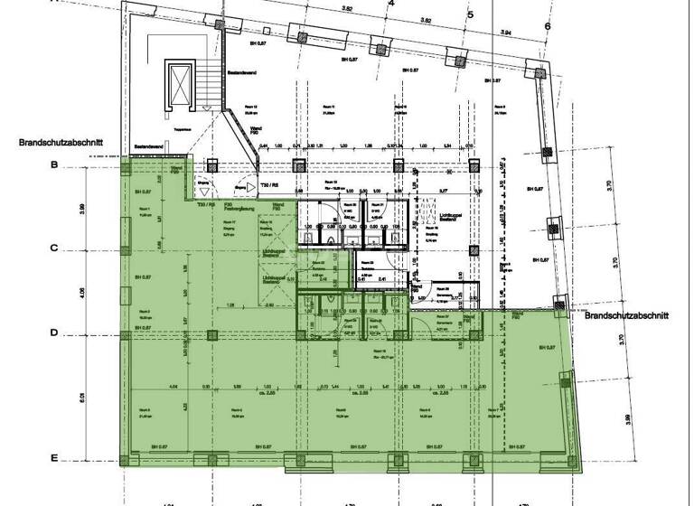
Grundrisse

Grundrisse
1 / 1

Realisiere Dein Projekt

Bausubstanz und Energie

Möchtest du Details zum Energieverbrauch?info_energy_calculation-icon
Immowelt logo

Mietkosten

Monatliche Miete
8,90 €/m²
Nebenkosten
3 €
Zusätzliche Kosten
Heizkosten
Provision für Mieter
provisionsfrei
Kaution
keine Angabe

Lage

address-icon
AltstadtDuisburg (47051)
Der Anbieter hat die genaue Adresse nicht freigegeben
Fußweg zu öffentl. Verkehrsmitteln: 1 Min.
Fahrzeit zum nächsten Hauptbahnhof: 7 Min.
Fahrzeit zur BAB: 6 Min.
Fahrzeit zum nächsten Flughafen: 21 Min.

Weitere Informationen

Sonstiges GEG 2020: Ein Energieausweis liegt zurzeit nicht vor.

Dieses Angebot ist provisionsfrei für den Mieter!

Alle Informationen in diesem Exposé beruhen auf Angaben, die wir vom Vermieter erhalten haben. Für Richtigkeit und Vollständigkeit übernehmen wir keine Gewähr. Zwischenvermietung vorbehalten. Die Grundrisse müssen nicht mit der aktuellen Raumaufteilung übereinstimmen und sind unmaßstäblich. Für Flächenangaben übernehmen wir keine Gewähr. In Planunterlagen eventuell abgebildete Möblierungen sind nicht Inhalt des Mietgegenstands.

Es gelten ausschließlich unsere AGB (www.cubion.de/agb). Stichworte Sonstiges: EDV-Verkabelung

Weitere Services

Lust auf eine Besichtigung?
Eine Frage zur Immobilie?
Mit einer persönlichen Nachricht hast du bessere Chancen auf eine Antwort.
Mit der Nutzung der oben angegebenen Telefonnummer oder durch Klicken auf „Kontaktieren“ akzeptierst Du die Allgemeinen Nutzungsbedingungen, denen Du jederzeit widersprechen kannst. Weitere Informationen zum Datenschutz

Über den Anbieter

Akazienallee 65, 45478 Mülheim
partner badge
3 Jahre Partnerschaft
Herr Tiziano SannaDein Kontakt
Online-ID: 26RP9UDXIP96
Referenznummer: 1868
CUBION Immobilien AG
CUBION Immobilien AG
Mit einer persönlichen Nachricht hast du bessere Chancen auf eine Antwort.
Mit der Nutzung der oben angegebenen Telefonnummer oder durch Klicken auf „Kontaktieren“ akzeptierst Du die Allgemeinen Nutzungsbedingungen, denen Du jederzeit widersprechen kannst. Weitere Informationen zum Datenschutz
Wie zufrieden bist du mit dieser Seite (nicht mit der Immobilie selbst)?