Schön gelegene Hochparterre-Wohnung mit Weitblick am Villaberg!
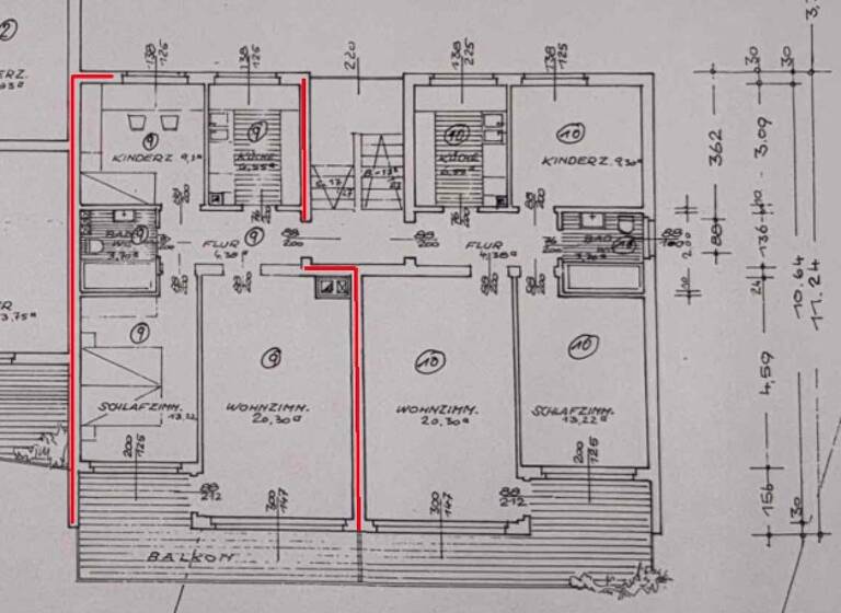
Diese gut geschnittene 3 Zimmer Wohnung mit ca. 63 m² Wohnfläche befindet sich im Erdgeschoss in einem 6-Parteienhaus und verfügt über einen tollen Ausblick am Villaberg. Sie besitzt neben dem Flur, 2 Schlafzimmer, ein Wohnzimmer, einen Küchenbereich sowie das Wannenbad mit Duschfunktion. Zudem hat die Wohnung ein Balkon auf dem Sie den herrlichen Weitblick am Villaberg genießen können. Außerdem gehört zu der Wohnung ein Kellerraum sowie ein KFZ-Stellplatz, der sich direkt am Haus befindet.
Die Wohnung wird vermietet verkauft und die Netto-Mieteinnahmen betragen jährlich 7.080 €.
Es gibt die Möglichkeit noch weitere Wohnungen in dem Mehrfamilienhaus zu kaufen.
HINWEIS: Sie erhalten direkt nach Ihrer schriftlichen Anfrage automatisiert innerhalb von max. 5-10 Minuten eine E-Mail mit Link zum Exposé mit der genauen Lage sowie weiteren Informationen. Sollte die E-Mail nicht im Posteingang zu finden sein, schauen Sie bitte in Ihrem Spam Ordner nach.
Merkmale
vermietet
Badewanne
Keller
Bodenbelag: Fliesen, Parkett
Balkon
Garten
Außen-Stellplatz
Waschraum
- Wohnung Nr. 9 Haus 11 EG rechts - Neues Dach 2025 - Gaszentralheizung 2020 - Kellerraum - Fahrradraum - Waschraum - KFZ-Stellplatz Nr. 28 exkl. - Balkon - Wannenbad mit Duschfunktion. - Stäbchenparkett und Fliesen - Rollläden - doppelt verglaste Aluminium-Fenster
Grundrisse
Grundrisse
1 / 1
Realisiere Dein Projekt
Bausubstanz und Energie
Energieausweis
E
Baujahr1965
Zustand der ImmobilieMassivhaus, Gepflegt
HeizungsartZentralheizung
EnergieträgerGas
Preisdetails
Kaufpreis
249900 €249.900 €
3.966,67 €/m²
Preis pro Stellplatz
15000 €15.000 €
Hausgeld
300 €300 €
Provision für Käufer
3,57 % inkl. MwSt. Mit Unterzeichnung des notariellen Kaufvertrages ist eine Maklerprovision in Höhe von 3,57 % inklusive gesetzlich gültiger MwSt. Weitere Informationen siehe Provisionshinweis.
Weitere Preisinformationen
1 Stellplatz, Kaufpreis: 15.000,00 EUR
Geschätzte Gesamtkosten
278.814 €1
Kaufpreis
249.900 €
Kaufnebenkosten
28.914 €
2
Notarkosten (1,5%)
3.749 €
Grunderwerbsteuer (6%)
14.994 €
Provision für Käufer (3,57%)
8.921 €
Grundbucheintrag (0,5%)
1.250 €
1Der angezeigte Wert ist eine automatisch berechnete Schätzung von immowelt.
2Bei den Angaben handelt es sich um ortsübliche Werte. Individuelle Kosten können abweichen.
Lage
Bergen-Enkheim, Frankfurt am Main (60388)
Der Anbieter hat die genaue Adresse nicht freigegeben
Diese schön gelegene Wohnung befindet sich in einem gepflegten Mehrfamilienhaus in Bergen-Enkheim, einem gewachsenen Stadtteil im Osten Frankfurts. Hier verbinden sich ruhiges Wohnen, gute Infrastruktur und naturnahe Freizeitmöglichkeiten zu einem angenehmen Lebensumfeld - ideal für Familien, Berufstätige und alle, die Stadtnähe und Erholung schätzen. Die Nahversorgung ist gesichert: Supermärkte, Bäckereien, Apotheken und weitere Geschäfte des täglichen Bedarfs befinden sich in unmittelbarer Umgebung. Auch gastronomisch bietet die Nachbarschaft charmante Möglichkeiten - von traditionellen Lokalen bis zu kleinen Cafés. Mit dem Auto ist man über die B8 und A661 schnell auf dem Weg Richtung Innenstadt, Kaiserlei oder Offenbach. Für Familien sind Kindertagesstätten, Grundschulen und weiterführende Schulen im nahen Umfeld gut erreichbar. Nah gelegene Spielplätze und Sporteinrichtungen bieten zusätzliche Bewegungsräume für Kinder und Jugendliche. Die Nähe zum Mainufer sowie zum beliebten Rumpenheimer Schlosspark bietet reichlich Gelegenheit für Spaziergänge, Radtouren und entspannte Stunden im Grünen - und das ganz ohne weite Wege.
Weitere Informationen
Provisionshinweis
3,57 % inkl. MwSt. Mit Unterzeichnung des notariellen Kaufvertrages ist eine Maklerprovision in Höhe von 3,57 % inklusive gesetzlich gültiger MwSt., bezogen auf den vereinbarten Kaufpreis, verdient und fällig und vom Käufer an die Firma Schönrich Immobilien GmbH zu zahlen.
Sonstiges
Bitte senden Sie uns über "Anbieter kontaktieren" Ihre Anfrage mit Ihren kompletten Kontaktdaten (Name, Anschrift, Telefonnummer, E-Mail) zu. Wir schicken Ihnen daraufhin ein Exposé mit der genauen Adresse sowie weiteren Informationen bzw. Unterlagen zu und vereinbaren auf Wunsch gerne einen Besichtigungstermin mit Ihnen. Wir bitten um Ihr Verständnis, dass wir Ihnen erst nach schriftlicher Anfrage weitere Informationen zu diesem Objekt zur Verfügung stellen können. Möchten Sie einen Suchauftrag bei uns aufgeben oder suchen Sie nach weiteren Objekten, dann besuchen Sie unsere Internetseite www.schoenrich-immobilien.de.
Stichworte
Stellplatz vorhanden, Fahrradraum, Rolladen, Anzahl der Badezimmer: 1, Anzahl Balkone: 1, Bundesland: Hessen, Lage im Wohngebiet