

Temme Immobilien GmbH & Co. KG
Frau Nicole Müller
+49 ···
Nr. anzeigenPreise & Kosten
Kaution
3 Bruttomonatsmieten / Bankbürgschaft
Provision für Mieter
provisionsfrei
Warum sehe ich diese Anzeige? – Du siehst diese Anzeige basierend auf Ihrer Navigation auf unserer Website und den Suchkriterien, die du verwendet hast.
Lage
Das Bürogebäude befindet sich im attraktiven Gewerbegebiet Nürnberg-Langwasser, zwischen dem Franken-Center und dem Autobahnkreuz Nürnberg-Süd. Die Lage zeichnet sich durch eine hervorragende Verkehrsanbindung und schnelle Zufahrtsmöglichkeit zur Münchener Straße und zur Autobahn A73 aus.
In der Nachbarschaft sind namhafte...
Büro-/Praxisfläche
Kategorie
Bürofläche
Bezug
ab sofort
Energie & Heizung
Warum sehe ich diese Anzeige? – Du siehst diese Anzeige basierend auf Ihrer Navigation auf unserer Website und den Suchkriterien, die du verwendet hast.
Energieausweistyp
Verbrauchsausweis
Gebäudetyp
Nicht-Wohngebäude
Baujahr laut Energieausweis
1991
Wesentliche Energieträger
Fernwärme
Endenergieverbrauch (Wärme)
92,00 kWh/(m²·a)
Weitere Energiedaten
Energieträger
Fernwärme
Details
Objektbeschreibung
GRÖSSE
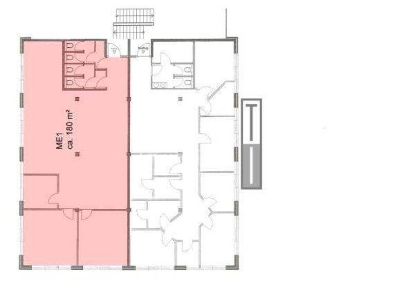
1. Obergeschoss (links)
ME1 ca. 180 m² (Praxis | Büro)
1. Obergeschoss (rechts)
ME3 ca. 360 m² (Büro)
Gesamt ca. 540 m²
MIETPREIS
jeweils 9,80 EUR/m² zzgl. NK/HZ/MwSt. und vorbehaltlich einer Überprüfung der Mietersonderwünsche, deren Kosten und Verteilung.
BEZUG
ab...
Ausstattung
Gebäude allgemein
- helle und freundliche Büroflächen durch großzügige Fensterfronten
- überdachter Eingangsbereich
- CAT 7-Verkabelung über Brüstungskanäle + Netzwerkschrank
- computergerechte Beleuchtung
- abgehängte Odenwalddecke
- Außenjalousien
- barrierefreier Zugang
- Aufzug
Praxis | Büro...
Weitere Informationen
Sonstiges
MIETERPROVISION*
Provisionsfrei!
Voraussetzung ist eine Mietvertragslaufzeit von 5 Jahren.
Bei kürzeren Mietvertragslaufzeiten wird der Mieter an der Provision beteiligt.
MIETEROPTIONSRECHT
Kumulativ kommt zu den vorstehend genannten jeweiligen Mieterprovisionen eine zusätzliche Mieterprovision...
Dokumente
Anbieter der Immobilie
Temme Immobilien GmbH & Co. KG
Am Tullnaupark 4, 90402 Nürnberg

Online-ID: 2f89x57
Referenznummer: 790bvm
Finde Angebote wie dieses
Hier geht es zu unserem Impressum, den Allgemeinen Geschäftsbedingungen, den Hinweisen zum Datenschutz und nutzungsbasierter Online-Werbung.