

Reihenmittelhaus zum Kauf19500 €520 €/m²1 Zimmer • 37,5 m² • 5.094 m² Grundstück
19500 €
520 €/m²
1 Zimmer • 37,5 m² • 5.094 m² Grundstück
Townhouse Imatra, Ratavallinkaari 38 1h+month
Merkmale
- 1 Geschoss
- 5.094 m² Grundstück
- Terrasse
- Bad mit Dusche
- Bodenbelag: Linoleum
- Sauna
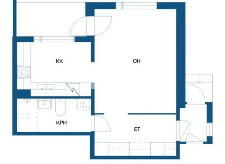
Grundrisse
Grundrisse
1 / 1
Realisiere Dein Projekt
Bausubstanz und Energie
Der Anbieter hat keine Informationen zum Energieverbrauch bereit gestellt.
- Baujahr1982
- HeizungsartZentralheizung
- EnergieträgerFernwärme
Preisdetails
Kaufpreis
19500 €
520 €/m²
Provision für Käufer
Bitte beachte, das Angebot beinhaltet bei Vertragsabschluss die Zahlung einer Provision. Weitere Informationen erhältst Du vom Anbieter.
Lage

Ratavallinkaari 38, Imatra (55700)
Weitere Informationen
Weitere Services
Lust auf eine Besichtigung?
Eine Frage zur Immobilie?
Online-ID: 2m73m5p
Referenznummer: 671219
maija.io
Wie zufrieden bist du mit dieser Seite (nicht mit der Immobilie selbst)?

