Version: 8.24.1Navigation ĂĽberspringen
125.000 €
2 Zimmer  â€˘  46 m²  â€˘  EG
Immowelt logo

Studio zum Kauf
125000 €
2.717 €/m²
2 Zimmer  â€˘  46 m²  â€˘  EG

Verkauf Wohnung 46 m² auf Sithonia (Chalkidiki)

Merkmale

  • Erdgeschoss
  • Garten
  • Fernblick
  • möbliert

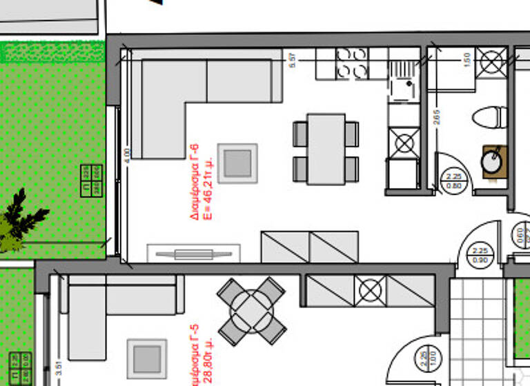
Grundrisse

Grundrisse
1 / 2

Realisiere Dein Projekt

Bausubstanz und Energie

Der Anbieter hat keine Informationen zum Energieverbrauch bereit gestellt.
  • Baujahr2028
Immowelt logo

Preisdetails

Kaufpreis
125000 €
2.717,39 €/m²
Provision für Käufer
Bitte beachte, das Angebot kann bei Vertragsabschluss die Zahlung einer Provision beinhalten. Weitere Informationen erhältst Du vom Anbieter.

Lage

address-icon
Chalkidiki
Der Anbieter hat die genaue Adresse nicht freigegeben

Weitere Informationen

Sonstiges Verkauf Wohnflaeche 46 q.m auf Sithonia (Chalkidiki). Die Wohnung befindet sich in der im Erdgeschoss
Etage und besteht aus ein Schlafzimmer, WohnkĂĽche, eine Dusche.
Wohnung ist front-layout Bietet an in der Stadt, beinhaltet auch Solarwarmwasserbereiter, Klimaanlage, Garten, Rasen, Heizung. Stichworte Nutzfläche: 1.959,00 m², Grundstücksfläche: 1.959,00 m², Anzahl der Schlafzimmer: 1, Anzahl der Badezimmer: 1, Anzahl der Wohn-Schlafzimmer: 1, Gartenfläche: 1,00 m², 1 Etagen, Distanz zum Flughafen: 62.00, Distanz vom Zentrum: 0.00, Distanz zum Meer: 200

Weitere Services

Lust auf eine Besichtigung?
Eine Frage zur Immobilie?
Nachricht hinzufĂĽgen
Mit der Nutzung der oben angegebenen Telefonnummer oder durch Klicken auf „Kontaktieren“ akzeptierst Du die Allgemeinen Nutzungsbedingungen, denen Du jederzeit widersprechen kannst. Weitere Informationen zum Datenschutz

Ăśber den Anbieter

14th km Thessaloniki - Mihaniona, 57001 THESSALONIKI
Frau Marianna PanagkasidouDein Kontakt
Online-ID: 2l6xg5l
Referenznummer: 64202
Grekodom Development Constructing and BrokerageTrading Company S.A
Grekodom Development Constructing and BrokerageTrading Company S.A
Bewertung: 5 von 5 Sternen
Nachricht hinzufĂĽgen
Mit der Nutzung der oben angegebenen Telefonnummer oder durch Klicken auf „Kontaktieren“ akzeptierst Du die Allgemeinen Nutzungsbedingungen, denen Du jederzeit widersprechen kannst. Weitere Informationen zum Datenschutz
Wie zufrieden bist du mit dieser Seite (nicht mit der Immobilie selbst)?