Version: 8.25.1Navigation überspringen
1.390.000 €
13 Zimmer  •  406 m²  •  755 m² Grundstück
Immowelt logo

Einfamilienhaus zum Kauf
1390000 €
3.424 €/m²
13 Zimmer  •  406 m²  •  755 m² Grundstück

Gewerbe trifft Wohnen: Hochwertiges Büro mit großzügiger Wohnung in Allensbach

Das 2017 errichtete Büro- und Wohnhaus verbindet Arbeiten und Wohnen auf ideale Weise. Ruhig am Waldrand gelegen, bietet es ein angenehmes Umfeld bei gleichzeitig hervorragender Anbindung und Sichtbarkeit an der B33.
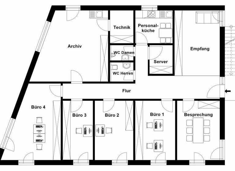
Im Erdgeschoss befinden sich ca. 126 m² moderne Büroflächen mit Empfang, vier Büros, Besprechungsraum, Archiv, getrennten WCs und Personalküche - ideal für Büro-, Praxis- oder Agenturnutzungen.
Das Obergeschoss beherbergt eine hochwertige Betriebsleiterwohnung mit ca. 154 m² Wohnfläche. Drei Schlafzimmer, ein großzügiger Wohn-/Ess-/Küchenbereich, Bad, Gäste-WC, Ankleide sowie eine sonnige Dachterrasse sorgen für hohen Wohnkomfort. [...]

Ausführliche Informationen erhalten Sie mit dem vollständigen Exposé auf Anfrage.

Merkmale

  • 755 m² Grundstück
  • Einbauküche
  • Badezimmer: Badewanne, Bad mit Dusche
  • Gäste-WC
  • Bodenbelag: Fliesen, Parkett
  • Terrasse
  • 6 Stellplätze: Carport, 5 Außen-Stellplätze
Der Büro- und der Wohnbereich überzeugen durch eine hochwertige Ausstattung und eine durchdachte Raumaufteilung, die Funktionalität und Wohnkomfort harmonisch verbinden.
Im Erdgeschoss befindet sich der moderne Bürobereich mit eleganten schwarzen Fliesen, der einen repräsentativen Eindruck vermittelt. Der stufenlose Zugang sorgt für Barrierefreiheit. Der offene Empfangsbereich geht in den Flur über, von dem aus alle Büroräume sowie das Besprechungszimmer erreichbar sind. Ein großzügiges Archiv mit ca. 28 m² bietet viel Platz für Akten und Materialien. Für Mitarbeiter und Kunden stehen getrennte Damen- und Herrentoiletten sowie ein Aufenthaltsraum mit integrierter Küche zur Verfügung. Die direkte Lage an der B33 sowie 5 Außenstellplätze gewährleisten eine sehr gute Erreichbarkeit.
Im Obergeschoss befindet sich die großzügige 6-Zimmer-Wohnung mit durchdachtem Grundriss und hochwertigen Materialien. [...]

Ausführliche Informationen erhalten Sie mit dem vollständigen Exposé auf Anfrage.

Grundrisse

Grundrisse
1 / 2

Realisiere Dein Projekt

Bausubstanz und Energie

Energieausweis

A
  • Baujahr2017
  • Zustand der Immobilieneuwertig
  • HeizungsartFußbodenheizung
  • EnergieträgerLuft-/Wasser-Wärmepumpe
Immowelt logo

Preisdetails

Kaufpreis
1390000 €
3.423,65 €/m²
Provision für Käufer
3,57% inkl. MwSt. inkl. MwSt.
Bei Kaufvertragsabschluss wird eine Courtage in Höhe von 3,57% inkl. MwSt. an uns fällig.
Weitere Preisinformationen
1 Carportplatz
5 Stellplätze
Geschätzte Gesamtkosten
1.536.923 €1
Kaufpreis
1.390.000 €
Notarkosten (1,5%)
20.850 €
Grunderwerbsteuer (5%)
69.500 €
Provision für Käufer (3,57%)
49.623 €
Grundbucheintrag (0,5%)
6.950 €
1Der angezeigte Wert ist eine automatisch berechnete Schätzung von immowelt.
2Bei den Angaben handelt es sich um ortsübliche Werte. Individuelle Kosten können abweichen.

Lage

address-icon
Allensbach (78476)
Der Anbieter hat die genaue Adresse nicht freigegeben
Reizvoll am Ufer des Untersees gelegen, vereint Allensbach landschaftliche Schönheit mit hoher Lebensqualität. Als "Demoskopendorf", "Dorf am See" und "grünes Herz des Bodanrücks zwischen drei Seen" steht der Ort für attraktives Wohnen und vielseitige Freizeitmöglichkeiten. Allensbach bietet eine sehr gute Infrastruktur mit optimaler Bus- und Bahnanbindung. Das große Engagement der Einwohner zeigt sich im lebendigen Vereinsleben. Kindergarten, Grund- und Hauptschule, Rathaus sowie zahlreiche Geschäfte, Apotheken und Ärzte sind bequem fußläufig erreichbar.

Weitere Informationen

Sonstiges Die Wohnung und das Gewerbe können nach Vereinbarung bezogen werden.
Alle Angaben beruhen auf Informationen des Eigentümers. Für die Richtigkeit werden keine Gewähr und Haftung übernommen. Wir bitten um Ihr Verständnis, dass nur schriftliche Anfragen mit vollständiger Wohnadresse, E-Mail-Adresse und Telefonnummer bearbeitet werden. Stichworte Carport vorhanden, Stellplatz vorhanden, Nutzfläche: 37,00 m², Anzahl Terrassen: 1

Weitere Services

Lust auf eine Besichtigung?
Eine Frage zur Immobilie?
Nachricht hinzufügen
Mit der Nutzung der oben angegebenen Telefonnummer oder durch Klicken auf „Kontaktieren“ akzeptierst Du die Allgemeinen Nutzungsbedingungen, denen Du jederzeit widersprechen kannst. Weitere Informationen zum Datenschutz

Über den Anbieter

Mainaustr. 32, 78464 Konstanz
partner badge
10 Jahre Partnerschaft
Herr Marco Horta
Herr Marco HortaDein Kontakt
Online-ID: 26JJQ825R24X
Referenznummer: A5096
horta Immobilien GmbH & Co. KG
title
horta Immobilien GmbH & Co. KG
Bewertung: 4,2 von 5 Sternen
Nachricht hinzufügen
Mit der Nutzung der oben angegebenen Telefonnummer oder durch Klicken auf „Kontaktieren“ akzeptierst Du die Allgemeinen Nutzungsbedingungen, denen Du jederzeit widersprechen kannst. Weitere Informationen zum Datenschutz
Wie zufrieden bist du mit dieser Seite (nicht mit der Immobilie selbst)?