3-ZIMMER-WOHNUNG MIT DACHTERRASSE BEIM COLUMBUS-CENTER
Zur Vermietung gelangt eine großzügig geschnittene und sehr gut aufgeteilte 99 m² große 3-Zimmer-Wohnung direkt auf der Favoritenstraße, mit eigener 360 Grad Dachterrasse samt schönen Rund um Blick. Die Wohnung ist perfekt für Familien und Paare geeignet!
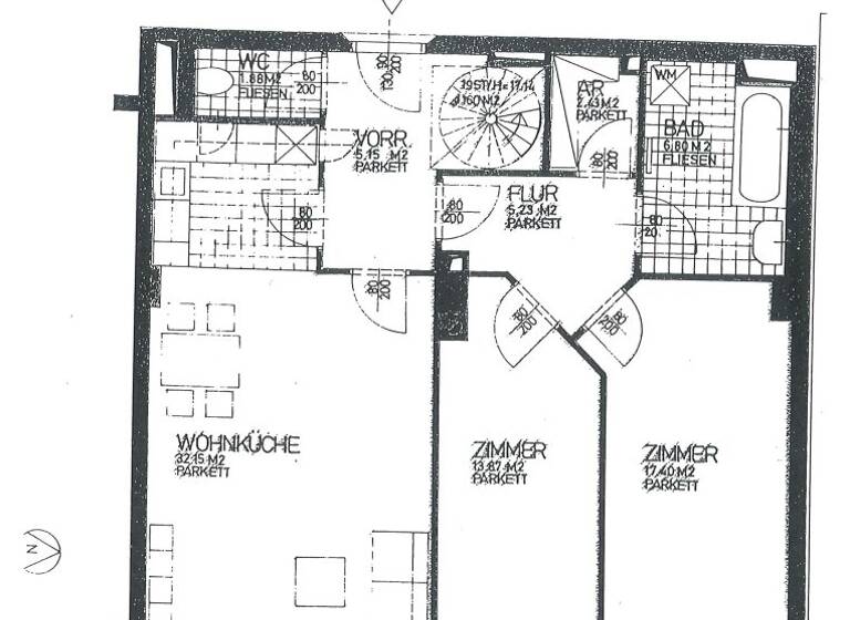
DIE AUFTEILUNG:
Man betritt die rund 99 m² große und helle Dachgeschosswohnung über einen Vorraum, der mit 5 m² gut dimensioniert ist. Von hier aus sind sämtliche Räumlichkeiten zentral begehbar.
Direkt neben dem Eingangsbereich liegt die Toilette mit kleinem Handwaschbecken und gegenüber die Wendeltreppe zur Dachterrasse.
Das Herzstück stellt die große Wohnküche dar, diese ist mit über 32 m² großzügig geschnitten, durch große Fensterflächen und eine enorme Deckenhöhe wirkt der Raum noch größer und ist schön lichtdurchflutet. Die Einbauküche ist wohl integriert, aber dennoch durch eine Arbeitsfläche und Barelement angenehm vom Wohnbereich getrennt. Hier lässt es sich einfach möblieren und im Handumdrehen zu einem gemütlichen Wohn-und Essbereich gestalten.
Über einen Flur mit 5,23 m² Größe gelangt man zum Abstellraum mit knapp 2,50 m² Größe, Haushalts-Utensilien wie Staubsauer, Bügelbrett oder Lebensmittelvorräte können praktisch verstaut werden. Aufgrund der Dimensionierung lässt sich aber auch ein Schrankraum einrichten.
Die beiden Schlafzimmer weisen jeweils eine gute Größe von knapp 14 m² und 17 m² auf. Perfekt als Schlaf-und Kinderzimmer geeignet. Auch als Gästezimmer und Home-Office Kombination ist einer der Räume ideal nutzbar.
Am Ende des Flurs liegt das Badezimmer, es weist eine Größe von 7 m² auf und ist mit einer Badewanne, einem Handwaschbecken und einem Waschmaschinen-Anschluss ausgestattet.
Zurück im Eingangsbereich gelangt man über eine Wendeltreppe auf die Dachterrasse der Wohnung, welche mit über 40 m² eine richtige Outdoor-Oase bildet. Hier lassen sich gemütliche Stunden an lauen Abenden, oder freien Wachenden verbringen. Die Terrasse ladet förmlich dazu ein seine eigenen Kräuter und Pflanzen zu pflegen und es sich mit gemütlichen Outdoor-Möbeln schön zu gestalten.
Abgerundet wird das Wohnungsangebot durch ein trockenes Kellerabteil, sowie eine hauseigene Tiefgarage.
Alles in Allem eine schöne Familienwohnung im Herzen von Favoriten, mit sämtlichen Nahversorgern vor der Türe und seiner eigenen Outdoor-Oase am Dach mit 360 Grad rund um Blick.
Bruttomonatsmiete inkl. BK + Ust.: 1.344, 83 Euro
Heiz-und Warmwasser-Akonto: 201,01 Euro
Gesamt: 1.499,00 Euro
Garagenstellplatz optional: 110,00 Euro inkl. BK + USt.
Für weitere Fragen oder zur Vereinbarung eines Besichtigungstermins kontaktieren sie gerne Frau Nina Hafenrichter unter 0676 / 32 64 699 oder hafenrichter@wohn-salon.at
Wir weisen darauf hin, dass zwischen dem Vermittler und dem zu vermittelnden Dritten ein familiäres oder wirtschaftliches Naheverhältnis besteht.
Der Immobilienmakler erklärt, dass er - entgegen dem in der Immobilienwirtschaft üblichen Geschäftsgebrauch des Doppelmaklers - einseitig nur für den Vermieter tätig ist.
Infrastruktur / Entfernungen
Gesundheit
Arzt <500m
Apotheke <500m
Klinik <500m
Krankenhaus <1.500m
Kinder & Schulen
Schule <500m
Kindergarten <500m
Universität <1.500m
Höhere Schule <1.500m
Nahversorgung
Supermarkt <500m
Bäckerei <500m
Einkaufszentrum <500m
Sonstige
Geldautomat <500m
Bank <500m
Post <500m
Polizei <500m
Verkehr
Bus <500m
U-Bahn <500m
Straßenbahn <500m
Bahnhof <500m
Autobahnanschluss <2.000m
Angaben Entfernung Luftlinie / Quelle: OpenStreetMap