Moderne Büros | Ausbau nach Wunsch | Kurzfristig Verfügbar
Das angebotene Objekt verfügt über individuell ausbaubare Büroflächen auf mehreren Etagen. Der Innenausbau sowie die Raumaufteilung können entsprechend Ihrer Bedürfnisse angepasst werden. Die vorhandene Küche kann bei Bedarf übernommen werden. Klimatisierung wurde im Jahr 2021 nachträglich eingebaut.
Derzeit stehen folgende Flächen zur Disposition:
2. OG: 493 m²
Merkmale
Bezug: ab sofort
Barrierefrei, Rollstuhlgerecht
35 Stellplätze: Tiefgarage
Raumaufteilung flexibel
. Bodenbelag: nach Mieterwunsch . EDV-Verkabelung vorhanden . Kabelführung: Bodentanks & Kabelkanäle . Beleuchtung: nach Vereinbarung . Teeküche: kann übernommen werden / Anschluss vorhanden . Aufzug: Personenaufzug . Barrierearm: barrierefreier Zugang . Klimatisierung vorhanden
Die Ausstattung kann bei Bedarf angepasst werden!
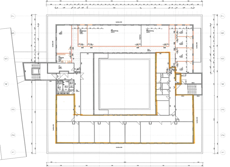
Grundrisse
Grundrisse
1 / 1
Realisiere Dein Projekt
Bausubstanz und Energie
Möchtest du Details zum Energieverbrauch?
Baujahr2001
Zustand der ImmobilieGepflegt
HeizungsartZentralheizung
EnergieträgerGas
Mietkosten
Nettomiete zzgl. Nebenkosten
8 €/m²
8 €
Zusätzliche Kosten
Heizkosten
Provision für Mieter
provisionsfrei
Kaution
keine Angabe
Weitere Preisinformationen
Nettokaltmiete: 8,00 EUR
Lage
Gestfeld, Kamp-Lintfort (47475)
Der Anbieter hat die genaue Adresse nicht freigegeben
Die Immobilie in Kamp-Lintfort liegt verkehrsgünstig sowohl für den Individualverkehr als auch für den öffentlichen Nahverkehr. Über die nahegelegene A42 ist die Stadt schnell an das Autobahnnetz angebunden, wodurch Städte wie Duisburg und Düsseldorf schnell erreichbar sind. Der ÖPNV ist durch mehrere Buslinien, die in unmittelbarer Nähe halten, gut ausgebaut, und der Bahnhof Kamp-Lintfort ist nur wenige Minuten entfernt. Geschäfte des täglichen Bedarfs, wie Supermärkte, Apotheken und Banken, befinden sich in fußläufiger Entfernung und decken den lokalen Bedarf problemlos ab.
Bedeutende Unternehmen in der Büromarktzone: Finanzamt Kamp-Lintfort, Kaiser + Kraft Europa GmbH
Hotels in der Umgebung: Hotel Casino im Park, Wellings Parkhotel, Hotel Lintforter Hof
Weitere Informationen
Sonstiges
Es gelten ausschließlich unsere AGB (www.ruhr-real.de/agb). Wir möchten Sie darauf hinweisen, dass die Angaben ausschließlich auf den uns vom Eigentümer übermittelten Unterlagen und Informationen basieren. Für Richtigkeit und Vollständigkeit übernehmen wir keine Gewähr. Zwischenvermietung vorbehalten.
Stichworte
Sonstiges: EDV-Verkabelung