Version: 8.24.0Navigation ĂĽberspringen
349.000 €
6 Zimmer  â€˘  143,6 m²  â€˘  515 m² GrundstĂĽck
Immowelt logo

Einfamilienhaus zum Kauf • provisionsfrei
349000 €
2.431 €/m²
6 Zimmer  â€˘  143,6 m²  â€˘  515 m² GrundstĂĽck

PROVISIONSFREI! Einfamilienhaus mit Garten & Ausbaupotenzial - Raum fĂĽr eigene Wohnideen

Dieses Einfamilienhaus aus dem Jahr 1967 liegt in einer ruhigen, gewachsenen Wohnlage und bietet eine solide Basis für alle, die ein Zuhause nach den eigenen Vorstellungen gestalten möchten.

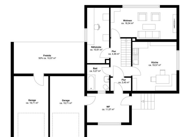
Im Erdgeschoss stehen ca. 82m² Wohnfläche zur Verfügung mit Küche, Wohnzimmer, Nähzimmer, Bad/WC sowie einem praktischen Vorhaus als Schmutzschleuse - auch direkt von der Garage aus zugänglich.

Das Obergeschoss bietet weitere ca. 62m² Wohnfläche mit zwei Schlafzimmern und zwei Kinderzimmern, eines davon mit eigenem Waschbecken.

Das Dachgeschoss ist nicht ausgebaut, bietet jedoch ein attraktives Ausbaupotenzial von ca. 47 m² - ideal für zusätzlichen Wohnraum, ein Studio oder Homeoffice. Das Dach wurde bereits 1994 saniert.

Im Laufe der Jahre wurden einzelne Maßnahmen umgesetzt, u. a. eine Wärmedämmung der Westseite sowie 1984 der Anbau einer Doppelgarage inklusive Windfang und Freisitz am Einfamilienhaus. Insgesamt besteht ein gewisser Renovierungs- bzw. Modernisierungsbedarf - und genau darin liegt die Chance, ein individuelles Familienzuhause zu schaffen.

Das Untergeschoss bietet praktische Nutzflächen mit Waschküche, Dusche, WC, Vorratsraum sowie direktem Gartenzugang. Eine Doppelgarage, zwei Stellplätze davor und der gepflegte Gartenbereich runden das Angebot ab.
Das Haus ist bereits leergeräumt und sofort verfügbar.

Kurz gesagt: Ein Haus mit Substanz, Entwicklungspotenzial und viel Raum für persönliche Wohnideen.

Merkmale

  • Bezug: sofort
  • 515 m² GrundstĂĽck
  • EinbaukĂĽche
  • Keller
  • 4 Stellplätze: 2 Garagen, 2 AuĂźen-Stellplätze
  • Bodenbelag: Fliesen, Marmor, Parkett
*Flächenübersicht
- Wohnfläche Erdgeschoss: ca. 82,14m²
- Wohnfläche Obergeschoss: ca. 61,44m²
- Gesamtwohnfläche (EG + OG): ca. 143,58m²
- Dachgeschoss: nicht ausgebaut, Ausbaupotenzial ca. 47 m²

*Raumaufstellung Erdgeschoss (EG)
- KĂĽche
- Nähzimmer
- Wohnzimmer
-Bad mit WC
- Kleines Vorhaus / Windfang
- Zugang vom Hauseingang
- zusätzlicher Zugang von der Garage
- Flur mit Treppe ins Obergeschoss und Kellergeschoss
- Freisitz

*Raumaufstellung Obergeschoss (OG)
- Flur (mit Zugang zum Dachgeschoss)
- Schlafzimmer 1
-Schlafzimmer 2
- Kinderzimmer 1
- Kinderzimmer 2 (mit Waschbecken)

*Dachgeschoss (DG)
- nicht ausgebaut
- Ausbaupotenzial ca. 47 m², z. B. für:
- zusätzliches Zimmer
- Studio-/Atelierbereich
- Homeoffice / Hobby / Gäste

*Untergeschoss (UG) - Nutzfläche
- Heizungsraum inkl. Tankbereich (Ă–ltanks)
- WaschkĂĽche
- Toilette & Dusche
- Vorratsraum
- AuĂźenzugang in den Garten ĂĽber AuĂźentreppe

*AuĂźen & Parken
- Doppelgarage
- 2 zusätzliche Stellplätze vor der Garage
- Umlaufende Hecke (eingewachsenes GrundstĂĽcksgefĂĽhl)

*Bausubstanz & MaĂźnahmen
- Baujahr Wohnhaus: 1967
- Garage, Windfang & Freisitz: 1984
- Wärmedämmung Westseite: 1982
- Dachsanierung: 1994
- Heizung 2004

Grundrisse

Grundrisse
1 / 3

Realisiere Dein Projekt

Bausubstanz und Energie

Energieausweis

H
  • Baujahr1967
  • Zustand der ImmobilieMassivhaus
  • EnergieträgerĂ–l
Immowelt logo

Preisdetails

Kaufpreis
349000 €
2.430,70 €/m²
Provision für Käufer
provisionsfrei
Weitere Preisinformationen
2 Stellplätze
2 Garagenstellplätze
Geschätzte Gesamtkosten
368.195 €1
Kaufpreis
349.000 €
Notarkosten (1,5%)
5.235 €
Grunderwerbsteuer (3,5%)
12.215 €
Grundbucheintrag (0,5%)
1.745 €
1Der angezeigte Wert ist eine automatisch berechnete Schätzung von immowelt.
2Bei den Angaben handelt es sich um ortsübliche Werte. Individuelle Kosten können abweichen.

Lage

address-icon
Langenneufnach (86863)
Der Anbieter hat die genaue Adresse nicht freigegeben
Die Immobilie befindet sich in Langenneufnach, einer charmanten Gemeinde im Naturpark der Stauden. Die Umgebung ist geprägt von viel Grün, Ruhe und einem gewachsenen, familiären Wohnumfeld - ideal für alle, die naturnah leben möchten, ohne auf eine gute Anbindung zu verzichten.

Langenneufnach bietet eine solide Infrastruktur mit Kindergarten, Schule, Einkaufsmöglichkeiten für den täglichen Bedarf sowie einer aktiven Dorfgemeinschaft. Die Nähe zu Wäldern, Wiesen und Spazierwegen schafft einen hohen Freizeit- und Erholungswert - perfekt für Familien, Paare und alle, die bewusst wohnen möchten.

Über die Bundesstraße sowie den öffentlichen Nahverkehr sind umliegende Orte und Städte wie Augsburg gut erreichbar. So verbindet diese Lage auf angenehme Weise entschleunigtes Wohnen im Grünen mit der nötigen Flexibilität für Beruf und Alltag.

Kurz gesagt: Ein Standort für Menschen, die Wert auf Lebensqualität, Bodenständigkeit und echtes Zuhause-Gefühl legen.

Weitere Informationen

Sonstiges Anfragen über die Immobilienportale werden nur mit vollständiger Adresse und Telefonnummer bearbeitet.

Gerne sind wir fĂĽr weitere Fragen und Informationen unter Tel.: +49 176 64 99 59 02 erreichbar.

Alle Angaben stammen vom EigentĂĽmer, der Makler ĂĽbernimmt hierfĂĽr keine Haftung.

Tipp-Provision!!
Sie kennen jemanden, der seine Immobilie veräußern möchte? Wir sind ständig für unsere Kunden auf der Suche nach geeigneten Objekten. Bei erfolgreicher Vermittlung und Vertragsabschluss zahlen wir Ihnen als Dankeschön eine Tipp-Provision! Nähere Informationen auf Anfrage.

HAFTUNGSAUSSCHLUSS: Trotz regelmäßiger Prüfung von Daten, Bildern und Informationen übernehmen wir keine Haftung für die Richtigkeit der Angaben. Ebenso wenig für die Verfügbarkeit des Angebotes bei Vermietung oder Verkauf. Es gelten unsere Allgemeinen Geschäftsbedingungen. Stichworte Anzahl der Badezimmer: 1, Bundesland: Bayern, Distanz zum Kindergarten: 0.80, Distanz zur Grundschule: 4.00, Distanz zur Realschule: 12.00, Distanz zur nächsten Einkaufsmöglichkeit: 0.50, Distanz zum Gymnasium: 18.00, Distanz zum Flughafen: 125.00, Distanz zum Hauptbahnhof: 6.00, Distanz zur Autobahn: 25.00, Distanz zum Bus: 0.30, Distanz zur nächsten Gaststätte: 0.50, Distanz zur Hauptschule: 4.00

Weitere Services

Lust auf eine Besichtigung?
Eine Frage zur Immobilie?
Nachricht hinzufĂĽgen
Mit der Nutzung der oben angegebenen Telefonnummer oder durch Klicken auf „Kontaktieren“ akzeptierst Du die Allgemeinen Nutzungsbedingungen, denen Du jederzeit widersprechen kannst. Weitere Informationen zum Datenschutz

Ăśber den Anbieter

DieselstraĂźe 41, 86368 Gersthofen
partner badge
Partnerschaft
Herr Christian LudlDein Kontakt
Online-ID: 2nqvc5h
Referenznummer: CL-12843-KH
Bricks & Mortar Immobilien National GmbH
Bricks & Mortar Immobilien National GmbH
Bewertung: 5 von 5 Sternen
Nachricht hinzufĂĽgen
Mit der Nutzung der oben angegebenen Telefonnummer oder durch Klicken auf „Kontaktieren“ akzeptierst Du die Allgemeinen Nutzungsbedingungen, denen Du jederzeit widersprechen kannst. Weitere Informationen zum Datenschutz
Wie zufrieden bist du mit dieser Seite (nicht mit der Immobilie selbst)?