Version: 8.25.1Navigation überspringen
9,50 €
448 m² Bürofläche  •  teilbar ab 448 m²
Immowelt logo

Büro zur Miete • provisionsfrei
9,50 €
/m²
448 m² Bürofläche  •  teilbar ab 448 m²

Büroflächen im Europa-Center Essen!

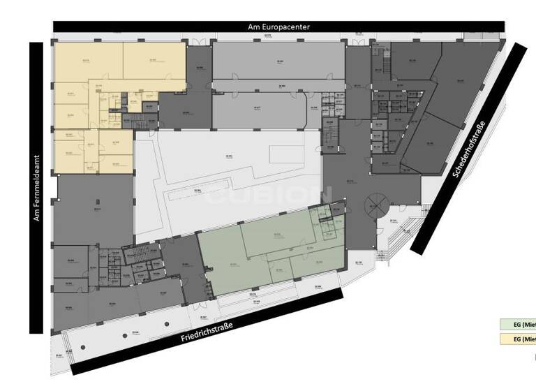
Durch eine flexible Bauweise mit mehreren Erschließungskernen können verschiedene Grundrissgestaltungen realisiert werden.

Folgende Flächen stehen momentan zur Disposition:

Erdgeschoss, Einheit 4: ca. 297 m²
Erdgeschoss, Einheit 7: ca. 423 m²
2. Obergeschoss, Einheit 1: ca. 370 m²
2. Obergeschoss, Einheit 2: ca. 259 m²
2. Obergeschoss, Einheit 4: ca. 422 m²
2. Obergeschoss, Einheit 8: ca. 448 m²
3. Obergeschoss, Einheit 8: ca. 440 m²
4. Obergeschoss, Einheit 5: ca. 630 m²
4. Obergeschoss, Einheit 7: ca. 310 m²
5. Obergeschoss, Einheit 4: ca. 422 m²
5. Obergeschoss, Einheit 5: ca. 630 m²
5. Obergeschoss, Einheit 7: ca. 310 m²
5. Obergeschoss, Einheit 8: ca. 448 m²

Summe Bürofläche: ca. 5.409 m²
Summe Archivfläche: ca. 240 m²

Merkmale

  • Bezug: Absprache mit ET
  • Personenaufzug, Lastenaufzug
  • Teeküche
  • Bodenbelag: Teppich
  • 80 Stellplätze: Tiefgarage
  • Fenster: Sonnenschutz
Zum Ausstattungsstandard gehören folgende Merkmale:

Bodenbelag: Teppichboden, nach Mieterwunsch
EDV-Verkabelung: Mietersache
Kabelführung: Brüstungskanäle
Kühlung: teilweise klimatisiert, nach Vereinbarung
Sonnenschutz: außenliegender, elektrischer Sonnenschutz
Küche: Einbauküche
Beleuchtung: LED-Beleuchtung
Aufzug: Personenaufzug
Empfang: Elektrische Zugangskontrollen
Heizung: Fernwärme
Barrierearm: ja
Baujahr: 2001
Achsmaß: 1,35 m
Deckenhöhe: EG 3,75 m, OG 3,30 m
Raumtiefe: nicht einheitlich
Parkplätze: Tiefgaragenstellplätze
Sonstiges:
- Lüftungsanlage mit Wärmerückgewinnung
- Installation von weiteren E-Ladesäulen möglich

Auf Wunsch ist eine Klimatisierung in Teilbereichen gegen Aufpreis möglich.

Grundrisse

Grundrisse
1 / 4

Realisiere Dein Projekt

Bausubstanz und Energie

Energieausweis

Endenergiebedarf (Wärme)

Endenergiebedarf (Strom)

  • Baujahr2001
  • EnergieträgerFernwärme
Immowelt logo

Mietkosten

Monatliche Miete
9,50 €/m²
Nebenkosten
3,50 €
Zusätzliche Kosten
Heizkosten
Provision für Mieter
provisionsfrei
Kaution
keine Angabe

Lage

address-icon
Friedrichstr. 45-47SüdviertelEssen (45128)
1B-Lage Das Europa-Center befindet sich am südwestlichen Innenstadtrand. Die Innenstadt und der Hauptbahnhof sind ebenso fußläufig erreichbar, wie die U-Bahn-Haltestelle "Bismarckplatz". Über die Kruppstraße besteht eine unmittelbare Anbindung an das überregionale Autobahnnetz (A40).

In guter Nachbarschaft: Das Europa-Center befindet sich u.a. unweit zur WAZ Westdeutschen Allgemeinen Zeitung und zum Essener Technologiezentrum ETEC. Das Ruhrforum mit der KlickTel AG und die STEAG AG zählen ebenso zu den Nachbarn wie die Deutsche Telekom.

Weitere Informationen

Sonstiges Dieses Angebot ist provisionsfrei für den Mieter!

Alle Informationen in diesem Exposé beruhen auf Angaben, die wir vom Vermieter erhalten haben. Für Richtigkeit und Vollständigkeit übernehmen wir keine Gewähr. Zwischenvermietung vorbehalten. Die Grundrisse müssen nicht mit der aktuellen Raumaufteilung übereinstimmen und sind unmaßstäblich. Für Flächenangaben übernehmen wir keine Gewähr. In Planunterlagen eventuell abgebildete Möblierungen sind nicht Inhalt des Mietgegenstands.

Es gelten ausschließlich unsere AGB (www.cubion.de/agb). Stichworte Sonstiges: EDV-Verkabelung

Weitere Services

Lust auf eine Besichtigung?
Eine Frage zur Immobilie?
Mit einer persönlichen Nachricht hast du bessere Chancen auf eine Antwort.
Mit der Nutzung der oben angegebenen Telefonnummer oder durch Klicken auf „Kontaktieren“ akzeptierst Du die Allgemeinen Nutzungsbedingungen, denen Du jederzeit widersprechen kannst. Weitere Informationen zum Datenschutz

Über den Anbieter

Akazienallee 65, 45478 Mülheim
partner badge
3 Jahre Partnerschaft
Herr Tiziano SannaDein Kontakt
Online-ID: 237D2NXDXS13
Referenznummer: 1026/G1/E3/Eh3
CUBION Immobilien AG
CUBION Immobilien AG
Mit einer persönlichen Nachricht hast du bessere Chancen auf eine Antwort.
Mit der Nutzung der oben angegebenen Telefonnummer oder durch Klicken auf „Kontaktieren“ akzeptierst Du die Allgemeinen Nutzungsbedingungen, denen Du jederzeit widersprechen kannst. Weitere Informationen zum Datenschutz
Wie zufrieden bist du mit dieser Seite (nicht mit der Immobilie selbst)?