Version: 8.24.0Navigation ĂĽberspringen
235.000 €
3 Zimmer  â€˘  100 m²  â€˘  483 m² GrundstĂĽck
Immowelt logo

Einfamilienhaus zum Kauf
235000 €
2.990 €/m²
3 Zimmer  â€˘  100 m²  â€˘  483 m² GrundstĂĽck

Haus MEIN LIEBLINGSPLATZ

Das massive Wohnhaus wurde ursprünglich 1937 als Nebengebäude errichtet und 1996 zum Wohngebäude umgenutzt. Dabei wurde die Immobilie umfangreich erneuert, so dass von der originalen Bausubstanz nur noch die Außenwände bis zu einer Höhe von 2 Metern vorhanden sind.

Seit 2023 besitzt die Nachbarhaushälfte nur noch ein Flachdach und wird als Unterstand genutzt, so dass Sie keinen
direkten Wohnnachbarn haben.

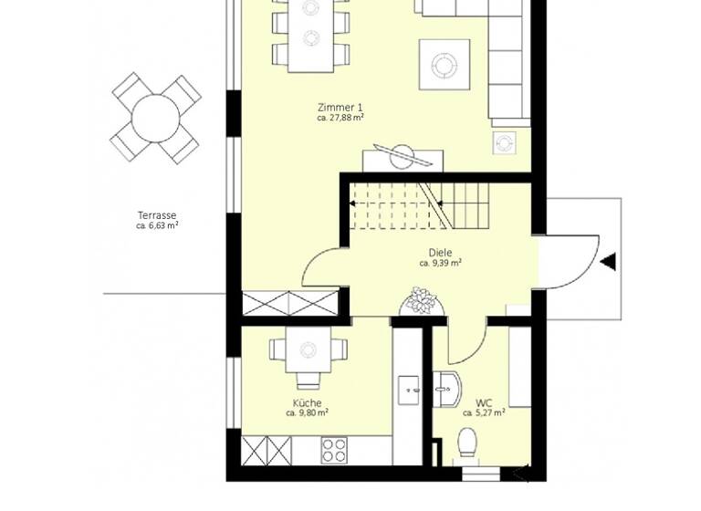
Im Erdgeschoss sind eine geräumige Diele, ein Gäste-WC, die Küche und ein Wohnraum vorhanden. Zur überdachten Südterrasse besteht ein direkter Zugang. Im Dachgeschoss finden sich das Vollbad mit Tageslicht und zwei Schlafzimmer. Die Unterteilung des Grundrisses zur Schaffung eines weiteren Zimmers wäre denkbar.

Merkmale

  • Bezug: sofort
  • 483 m² GrundstĂĽck
  • Terrasse
Ein Wohnhaus mitten auf dem Dorf und gleichzeitig nur ein Katzensprung nach Rostock - sollten Sie so ein Haus suchen, ist diese Immobilie vermutlich genau die richtige fĂĽr Sie!

Fordern Sie gleich das ausführliche Exposé an!

- Gäste-WC
- Tageslichtbad mit Badewanne und Dusche
- ĂĽberdachte SĂĽdterrasse
- Brunnen
- Gastherme von 2010
- Umbau fĂĽr 4. Zimmer denkbar

Grundrisse

Grundrisse
1 / 2

Realisiere Dein Projekt

Bausubstanz und Energie

Energieausweis

E
  • Baujahr1996
  • HeizungsartZentralheizung
  • EnergieträgerGas
Immowelt logo

Preisdetails

Kaufpreis
235000 €
2.990 €/m²
Provision für Käufer
zzgl. 3,57 % inkl. MwSt.
Geschätzte Gesamtkosten
262.189 €1
Kaufpreis
235.000 €
Notarkosten (1,5%)
3.525 €
Grunderwerbsteuer (6%)
14.100 €
Provision für Käufer (3,57%)
8.389 €
Grundbucheintrag (0,5%)
1.175 €
1Der angezeigte Wert ist eine automatisch berechnete Schätzung von immowelt.
2Bei den Angaben handelt es sich um ortsübliche Werte. Individuelle Kosten können abweichen.

Lage

address-icon
Dummerstorf, Kessin OT Hohen Schwarfs (18196)
Der Anbieter hat die genaue Adresse nicht freigegeben
Hohen Schwarfs gehört zur Gemeinde Dummerstorf. Es liegt ungefähr sieben Kilometer südlich von Rostock. Durch die unmittelbare Lage an der Bundesautobahn A19, der Nähe zur Bundesautobahn A20 und dem Autobahnkreuz Rostock ist Hohen Schwarfs verkehrstechnisch sehr gut erschlossen. Die Landesstraße 39 verläuft zudem nördlich des Dorfes. Sie erreichen die Hansestadt Rostock, den Rostock Airport oder weiter entfernt liegende Ziele schnell und zügig.

Weitere Informationen

Sonstiges EXPOSÉ
Ein ausführliches Exposé erhalten Sie gern auf Anfrage.

KONTAKT
Wir sind gerne fĂĽr Ihre Fragen da!

Montag - Freitag ab 9.00 Uhr

Aus Gründen der Seriösität bitten wir Sie, Ihre vollständigen Kontaktangaben einschließlich

- Anschrift,
- Telefonnummer und
- E-Mail-Adresse

anzugeben. Vielen Dank!

VERKAUFEN
Sie möchten verkaufen? Sprechen Sie uns gerne an. Wir vermitteln Ihnen den passenden Kaufinteressenten.

RECHTSHINWEIS
Da wir Objektangaben nicht selbst ermitteln, übernehmen wir hierfür keine Gewähr. Alle auf diesen Seiten veröffentlichten Angaben, Darstellungen und Berechnungen wurden auf ihre Richtigkeit überprüft und mit größter Sorgfalt zusammengestellt.

Die Angaben entsprechen dem gegenwärtigen Kenntnisstand und beruhen auf den gesetzlichen Bestimmungen. Änderungen sind nicht vorgesehen, bleiben aber dennoch vorbehalten.

Durch schriftliche Vereinbarung oder Inanspruchnahme unserer Maklertätigkeit entsteht der Makler-Vertrag mit unserem Büro. Die Käuferprovision ist bei notariellem Vertragsabschluss verdient und fällig. WIEDEMEYER IMMOBILIEN erhält einen unmittelbaren Zahlungsanspruch gegenüber dem Käufer. Grunderwerbssteuer, Notar- und Gerichtskosten werden durch den Käufer getragen. Stichworte Nutzfläche: 128,00 m², Anzahl der Badezimmer: 1, Anzahl Terrassen: 1, 2 Etagen

Weitere Services

Lust auf eine Besichtigung?
Eine Frage zur Immobilie?
Nachricht hinzufĂĽgen
Mit der Nutzung der oben angegebenen Telefonnummer oder durch Klicken auf „Kontaktieren“ akzeptierst Du die Allgemeinen Nutzungsbedingungen, denen Du jederzeit widersprechen kannst. Weitere Informationen zum Datenschutz

Ăśber den Anbieter

Fritz-Reuter-Str. 13, 18190 Sanitz
partner badge
Partnerschaft
Frau Jana Wiedemeyer
Frau Jana WiedemeyerDein Kontakt
Online-ID: 2h6u356
Referenznummer: A134
Wiedemeyer Immobilien
title
Wiedemeyer Immobilien
Bewertung: 5 von 5 Sternen
Nachricht hinzufĂĽgen
Mit der Nutzung der oben angegebenen Telefonnummer oder durch Klicken auf „Kontaktieren“ akzeptierst Du die Allgemeinen Nutzungsbedingungen, denen Du jederzeit widersprechen kannst. Weitere Informationen zum Datenschutz
Wie zufrieden bist du mit dieser Seite (nicht mit der Immobilie selbst)?