* BEGEHRTE HALBHÖHENLAGE IN ESSLINGEN-LIEBERSBRONN * * GROSSE 6-/7-ZIMMER-MAISONETTEWOHNUNG MIT TOLLER AUSSICHT * * CA. 152 QM WOHNFLÄCHE * 2 BALKONE * 2 PKW-STELLPLÄTZE *
Diese Maisonettewohnung entstand durch die Zusammenlegung zweier separater Wohneinheiten (jeweils 3-Zi.-Wohnungen).
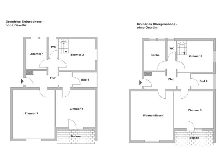
Sie befindet sich im Erd- und 1. Obergeschoss eines gepflegten Mehrfamilienhauses in beliebter und ruhiger Halbhöhenlage in Esslingen-Liebersbronn. Mit einer Wohnfläche von ca. 152 qm erstreckt sie sich über zwei Etagen und bietet somit genügend Platz für Paare oder Familien, die Wert auf Flexibilität und Großzügigkeit legen. Eine Trennung in wiederum 2 separate Wohneinheiten wäre ebenfalls problemlos machbar.
Trotz des Renovierungsbedarfs besticht die Wohnung durch ihr großes Potenzial und die vielfältigen Nutzungsmöglichkeiten. Insgesamt stehen 5-6 Schlafzimmer zur Verfügung. Auf den zwei Balkonen hat man eine fantastische Aussicht und Weitblick über die Region.
Zu dieser Wohnung gehören zudem 2 Keller-/Abstellräume und 2 Pkw-Stellplätze.
Die genaue Raumaufteilung können Sie den beigefügten Grundrissen entnehmen.
Merkmale
Bezug: sofort
Einbauküche
Keller
2 Stellplätze: 2 Außen-Stellplätze
Gäste-WC
Balkon
Fernblick
Badezimmer: Badewanne, Bad mit Fenster
Grundrisse
Grundrisse
1 / 1
Realisiere Dein Projekt
Bausubstanz und Energie
Energieausweis
G
Baujahr1962
Zustand der ImmobilieGepflegt
HeizungsartEtagenheizung
EnergieträgerGas
Preisdetails
Kaufpreis
435000 €435.000 €
2.854,33 €/m²
Provision für Käufer
Bei Abschluss eines Kaufvertrages wird eine Vermittlung-/ Nachweisprovision in Höhe von 3,57 % inklusive 19,00 % MwSt. auf den Kaufpreis vom Käufer fällig.
Weitere Preisinformationen
2 Stellplätze
Geschätzte Gesamtkosten
480.979 €1
Kaufpreis
435.000 €
Kaufnebenkosten
45.979 €
2
Notarkosten (1,5%)
6.525 €
Grunderwerbsteuer (5%)
21.750 €
Provision für Käufer (3,57%)
15.529 €
Grundbucheintrag (0,5%)
2.175 €
1Der angezeigte Wert ist eine automatisch berechnete Schätzung von immowelt.
2Bei den Angaben handelt es sich um ortsübliche Werte. Individuelle Kosten können abweichen.
Lage
Liebersbronn, Esslingen am Neckar (73732)
Der Anbieter hat die genaue Adresse nicht freigegeben
Die angebotene Maisonettewohnung befindet sich in begehrter Halbhöhenlage von Esslingen-Liebersbronn, einem der beliebtesten und zugleich ruhigsten Wohngebiete von Esslingen am Neckar. Die naturnahe Umgebung, die lockere Bebauung sowie die hervorragende Aussichtslage verleihen dem Standort eine besonders hohe Wohnqualität.
Das gepflegte 7-Familienhaus liegt in einem ruhigen Wohngebiet mit überwiegend Ein- und kleineren Mehrfamilienhäusern. Durch die erhöhte Lage genießen Sie einen herrlichen Ausblick über Liebersbronn und die umliegenden Grünflächen. Gleichzeitig profitieren Sie von einer angenehmen Wohnruhe fernab vom Durchgangsverkehr.
Die unmittelbare Umgebung ist geprägt von Wiesen, Feldern und Weinbergen und bietet zahlreiche Möglichkeiten für Spaziergänge, Joggingrunden und Fahrradtouren direkt vor der Haustür. Naturfreunde und Familien schätzen besonders die Nähe zu den Naherholungsgebieten rund um den Schurwald.
Trotz der ruhigen Lage ist die Infrastruktur sehr gut: Einkaufsmöglichkeiten für den täglichen Bedarf, Bäckereien, Ärzte, Apotheken sowie Kindergärten und eine Grundschule befinden sich direkt im Ort oder in den angrenzenden Stadtteilen und sind schnell erreichbar. Weiterführende Schulen sowie ein umfangreiches Einkaufs- und Freizeitangebot finden sich in der nur wenige Minuten entfernten Esslinger Innenstadt.
Die Anbindung an den öffentlichen Nahverkehr ist ebenfalls gegeben. Eine Busverbindung bringt Sie bequem in die Esslinger Innenstadt mit Anschluss an den S-Bahn-Verkehr Richtung Stuttgart. Mit dem Auto erreichen Sie die Stuttgarter Innenstadt sowie den Flughafen und die Messe Stuttgart in etwa 20-30 Minuten.
Die Kombination aus ruhiger Aussichtslage, naturnahem Umfeld und guter Erreichbarkeit macht diese Wohnlage besonders attraktiv - ideal für alle, die großzügiges Wohnen in angenehmer Umgebung mit guter Anbindung verbinden möchten.
WICHTIG: Bitte haben Sie Verständnis, dass wir bei Interesse . Ihren vollständigen Namen . Ihre Wohnanschrift sowie . Ihre E-Mail-Adresse und Telefonnummer benötigen.
Die von uns gemachten Informationen beruhen auf Angaben des Verkäufers. Für die Richtigkeit und Vollständigkeit der Angaben kann keine Gewähr bzw. Haftung übernommen werden. Ein Zwischenverkauf und Irrtümer sind vorbehalten.
Eine Besichtigung ist auf ausdrücklichen Wunsch des Eigentümers nur in unserer Begleitung erwünscht. Bitte vereinbaren Sie deshalb mit uns einen Termin.
Selbstverständlich stehen wir Ihnen für weitere Fragen jederzeit gerne zur Verfügung.
Wir freuen uns auf Ihre Anfrage!
Zondler & Costanzo Immobilien Ihre Spezialisten rund um die Immobilie!
Stichworte
Stellplatz vorhanden, Nutzfläche: 8,10 m², Anzahl der Schlafzimmer: 6, Anzahl der Badezimmer: 2, Anzahl der separaten WCs: 2, Anzahl Balkone: 2, Kellerfläche: 8,10 m², 2 Etagen