Version: 8.24.1Navigation überspringen
460.000 €
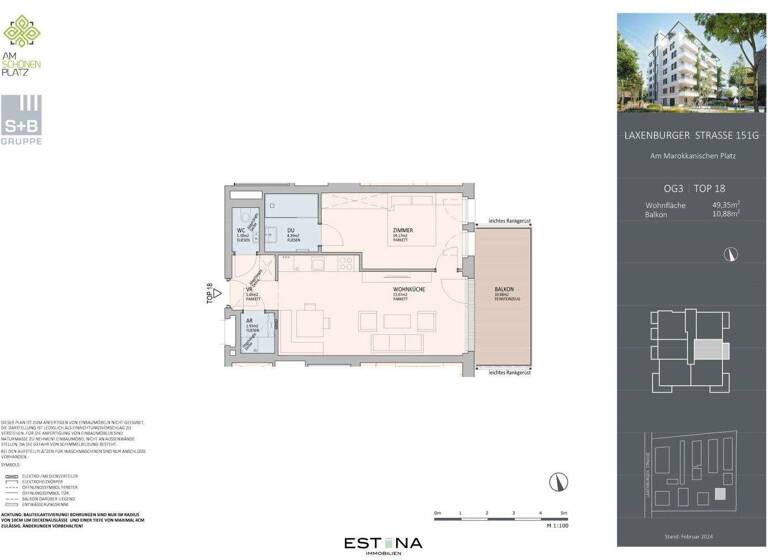
2 Zimmer  •  49,4 m²  •  3. Geschoss
Immowelt logo

Wohnung zum Kauf - Erstbezug
460000 €
9.321 €/m²
2 Zimmer  •  49,4 m²  •  3. Geschoss

Wohnprojekt "Am schönen Platz" - Pärchenwohnung mit perfektem Grundriss

Inspiriert von der Kultur und der unvergleichlichen Schönheit Marokkos, ist der Schöne Platz mehr als nur ein Wohnensemble - es ist eine Ode an die Liebe zur Natur, zur Kunst und zur Lebensfreude.

Eingebettet in die künstlerische Gartengestaltung von André Heller bieten die neuen Wohnungen einen großzügigen Blick in die weite Landschaft über die benachbarte Kleingartensiedlung. Das lebendige Farbenspiel der diversen Mosaikböden bei den Glashäusern und die mediterrane Bepflanzung im marokkanischen Garten schaffen eine harmonische Verbindung zwischen Architektur und Natur. Eine Allee aus Bambus bildet entlang der südlichen Grenze einen malerischen grünen Abschluss und eine geschützte Ruhezone für die Bewohner.

Moderne Eleganz, vereint mit marokkanischem Flair:
Die 36 exklusiven Eigentumswohnungen wurden mit äußerster Sorgfalt geplant, um ein Höchstmaß an Komfort und Ästhetik zu bieten - von den großzügigen Balkonen bis zu den geschmackvollen Details in jedem Raum.
An der Fassade rankt sich üppiges Grün über die insgesamt sieben Geschosse bis zum Dach, auf dem als Abschluss ein Kräutergarten nach Hildegard von Bingen auf die Bewohner wartet. Leuchtbänder an der Fassade, gemeinsam mit indirekter Beleuchtung an der Unterseite der Balkone, sorgen für magische Lichtstimmungen. Im Aufzug begeistert eine grüne Mooswand hinter Glas.

Die Wohnungen verfügen über ein effizientes Heiz- und Temperierungssystem mit Betonkernaktivierung und gelegentlicher Fußbodentemperierung. Es passt sich automatisch den Wetterbedingungen an und wird zentral gesteuert. Elektrisch steuerbare
Außenjalousien bieten zusätzlichen Sonnenschutz und Lichtregulierung.

Ein Ort zum Leben und Arbeiten:
Die vier separaten Büroeinheiten, verbunden mit den Wohnungen und dennoch separat zugänglich, bieten eine einzigartige Möglichkeit, das Leben und die Arbeit zu vereinen. Hier können Sie Kundentermine abhalten, Besprechungen führen oder einfach nur in Ruhe
arbeiten, ohne Ihr Zuhause verlassen zu müssen.

Eine Verbindung zur Natur und zur Stadt:
Der Schöne Platz liegt nicht nur inmitten einer grünen Oase, sondern ist auch perfekt an die Stadt angebunden. Die U-Bahn-Station U1 "Altes Landgut" ist nur wenige Minuten entfernt, und zahlreiche Parkanlagen und Naherholungsgebiete bieten die Möglichkeit, dem Trubel der Stadt zu entfliehen.
Ein Supermarkt im angrenzenden Gebäude rundet das Angebot ab, indem er Bewohnern und Besuchern eine bequeme Einkaufsmöglichkeit direkt vor der Haustür bietet.

Zusätzlich können sich die neuen Bewohner über eine hauseigene Tiefgarage, Kellerabteile, Kinderwagen- und Fahrradabstellräume freuen.

Die angeführten Fotos sind Beispielbilder einer bereits fertiggestellten Wohnung im Projekt.

Raumaufteilung:
- Vorraum
- geräumige Wohnküche mit Zugang zum Balkon 
- großes Schafzimmer 
- Badezimmer mit Walk-Inn Dusche und Waschbecken
- Abstellraum inkl. Waschmaschinenanschluss
- separate Toilette inkl. Handwaschbecken 
- Balkon 

Lage und Infrastruktur: 
Dieses einzigartige Wohnprojekt befindet sich im Süden Wiens im 10. Wiener Gemeindebezirk. Alle Geschäfte und Dienstleistungen rund um das tägliche Leben wie Supermärkte, Bäcker, Apotheke, Drogeriemarkt, Bank und Post liegen in unmittelbarer Nähe. Die Therme Wien und das umliegende Naherholungsgebiet Wienerberg mit zahlreichen Badeseen runden das Infrastrukturangebot ab.

Die Busstation der Linie 15A bringt sie unter 5 Minuten zu U1 Altes Landgut oder in ca. 3 Minuten zu den Bürozentren am Wienerberg. Mit der Straßenbahnlinie 11 und O gelangt man in nur 15 Minuten in die Wiener Innenstadt (Karlsplatz). Darüber hinaus erreicht man mit der Straßenbahnlinie 6 in nur wenigen Minuten auch an die U-Bahnlinien U1, U4 und U6. Auch mit dem Auto ist man durch die Nähe zur S1, A2 und A4 bestens gebunden.

Kosten:
Kaufpreis: € 460.000,- für Endnutzer (€ 418.181,82 exkl. 20% USt. für Anleger)

PROVISIONSFREI!

Ein Stellplatz um € 29.000,- kann zusätzlich gekauft werden. 

Kontakt:
Bei Fragen oder zur Vereinbarung eines Besichtigungstermins wenden Sie sich bitte an Frau Danja Dieringer unter dieringer@estina.at oder mobil unter 0676 344 95 19.

Merkmale

  • Bezug: Herbst / Winter 2024
  • 3. Geschoss
  • offene Küche
  • Personenaufzug
  • Außen-Stellplatz
  • Balkon
  • Garten

Grundrisse

Grundrisse
1 / 1

Realisiere Dein Projekt

Bausubstanz und Energie

Heizwärmebedarf (HWB)

A

Gesamtenergieeffizienz (fGEE)

A+
  • Baujahr2024
  • Zustand der ImmobilieNeubau, Erstbezug
Immowelt logo

Preisdetails

Kaufpreis
460000 €
9.321,18 €/m²
Provision für Käufer
Bitte beachte, das Angebot kann bei Vertragsabschluss die Zahlung einer Provision beinhalten. Weitere Informationen erhältst Du vom Anbieter.
Weitere Preisinformationen
1 Stellplatz

Lage

address-icon
Am marokkanischen Platz / Laxenburger StraßeWien (1100)
Laxenburger Str 151 zu U1 Altes Landgut 6min mit Bus 15A // Zu Fuß 12 Minuten zu Erholungsgebiet WB // Lidl vor Tür // 4 Auto Min zur Verteilerkreis Favoriten (A23/ Südosttang.) // 15A vor Tür // 66A 7 Gehminuten // 11 und 0 (Straßenbahn) 6Gehminuten // Bus 200 und Bus 210 vor Tür //

Weitere Informationen

Stichworte Energieversorgung mit alternativen Energien, Tiefgarage vorhanden, Ost-Balkon/Terrasse, Fahrradraum, Freifläche: 10,88 m², Anzahl der Badezimmer: 1, Anzahl der separaten WCs: 1, Anzahl Balkone: 1, Balkon-Terrassen-Fläche: 10,88 m², Bundesland: Wien, 7 Etagen

Weitere Services

Lust auf eine Besichtigung?
Eine Frage zur Immobilie?
Nachricht hinzufügen
Mit der Nutzung der oben angegebenen Telefonnummer oder durch Klicken auf „Kontaktieren“ akzeptierst Du die Allgemeinen Nutzungsbedingungen, denen Du jederzeit widersprechen kannst. Weitere Informationen zum Datenschutz

Über den Anbieter

Heinrichsgasse 4/12, 1010 WIEN
partner badge
Partnerschaft
Frau Danja DieringerDein Kontakt
Online-ID: 25XD5NPZYPSH
Referenznummer: OBGC202603051559527772f297939db
ESTINA Immobilien GmbH
ESTINA Immobilien GmbH
Bewertung: 4,8 von 5 Sternen
Nachricht hinzufügen
Mit der Nutzung der oben angegebenen Telefonnummer oder durch Klicken auf „Kontaktieren“ akzeptierst Du die Allgemeinen Nutzungsbedingungen, denen Du jederzeit widersprechen kannst. Weitere Informationen zum Datenschutz
Wie zufrieden bist du mit dieser Seite (nicht mit der Immobilie selbst)?