Version: 8.25.1Navigation überspringen
89.000 €
Immowelt logo

Grundstück zum Kauf
89000 €

Baugrundstück mit Genehmigung - Barban, Istrien 1200m2

Baugrundstück mit Baugenehmigung - Istrien, Barban (m2)
Villenprojekt für 8 Personen mit Pool - sofort bebaubar

Suchen Sie ein Baugrundstück in Istrien, das sofort bebaut werden kann?
Dieses m2 große Grundstück bietet eine gültige Baugenehmigung und ein fertiges Projekt für eine moderne Villa mit Pool - ideal für private Bauherren oder Investoren.

In ruhiger Lage bei Barban, mit Blick auf den Naturpark Ucka, nur wenige Kilometer vom Meer entfernt.

Villenprojekt:

- Wohnfläche: 200 mSchlafzimmer, jedes mit eigenem Bad
- Zusätzliches Gäste-Bad
- Offener Wohn-, Ess- und Küchenbereich
- Privater Pool, Sommerküche und 3 Parkplätze
- Strom und Wasseranschluss bereits vorhanden

Ideal für:
- Investoren mit Fokus auf Ferienvermietung in Istrien
- Käufer, die ihre eigene Villa bauen möchten
- Projekte mit sofortiger Bebaubarkeit und hohem Ertragspotenzial

Grundstücke mit Genehmigung und Projekt sind in Istrien selten - kontaktieren Sie uns jetzt, bevor diese Gelegenheit vergeben ist!

Für die Vermittlungsdienstleistung berechnet die Agentur eine Provision in Höhe von 3 % des im Maklervertrag vereinbarten Referenzwertes.
Die Besichtigung der Immobilie ist nur nach Unterzeichnung des Maklervertrags mit der Agentur möglich.

ID CODE: 34

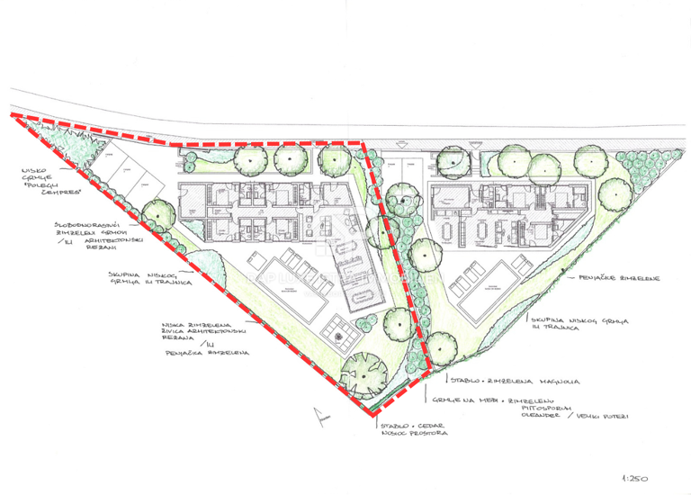
Grundrisse

Grundrisse
1 / 1

Virtueller Rundgang

Video

Realisiere Dein Projekt

Bausubstanz und Energie

Möchtest du Details zum Energieverbrauch?info_energy_calculation-icon
Immowelt logo

Preisdetails

Kaufpreis
89000 €
Provision für Käufer
Bitte beachte, das Angebot kann bei Vertragsabschluss die Zahlung einer Provision beinhalten. Weitere Informationen erhältst Du vom Anbieter.

Lage

address-icon
Barban (52207)
Der Anbieter hat die genaue Adresse nicht freigegeben

Weitere Informationen

Stichworte Gesamtfläche: 1.200,00 m², Stadtzentrumslage

Weitere Services

Lust auf eine Besichtigung?
Eine Frage zur Immobilie?
Nachricht hinzufügen
Mit der Nutzung der oben angegebenen Telefonnummer oder durch Klicken auf „Kontaktieren“ akzeptierst Du die Allgemeinen Nutzungsbedingungen, denen Du jederzeit widersprechen kannst. Weitere Informationen zum Datenschutz

Über den Anbieter

Prilaz Kikova 4, 52220 LABIN
partner badge
Partnerschaft
David PercanDein Kontakt
Online-ID: 258ERGBHKFQG
Referenznummer: 3138-34
LABIN d.o.o.
Nachricht hinzufügen
Mit der Nutzung der oben angegebenen Telefonnummer oder durch Klicken auf „Kontaktieren“ akzeptierst Du die Allgemeinen Nutzungsbedingungen, denen Du jederzeit widersprechen kannst. Weitere Informationen zum Datenschutz
Wie zufrieden bist du mit dieser Seite (nicht mit der Immobilie selbst)?