Das Bürogebäude in Weillimdorf befindet sich in einem sehr gepflegten Zustand. Eine großzügige Verglasung sorgt für ausreichend Lichteinfall in den Flächen und schafft somit eine angenehme Arbeitsatmosphäre. Eine CAT-7 Verkabelung, Bodentanks, ein innen-/außenliegender Sonnenschutz sowie ein Personenaufzug gehören zur Ausstattung. Darüber hinaus steht zudem ein Lastenaufzug zur Verfügung. Teeküchen runden das Angebot ab. Im EG steht darüber hinaus eine Anlieferrampe mit Hebebühne zur Verfügung. Das Objekt besitzt außerdem Außenstellplätze, welche bei Bedarf zusätzlich angemietet werden können.
Merkmale
Bezug: auf Anfrage
1. Geschoss
Personenaufzug
16 Stellplätze
Zentralheizung, Personenaufzug
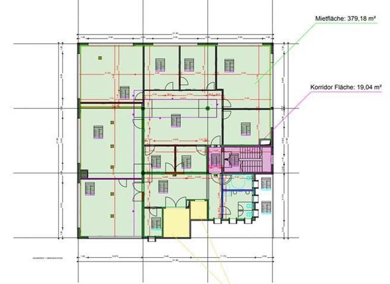
Grundrisse
Grundrisse
1 / 1
Bausubstanz und Energie
Energieausweis
Endenergieverbrauch (Wärme)
Endenergieverbrauch (Strom)
Baujahr1992
Zustand der ImmobilieGepflegt
HeizungsartZentralheizung
EnergieträgerGas
Mietkosten
Monatliche Miete
11,50 €/m²
Nebenkosten
2,50 €
Zusätzliche Kosten
Heizkosten
Provision für Mieter
Provisionsfrei
Kaution
3 Bruttowarmmieten
Lage
Weilimdorf, Stuttgart, Weilimdorf (70499)
Der Anbieter hat die genaue Adresse nicht freigegeben
Das Objekt befindet sich im Gewerbegebiet nahe dem S-Bahnhof "Weilimdorf" und "Korntal". Von hier aus erhält man direkten Anschluss an den Stuttgarter Hauptbahnhof. Die Umgebung ist hauptsächlich von einer Büronutzung geprägt und überzeugt durch ihre Top-Lage dank einer exzellenten Verkehrsanbindung anhand der Nähe zur Autobahn A81. Die Stuttgarter Innenstadt ist dadurch unkompliziert in weniger als 20 Fahrminuten zu erreichen. Die Weilimdorfer Innenstadt mit einem abwechslungsreichen Angebot an Einkaufsmöglichkeiten für den täglichen Bedarf liegt ebenfalls nur wenige Fahrminuten entfernt.
Weitere Informationen
Sonstiges
Noch nicht das Richtige? Wir führen weitere Objekte im Großraum Stuttgart. Sprechen Sie mit unseren Beratern. Gemeinsam finden wir Ihr Wunschobjekt! Wir freuen uns auf Ihre Kontaktaufnahme!
Nach den §§ 16, 16 a EnEV ist der Eigentümer, Verkäufer, Vermieter, Verpächter und Leasinggeber bei der Vermarktung von Immobilien verpflichtet, den Energieausweis der Immobilie gemäß der gesetzlichen Vorgabe bei Besichtigungen auszuhändigen bzw. auszuhängen und bestimmte energetische Kennwerte aus dem Energieausweis in die Immobilieninserate und Exposés aufzunehmen. Dieser Nachweis wurde von uns bereits bei den Eigentümern angefordert und kann von Ihnen beim Besichtigungstermin eingesehen werden.
Das Angebot ist für den Mieter provisionspflichtig. Im Falle der Anmietung hat Immoraum einen Anspruch gegenüber dem Mieter auf Zahlung einer Mieterprovision in Höhe von 3 Nettokaltmieten zzgl. gesetzl. MwSt.