Version: 8.26.0Navigation überspringen
Mietkosten auf Anfrage
4.500 m² Bürofläche  •  teilbar ab 300 m²
Immowelt logo

Bürofläche zur Miete - Erstbezug • provisionsfrei
Mietkosten auf Anfrage
4.500 m² Bürofläche  •  teilbar ab 300 m²

Werkquartier 3 - Bürogebäude Nähe Aachen Arkaden

Das Neubauprojekt "Werkquartier 3" stellt eine Erweiterung der bereits gebauten Werkquartiere 1 und 2 dar.
Es befindet sich derzeit in Planung und soll zukünftig 2025 zur Verfügung stehen.

Das Objekt ist freistehend und wird aus 4 Geschossen mit einem Innenhof bestehen. Jede Etage wird in zwei Mietflächen teilbar sein.

Der Ausbau und die Ausstattung erfolgt in Absprache mit Ihnen als Mieter, sodass Ihr individuelles Konzept optimal und nach Ihren Wünschen umgesetzt werden kann.

Folgende Bürostrukturen sind denkbar:
open space mit 72 Arbeitsplätzen , Zellenbüros mit 50 Arbeitsplätzen und eine Kombination aus beiden Bürostrukturen mit insgesamt 50 Arbeitsplätzen.

Die Mieteinheiten sollen außerdem über ein gemeinsames Foyer erschlossen werden.

Merkmale

  • Bezug: 2025
  • 4. Geschoss
  • Barrierefrei
  • Personenaufzug
  • 50 Stellplätze
  • voll klimatisiert
Bei diesem Bürogebäude wird der KfW EH40-NH-Standard realisiert. Eine DGNB-Gold-Zertifizierung wird angestrebt. Zudem wird eine Photovoltaikanlage auf dem Dach montiert, die zur Deckung des eigenen Strombedarfs dient. Das Bürogebäude ist klimatisiert.

Es stehen ca. 50 PKW-Stellplätze zur Verfügung und im Außenraum ausreichend Fahrradstellplätze.

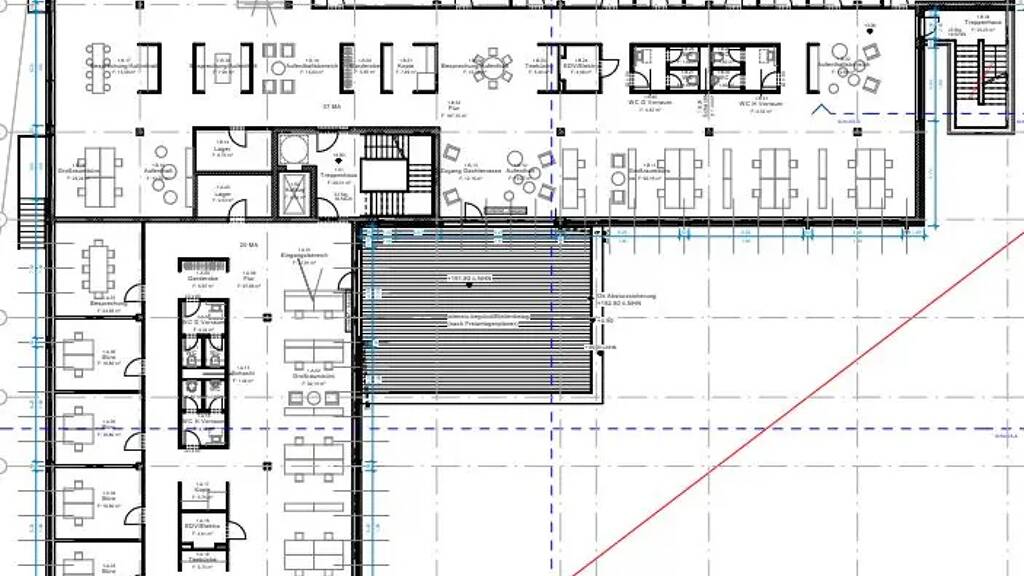
Grundrisse

Verschaffe dir einen genauen Überblick über die Raumaufteilung.selection_property_house-icon

Bausubstanz und Energie

Möchtest du Details zum Energieverbrauch?info_energy_calculation-icon
  • Zustand der ImmobilieErstbezug
  • HeizungsartFußbodenheizung
  • EnergieträgerElektro
Immowelt logo

Mietkosten

Miete auf Anfrage
Provision für Mieter
provisionsfrei
Kaution
keine Angabe

Lage

address-icon
Eisenbahnweg 22Aachen (52068)
Am Eisenbahnweg gelegen, ist das Projekt eigebettet in ein neues, modernes Quartier mit einer Mischung aus Wohnen und Arbeitswelten für öffentliche und privatwirtschaftliche Nutzer. Ein Standort für Vorreiter, der viele Erweiterungsmöglichkeiten bietet: Das ganze Viertel entwickelt sich zu einem vitalen, innovativen Ort, in dem Flächen für künftiges Wachstum vorhanden sind. Geschäfte des täglichen Bedarfs, verschiedene Gastronomie-Angebote sowie Sharing-Stationen für Auto (Cambio) und E-Bikes (Velocity) befinden sich in unmittelbarer Nachbarschaft. Eine Grundschule, mehrere Kitas, Ärzte, Bäckereien und ein Fitness-Studio sind ebenfalls fußläufig erreichbar.

Der Bahnhof Rothe Erde mit Anschlüssen zum Regionalverkehr und der Euregiobahn liegt nur fünf Gehminuten entfernt. 18 Buslinien fahren im Minutentakt von den fußläufig zu erreichenden Haltestellen in die
Aachener Innenstadt sowie in verschiedene Stadtteile und Nachbarorte. Die Autobahnanschlüsse zur A4 und A44 liegen jeweils nur wenige Fahrminuten entfernt.

Weitere Services

Lust auf eine Besichtigung?
Eine Frage zur Immobilie?
Mit einer persönlichen Nachricht hast du bessere Chancen auf eine Antwort.
Mit der Nutzung der oben angegebenen Telefonnummer oder durch Klicken auf „Kontaktieren“ akzeptierst Du die Allgemeinen Nutzungsbedingungen, denen Du jederzeit widersprechen kannst. Weitere Informationen zum Datenschutz

Über den Anbieter

Aachener- und Münchener-Alle 9, 52074 Aachen
Herr Daniel Babinsky
Herr Daniel BabinskyDein Kontakt
Online-ID: 23RVW382AIHG
Referenznummer: 130367405
Wie zufrieden bist du mit dieser Seite (nicht mit der Immobilie selbst)?