

Verkaufsfläche zur Miete5.000 €200 m² Verkaufsfläche
5.000 €
200 m² Verkaufsfläche
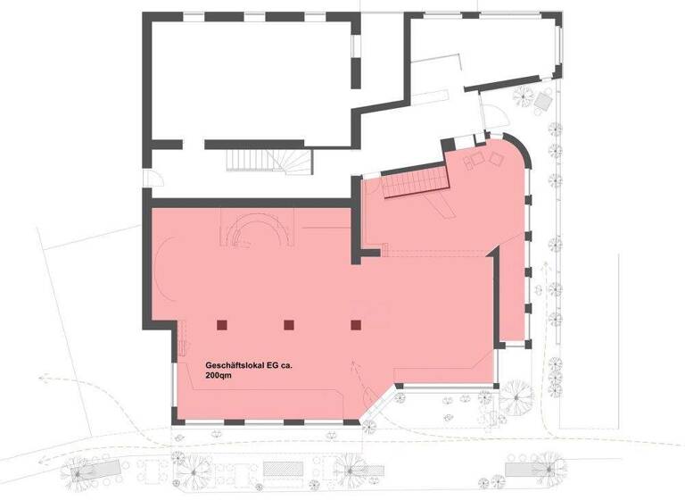
Exklusives Geschäftslokal, mit ca. 200 m² Verkaufsfläche, in Top-Lage von Zell am See!
Merkmale
- frei ab 01.10.2026
- Bodenbelag: Parkett
- Bergblick
- 2 Stellplätze: 2 Außen-Stellplätze
Grundrisse
Grundrisse
1 / 1
Realisiere Dein Projekt
Bausubstanz und Energie
Möchtest du Details zum Energieverbrauch?

- Zustand der ImmobilieGepflegt
Mietkosten
Gesamtmiete
6.000 €
Nettokaltmiete zzgl. Betriebskosten
5.000 €
Provision für Mieter
Bitte beachte, das Angebot kann bei Vertragsabschluss die Zahlung einer Provision beinhalten. Weitere Informationen erhältst Du vom Anbieter.
Kaution
3 Brutto-Monatsmieten
Weitere Preisinformationen
AB-Preis - hängt von der Art des Gewerbes ab
- prinzipiell ablösefrei, Mietbeginn: Herbst 2026
- Laufzeit: mind. 10 Jahre, 2 Stellplätze
Nettokaltmiete: 5.000,00 EUR
Lage

Zell am See (5700)
Der Anbieter hat die genaue Adresse nicht freigegeben
Weitere Informationen
Weitere Services
Lust auf eine Besichtigung?
Eine Frage zur Immobilie?
Über den Anbieter
Schmittenstraße 4, 5700 ZELL AM SEE
Partnerschaft
Frau Ulrike LahodaDein Kontakt
Online-ID: 25U49NU14PMG
Referenznummer: 26001

Absolut Immobilien Real Estate GmbH
Bewertung: 4 von 5 Sternen
Wie zufrieden bist du mit dieser Seite (nicht mit der Immobilie selbst)?

