

Wohnung zum Kauf - Erstbezug459000 €5.779 €/m²3 Zimmer • 72,7 m²
459000 €
5.779 €/m²
3 Zimmer • 72,7 m²
Stilvoll wohnen. Nachhaltig leben. Ideal gelegen - Nobile Greenville
Merkmale
- Dachgeschoss
- Barrierefrei
- Personenaufzug
- Bodenbelag: Fliesen, Holzdielen
- Terrasse
- Loggia
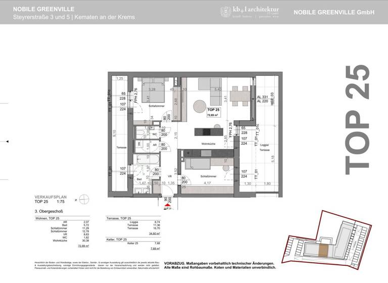
Grundrisse
Grundrisse
1 / 1
Realisiere Dein Projekt
Bausubstanz und Energie
Heizwärmebedarf (HWB)
B
Gesamtenergieeffizienz (fGEE)
A+
- Baujahr2026
- Zustand der ImmobilieNeubau, Erstbezug
- HeizungsartFußbodenheizung
- EnergieträgerFernwärme, Solar
Preisdetails
Kaufpreis
459000 €
5.778,67 €/m²
Provision für Käufer
3% des Kaufpreises zzgl. 20% USt.
Lage

Kematen an der Krems (4531)
Weitere Informationen
Weitere Services
Lust auf eine Besichtigung?
Eine Frage zur Immobilie?
Über den Anbieter
OVB Allfinanzvermittlungs GmbHMaklerbüro
Sirone Straße 4/1/C, 5071 WALS B. SALZBURG
Partnerschaft
Frau Sara HufnaglDein Kontakt
Weitere Unterlagen
Online-ID: 251UPMNNA6A3
Referenznummer: OBGC2025071016583921580c259c9a9
OVB Allfinanzvermittlungs GmbH
Wie zufrieden bist du mit dieser Seite (nicht mit der Immobilie selbst)?

