Version: 8.26.0Navigation überspringen
3.175 €
5 Zimmer  •  176,4 m²  •  2. Geschoss
Immowelt logo

Wohnung zur Miete
3.175 €
5 Zimmer  •  176,4 m²  •  2. Geschoss

Altbauwohnung beim Judenplatz! - Klimatisiert!

RUHELAGE I ALTBAUWOHNUNG BEIM JUDENPLATZ!

Wir freuen uns auf Ihren Anruf
Paul Kleindl 0699/1188 7600 oder 01/526 26 36

Beschreibung 
Im Haus "Zum kleinen Jordan", welches 1836 erbaut und 1856 aufgestockt wurde steht eine 176qm große Wohnung in erstklassiger Ruhelage frei zur Vermietung. Erleben Sie exklusives Wohngefühl im 2. Liftstock in diesem wunderschönen Jahrhundertwendehaus. 

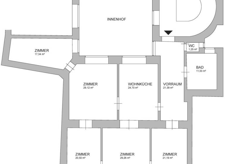
Raumaufteilung:
Zentraler Vorraum
Wohn-/Essbereich mit vollausgestatteter Küche
5 Zimmer
Badezimmer mit Badewanne, Dusche und Toilette
Separate Toilette

Ausstattung:
Parkettböden bzw. Fliesen sowie Gasetagenheizung und eine Komplettküche.

Infrastruktur und öffentliche Anbindung:
Geschäfte des täglichen Lebensbedarfes gibt es in unmittelbarer Nähe der Wohnung. Die öffentliche Anbindung ist sehr gut und wie folgt:
Bus 
Hoher Markt 3A (0,10 km) 
Brandstätte 1A, 2A, 3A (0,13 km) 
Hoher Markt 1A, 3A (0,13 km) 
U-Bahn Stephansplatz U1 (0,35 km) 
Stephansplatz U3 (0,35 km) 
Herrengasse U3 (0,43 km) 

Energieausweis: HWB 96

Wir freuen uns auf Ihren Anruf
Paul Kleindl 0699/1188 7600 oder 01/526 26 36

 

Wir weisen darauf hin, dass zwischen dem Vermittler und dem zu vermittelnden Dritten ein familiäres oder wirtschaftliches Naheverhältnis besteht.

Der Immobilienmakler erklärt, dass er - entgegen dem in der Immobilienwirtschaft üblichen Geschäftsgebrauch des Doppelmaklers - einseitig nur für den Vermieter tätig ist.

Merkmale

  • 2. Geschoss
  • Einbauküche
  • Personenaufzug
  • Gäste-WC
  • Bad mit Fenster
  • Bodenbelag: Parkett

Grundrisse

Grundrisse
1 / 1

Bausubstanz und Energie

Heizwärmebedarf (HWB)

D

Gesamtenergieeffizienz (fGEE)

Der Anbieter hat keine Daten zum Energieausweis hinterlegt.
  • Baujahr1900
  • Zustand der ImmobilieAltbau (bis 1945), Gepflegt
  • HeizungsartEtagenheizung
  • EnergieträgerGas
Immowelt logo

Mietkosten

Gesamtmiete
3.793,02 €
Nettokaltmiete
18 €/m²
3.175 €
Betriebskosten
273,20 €
Kaution
3 Bruttomonatsmieten
Weitere Preisinformationen
Nettokaltmiete: 3.175,00 EUR

Lage

address-icon
Wien (1010)
Der Anbieter hat die genaue Adresse nicht freigegeben

Weitere Informationen

Stichworte Nutzfläche: 176,40 m², Anzahl der Badezimmer: 1, Anzahl der separaten WCs: 2, Bundesland: Wien

Weitere Services

Lust auf eine Besichtigung?
Eine Frage zur Immobilie?
Mit einer persönlichen Nachricht hast du bessere Chancen auf eine Antwort.
Mit der Nutzung der oben angegebenen Telefonnummer oder durch Klicken auf „Kontaktieren“ akzeptierst Du die Allgemeinen Nutzungsbedingungen, denen Du jederzeit widersprechen kannst. Weitere Informationen zum Datenschutz

Über den Anbieter

Mariahilfer Straße 167/12, 1150 WIEN
Herr Paul KleindlDein Kontakt
Online-ID: 25HZTL4RW1AX
Referenznummer: OBGC202604271148391358d94f539cf
Wie zufrieden bist du mit dieser Seite (nicht mit der Immobilie selbst)?