Mehrfamilienwohnhaus aus der Gründerzeit. Massiv gebaut mit Klinkerfassade und Natureinsteinelementen.
Merkmale
vermietet
Erdgeschoss
Keller
Garten
Die Wohnungen sind im normalen Standard ausgestattet. Die Wände in den Zimmern sind mit Rauhfaser tapeziert und weis gestrichen. Die Böden sind mit Laminat belegt, die Nassbereiche gefliest. Das Bad ist innenliegend und verfügt über eine Badewanne.
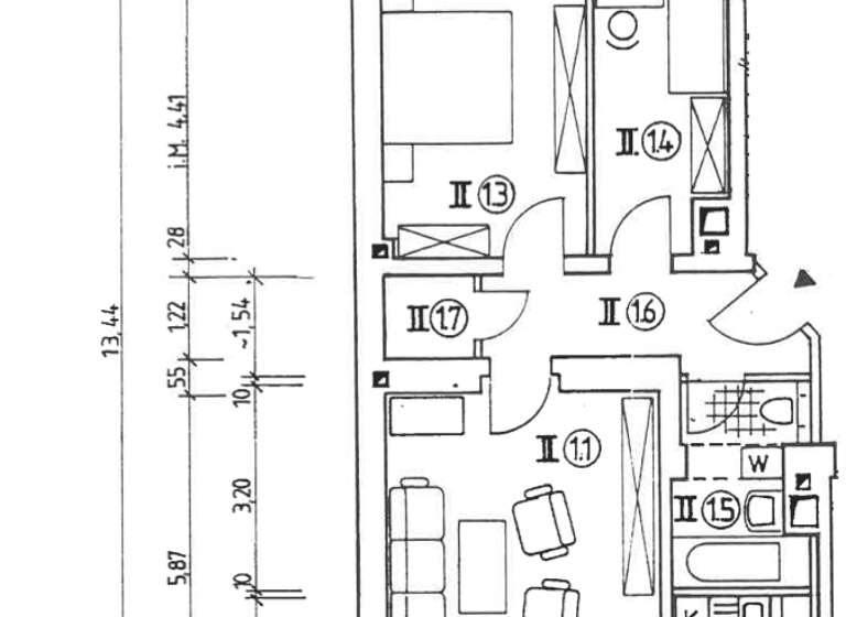
Grundrisse
Grundrisse
1 / 2
Realisiere Dein Projekt
Bausubstanz und Energie
Energieausweis
D
Baujahr1900
Zustand der ImmobilieGepflegt
HeizungsartZentralheizung
EnergieträgerGas
Preisdetails
Kaufpreis
127150 €127.150 €
1.850 €/m²
Hausgeld
262 €262 €
Provision für Käufer
3,00 inkl. MwSt.
Geschätzte Gesamtkosten
140.590 €1
Kaufpreis
127.150 €
Kaufnebenkosten
13.440 €
2
Notarkosten (1,5%)
1.907 €
Grunderwerbsteuer (5%)
6.358 €
Provision für Käufer (3,57%)
4.539 €
Grundbucheintrag (0,5%)
636 €
1Der angezeigte Wert ist eine automatisch berechnete Schätzung von immowelt.
2Bei den Angaben handelt es sich um ortsübliche Werte. Individuelle Kosten können abweichen.
Die Lassallestraße 60 besticht durch ihre ideale Lage in der nördlichen Innenstadt, die Familien, Berufstätige und Studierende gleichermaßen anspricht. Dank der hervorragenden Anbindung an die vorhandene Infrastruktur sind sämtliche nötigen Annehmlichkeiten in unmittelbarer Nähe zu finden. Einkaufsmöglichkeiten sind vielseitig und unkompliziert erreichbar, sodass dem täglichen Bedarf nichts im Wege steht. Nur einen kurzen Fußweg von 15 Minuten entfernt liegt der Fitnesspark am Johannesplatz, der zu einem aktiven Lebensstil einlädt. Die Anbindung an die Straßenbahn und die Stadtbusse erfolgt ebenfalls in unmittelbare Nähe, was den Weg in die Innenstadt besonders schnell und bequem gestaltet. Diese zentrale Lage ermöglicht es den Bewohnern, die Vorzüge des urbanen Lebens in vollem Umfang zu genießen. Zusätzlich tragen die Nähe zu Freizeiteinrichtungen und die attraktive Umgebung dazu bei, dass hier ein erfüllendes Lebensumfeld entsteht, das sowohl Ruhe als auch impulsiven städtischen Zauber vereint.
Weitere Informationen
Sonstiges
Die Gemeinschaft besteht aus 10WE. Das Gebäude wird über eine Erfurter Hausverwaltung betreut.
Die laufende Instandhaltung ist gewährleistet. Das Gebäude befindet sich in einem guten Zustand. Die aktuelle Gaszentralheizung ist aus dem Jahr 2010.
Das Hausgeld beträgt aktuell 262,00€. Hiervon sind 16,00€ Erhaltungsrücklage.
Die Mieteinnahme der Wohnung beträgt 6.000,00€ p.a. Die Rücklage der Gemeinschaft beträgt ca. 42.000€ zum 31.12.2024.
Auf Grund der Vermietung gibt es keine Innenaufnahmen der Wohnung.
Wir versenden vorab keine Objektunterlagen die über ein Exposé hinausgehen. Diesbezügliche Anfragen werden nicht beantwortet.
Es können weitere drei Wohnungen im Haus zum gleichen qm-Preis erworben werden. Der Kaufpreis ist ein Festpreis.
Stichworte
Anzahl der Badezimmer: 1, Kellerfläche: 4,00 m², 4 Etagen, modernisiert: 1996