

Penthouse zum Kauf - Erstbezug759000 €5.740 €/m²4 Zimmer • 120,7 m²
759000 €
5.740 €/m²
4 Zimmer • 120,7 m²
Wohnen am Golfplatz - Penthouse mit 130?m² Dachterrasse
Merkmale
- Barrierefrei
- Personenaufzug
- Bodenbelag: Fliesen, Holzdielen
- Terrasse
- Loggia
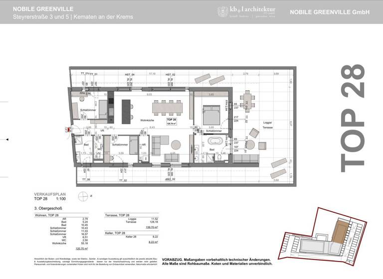
Grundrisse
Grundrisse
1 / 1
Realisiere Dein Projekt
Bausubstanz und Energie
Heizwärmebedarf (HWB)
B
Gesamtenergieeffizienz (fGEE)
A+
- Baujahr2026
- Zustand der ImmobilieNeubau, Erstbezug
- HeizungsartFußbodenheizung
- EnergieträgerFernwärme, Solar
Preisdetails
Kaufpreis
759000 €
5.740,43 €/m²
Provision für Käufer
3% des Kaufpreises zzgl. 20% USt.
Lage

Kematen an der Krems (4531)
Weitere Informationen
Weitere Services
Lust auf eine Besichtigung?
Eine Frage zur Immobilie?
Über den Anbieter
OVB Allfinanzvermittlungs GmbHMaklerbüro
Sirone Straße 4/1/C, 5071 WALS B. SALZBURG
Partnerschaft
Frau Sara HufnaglDein Kontakt
Weitere Unterlagen
Online-ID: 25P53BB779XN
Referenznummer: OBGC20250710165839862445eda3b21
OVB Allfinanzvermittlungs GmbH
Wie zufrieden bist du mit dieser Seite (nicht mit der Immobilie selbst)?

