Version: 8.24.0Navigation überspringen
11,80 €
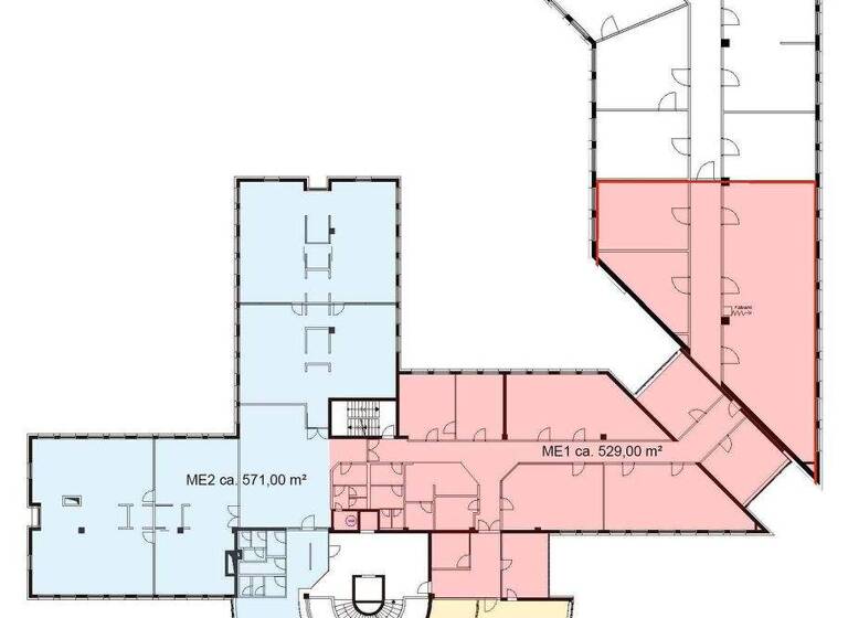
2.636 m² Bürofläche  •  teilbar ab 529 m²
Immowelt logo

Bürofläche zur Miete • provisionsfrei
11,80 €
/m²
2.636 m² Bürofläche  •  teilbar ab 529 m²

Büro | zur Miete | verkehrsgünstige Lage | Nürnberg Nord | PROVISIONSFREI*

GRÖSSE
ca. 1.375 m² 1. OG, teilbar ab ca. 529 m²
ca. 1.261 m² 3. OG
ca. 2.636 m² Gesamt

BEZUG
nach Absprache

MIETPREIS
11,80 EUR/m² inkl. Kühlung

jeweils zzgl. NK/HZ/MwSt. und vorbehaltlich einer Überprüfung der Mietersonderwünsche, deren Kosten und Verteilung.

STELLPLÄTZE
Tiefgarage à 80,00 EUR
Parkhaus à 80,00 EUR
Außenstellplatz à 60,00 EUR

jeweils zzgl. MwSt.

Das Parkhaus ist öffentlich und für Besucher zugänglich.

Merkmale

  • Bezug: nach Vereinbarung
- repräsentatives Büroareal mit gepflegten und schön gestalteten Außenanlagen
- helle und freundliche Büroflächen
- Kühlung über Splitgeräte, individuell pro Zimmer regulierbar
- teilweise Glastrennwände/-ausschnitte und Glastüren
- computergerechte Beleuchtung
- dunkelgrauer Nadelfilzteppichboden in den Büros
- Kabelkanäle im Brüstungsbereich mit CAT 7-Verkabelung
- Innenlamellen + elektrische Außenjalousien
- Teeküchen + Loungebereiche
- teilweise Dusche
- Personenaufzüge
- die Raumaufteilung kann nach Mieterwunsch verändert werden

Grundrisse

Grundrisse
1 / 2

Realisiere Dein Projekt

Bausubstanz und Energie

Der Anbieter hat keine Informationen zum Energieverbrauch bereit gestellt.
  • Zustand der ImmobilieGepflegt
Immowelt logo

Mietkosten

Monatliche Miete
11,80 €/m²
Provision für Mieter
provisionsfrei
Kaution
3 Bruttomonatsmieten / Bankbürgschaft

Lage

address-icon
ThonNürnberg (90425)
Der Anbieter hat die genaue Adresse nicht freigegeben
Das Objekt liegt in einer werbewirksamen und attraktiven Bürolage am nördlichen Innenstadtrand von Nürnberg und besticht durch seine hervorragende Anbindung an öffentliche Verkehrsmittel. Die Straßenbahn- und Bushaltestelle Thon, direkt vor dem Areal, sorgen für eine optimale Anbindung an das Stadtzentrum. Im fußläufigen Umfeld gibt es eine Vielzahl von Annehmlichkeiten, darunter eine Bäckerei, ein Metzger, eine Apotheke, Restaurants und ein Feinkostladen.

ENTFERNUNGEN
Bus/Straßenbahn "Thon": direkt vor dem Areal
Autobahn A73: ca. 10 Fahrminuten
Autobahn A3: ca. 10 Fahrminuten
Südwesttangente: ca. 16 Fahrminuten
Flughafen: ca. 7 Fahrminuten
Hauptbahnhof Nürnberg: ca. 15 Fahrminuten

Weitere Informationen

Sonstiges MIETERPROVISION*
Provisionsfrei!
Voraussetzung ist eine Mietvertragslaufzeit von 5 Jahren.
Bei kürzeren Mietvertragslaufzeiten wird der Mieter an der Provision beteiligt.

MIETEROPTIONSRECHT
Kumulativ kommt zu den vorstehend genannten jeweiligen Mieterprovisionen eine zusätzliche Mieterprovision hinzu in Höhe einer (ggf. weiteren) Nettomonatsmiete, wenn der Mieter Optionsrechte erhält, welche es ihm gestatten, die Laufzeit des Mietvertrags durch die Ausübung der Optionsrechte über eine Gesamtdauer von 10 Jahren hinaus zu verlängern.

AUFTRAGGEBER
Vertreten durch unser Büro. Wir sind vom Eigentümer exklusiv beauftragt.

BESICHTIGUNG
Jederzeit ausschließlich über unser Büro möglich.
Telefon: 0911 548099-0 | info@temme.de

ALLGEMEINES
Wir werden tätig auf der Grundlage unserer Allgemeinen Geschäftsbedingungen, die auf www.temme.de einsehbar sind.

Weitere Services

Lust auf eine Besichtigung?
Eine Frage zur Immobilie?
Nachricht hinzufügen
Mit der Nutzung der oben angegebenen Telefonnummer oder durch Klicken auf „Kontaktieren“ akzeptierst Du die Allgemeinen Nutzungsbedingungen, denen Du jederzeit widersprechen kannst. Weitere Informationen zum Datenschutz

Über den Anbieter

Am Tullnaupark 4, 90402 Nürnberg
partner badge
10 Jahre Partnerschaft
Frau Nicole Müller
Frau Nicole MüllerDein Kontakt

Weitere Unterlagen

Online-ID: 287sa5x
Referenznummer: 749bvm
Temme Immobilien GmbH & Co. KG
title
Temme Immobilien GmbH & Co. KG
Bewertung: 5 von 5 Sternen
Nachricht hinzufügen
Mit der Nutzung der oben angegebenen Telefonnummer oder durch Klicken auf „Kontaktieren“ akzeptierst Du die Allgemeinen Nutzungsbedingungen, denen Du jederzeit widersprechen kannst. Weitere Informationen zum Datenschutz
Wie zufrieden bist du mit dieser Seite (nicht mit der Immobilie selbst)?