Version: 8.25.1Navigation überspringen
1.600 €
4 Zimmer  •  105,5 m²  •  150 m² Grundstück  •  frei ab 01.07.2026
Immowelt logo

Reihenendhaus zur Miete
1.600 €
4 Zimmer  •  105,5 m²  •  150 m² Grundstück  •  frei ab 01.07.2026

AB 01.07.2026 + Markkleeberg + 4 RAUM REIHENHAUS ZUR MIETE

Reihenendhaus in Markkleeberg zu mieten ab Juli 2026:

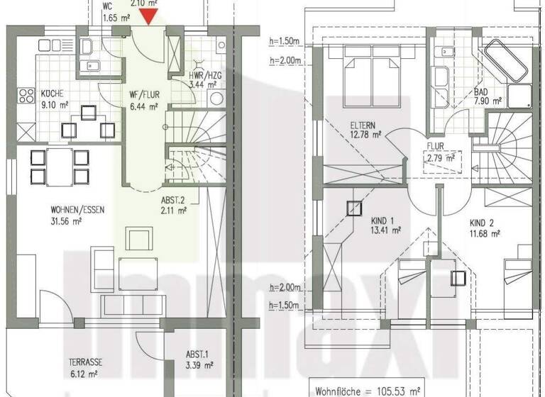
Die Immobilie besteht aus 4 Zimmern verteilt auf 2 Etagen. Im Erdgeschoss befindet sich das Wohnzimmer, die Küche, ein Gäste WC und der Hauswirtschaftsraum. Im Obergeschoss sind 3 weitere Zimmer vorhanden und das Tageslicht Badezimmer mit Wanne und Dusche. Die Immobilie ist nicht unterkellert. Es steht ein PKW Stellplatz vor dem Haus zur Verfügung.

Merkmale

  • frei ab 01.07.2026
  • 150 m² Grundstück
  • Gäste-WC
  • Terrasse
  • Garten
  • 2 Stellplätze: 2 Außen-Stellplätze
4 Zimmer verteilt auf 2 Etagen, Tageslichtbad + separates Gäste WC, Terrasse mit Garten, Abstellkammer in der Wohnugn, Lamiantboden und vieles mehr.

!!! Verbrauchabhängige Kosten (Strom, Gas, Müllabfuhr) werden separat abgerechnet. Weitere Details gern auf Anfrage.

Grundrisse

Grundrisse
1 / 1

Realisiere Dein Projekt

Bausubstanz und Energie

Energieausweis

D
  • Baujahr1997
  • Zustand der ImmobilieNeubau, Gepflegt
  • HeizungsartZentralheizung
  • EnergieträgerGas
Immowelt logo

Mietkosten

Warmmiete
1.760 €
Kaltmiete
15,16 €/m²
1.600 €
Nebenkosten
160 €
Zusätzliche Kosten
Heizkosten
Miete pro Stellplatz
46 €
Kaution
3 Kaltmieten
Weitere Preisinformationen
2 Stellplätze, Miete je: 46,00 EUR

Lage

address-icon
Am Krähenfeld 32Markkleeberg (04416)
Markkleeberg - gelegen zwischen dem Cospudener und dem Markkleeberger See. Hier kann man Baden, Surfen oder mit dem Boot unterwegs sein. Dadurch hat diese Lage einen sehr hohen Freizeitwert. Radfahren kann auf gut ausgebauten Radwegen bis nach Leipzig und noch weiter sicher ausgeübt werden. Die S-Bahn ist in 3 Min. zu erreichen. Mit ihr ist man in 15 Min. am Leipziger Hbf. Im Ort befinden sich Geschäfte des täglichen Bedarfs, die man auch zu Fuß erreichen kann.

Weitere Informationen

Sonstiges Immaxi Immobilien - Die Immobilienmakler in Leipzig !

Haben wir Ihr Interesse geweckt? Vereinbaren Sie einen Besichtigungstermin!
TELEFON 0341 2122212

Unter dieser Nummer erreichen Sie unser kompetentes Maklerteam. Wir versuchen einen Termin nach Ihren Wünschen zu realisieren.

Unser komplettes Angebot an Wohnungen und Häusern zur Miete oder zum Kauf erhalten Sie auf www.immaxi.de, mit teilweise noch unveröffentlichten Angeboten bzw. Immobilien die sich im Vorlauf befinden.

Alle Angaben nach bestem Wissen. Irrtum und Zwischenvermitltung vorbehalten. Dieses Exposé ist eine Vorinformation, als Rechtsgrundlage gilt allein der abgeschlossene Kaufvertrag/Mietvertrag. Stichworte Stellplatz vorhanden, Anzahl Terrassen: 1, 2 Etagen

Weitere Services

Lust auf eine Besichtigung?
Eine Frage zur Immobilie?
Mit einer persönlichen Nachricht hast du bessere Chancen auf eine Antwort.
Mit der Nutzung der oben angegebenen Telefonnummer oder durch Klicken auf „Kontaktieren“ akzeptierst Du die Allgemeinen Nutzungsbedingungen, denen Du jederzeit widersprechen kannst. Weitere Informationen zum Datenschutz

Über den Anbieter

Waldstraße 67, 04105 Leipzig
partner badge
3 Jahre Partnerschaft
Herr Thomas HoffmannDein Kontakt
Online-ID: 26AYXV29ECTM
Referenznummer: 9744
Immaxi Immobilien
Immaxi Immobilien
Bewertung: 4,9 von 5 Sternen
Mit einer persönlichen Nachricht hast du bessere Chancen auf eine Antwort.
Mit der Nutzung der oben angegebenen Telefonnummer oder durch Klicken auf „Kontaktieren“ akzeptierst Du die Allgemeinen Nutzungsbedingungen, denen Du jederzeit widersprechen kannst. Weitere Informationen zum Datenschutz
Wie zufrieden bist du mit dieser Seite (nicht mit der Immobilie selbst)?