Version: 8.25.1Navigation überspringen
599.000 €
8 Zimmer  •  213 m²  •  898 m² Grundstück
Immowelt logo

Haus zum Kauf • provisionsfrei
599000 €
2.812 €/m²
8 Zimmer  •  213 m²  •  898 m² Grundstück

Neubau in Moosthenning: Einfamilienhaus „Oslo“ inklusive Grundstück

Ein Traumhaus für alle die mehr Platz benötigen. Drei Genrationen unter einem Dach, Oma, Opa, Kinder, Enkelkinder. Es ist genügend Platz für alle, ob für Gemeinsamkeiten oder auch den persönlichen Rückzug. Die Erdgeschosswohnung bietet auf gut 100 m² Wohnfläche ausreichend Platz für eine vierköpfige Familie und kombiniert zugleich die Vorteile einer Eigentumswohnung mit dem Komfort eines freistehenden Einfamilienhauses. Die Dachgeschosswohnung bietet mit gut 90 m² ausreichend Platz zum Wohnen, Entspannen, zum Arbeiten oder auch Platz für das Hobby. Optional besteht die Möglichkeit diese mit einem Balkon auszustatten. Die Grundrisse sind noch variabel und können an Ihre Wünsche und Bedürfnisse angepasst werden. Ob als großes Einfamilienhaus, Zweifamilienhaus oder Zwei Eigentumswohnungen, offenes modernes oder traditionelles Wohnen.

Merkmale

  • 898 m² Grundstück
  • Außen-Stellplatz

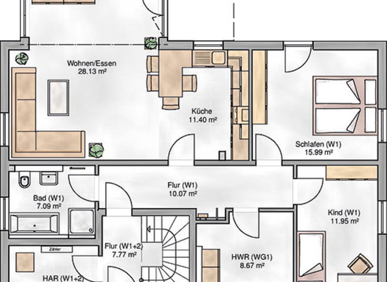
Grundrisse

Grundrisse
1 / 2

Realisiere Dein Projekt

Bausubstanz und Energie

Möchtest du Details zum Energieverbrauch?info_energy_calculation-icon
  • Zustand der ImmobilieMassivhaus
  • HeizungsartFußbodenheizung
Immowelt logo

Preisdetails

Kaufpreis
599000 €
2.812,21 €/m²
Provision für Käufer
provisionsfrei
Geschätzte Gesamtkosten
631.945 €1
Kaufpreis
599.000 €
Notarkosten (1,5%)
8.985 €
Grunderwerbsteuer (3,5%)
20.965 €
Grundbucheintrag (0,5%)
2.995 €
1Der angezeigte Wert ist eine automatisch berechnete Schätzung von immowelt.
2Bei den Angaben handelt es sich um ortsübliche Werte. Individuelle Kosten können abweichen.

Lage

address-icon
LengthalMoosthenning (84164)
Der Anbieter hat die genaue Adresse nicht freigegeben

Weitere Services

Lust auf eine Besichtigung?
Eine Frage zur Immobilie?
Nachricht hinzufügen
Mit der Nutzung der oben angegebenen Telefonnummer oder durch Klicken auf „Kontaktieren“ akzeptierst Du die Allgemeinen Nutzungsbedingungen, denen Du jederzeit widersprechen kannst. Weitere Informationen zum Datenschutz

Über den Anbieter

Mariakirchener Straße 16, 94424 Arnstorf
partner badge
Partnerschaft
Herr Mark Pieslinger
Herr Mark PieslingerDein Kontakt
Online-ID: 25JHCGVVAREH
P & P Massivhaus GmbH
title
P & P Massivhaus GmbH
Nachricht hinzufügen
Mit der Nutzung der oben angegebenen Telefonnummer oder durch Klicken auf „Kontaktieren“ akzeptierst Du die Allgemeinen Nutzungsbedingungen, denen Du jederzeit widersprechen kannst. Weitere Informationen zum Datenschutz
Wie zufrieden bist du mit dieser Seite (nicht mit der Immobilie selbst)?