DG-Wohnung in Backnang - Attraktive Kapitalanlage - Rendite ca. 6,3 % - Umfassend saniert -
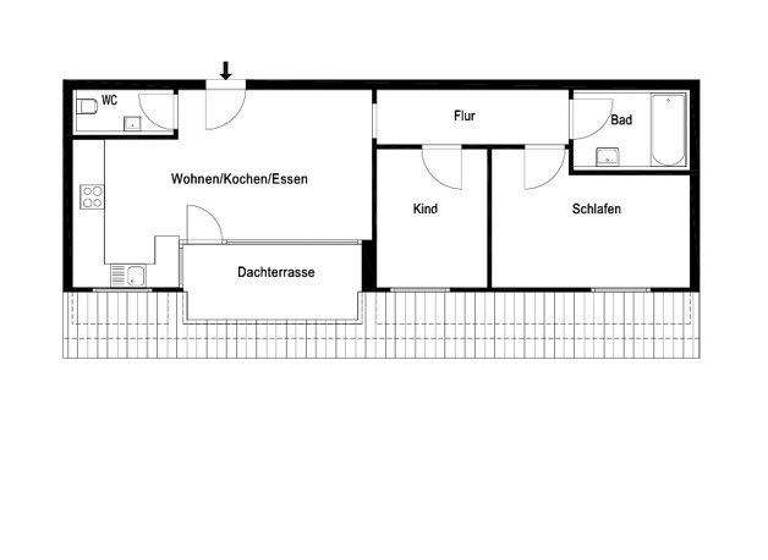
Diese umfassend sanierte Dachgeschosswohnung präsentiert sich mit einer Wohnfläche von 76,44 m² als ein äußerst attraktives Wohn- und Anlageobjekt. Die Einheit verfügt über drei lichtdurchflutete Zimmer, ein separates Badezimmer sowie ein Gäste-WC. Der offen gestaltete Wohn , Ess und Kochbereich schafft ein großzügiges Raumgefühl und lädt zum Wohlfühlen ein. Von hier aus gelangen Sie direkt auf die gemütliche Dachterrasse, die zusätzlichen Wohnkomfort im Freien bietet. Im Rahmen der Modernisierung wurden sämtliche Türen und Zargen erneuert, hochwertige Bodenbeläge verlegt sowie alle Fenster ausgetauscht, um eine verbesserte Energieeffizienz sicherzustellen. Die komplette Elektroinstallation wurde ebenfalls auf den aktuellen technischen Stand gebracht und erfüllt höchste Sicherheitsanforderungen. Die Wohnung überzeugt durch ein modernes, harmonisches Design und ein angenehmes Wohnambiente. Dank ihres hervorragenden Zustands und der attraktiven Lage eignet sich die Immobilie ideal sowohl zur Eigennutzung als auch als renditestarke Kapitalanlage.
Merkmale
Dachgeschoss, 2. Geschoss
Gäste-WC
Balkon
Das Dachgeschoss wurde renoviert und modernisiert. Alle Türen und Zargen wurden erneuert. In allen Räumen wurden neue Fußböden verlegt, um eine angenehme Atmosphäre zu schaffen. Auch die Fenster wurden ausgetauscht, um eine bessere Isolierung zu gewährleisten. Die gesamte elektrische Anlage wurde komplett erneuert, um Sicherheit und eine zuverlässige Stromversorgung zu gewährleisten.
Grundrisse
Grundrisse
1 / 1
Realisiere Dein Projekt
Bausubstanz und Energie
Energieausweis
E
Baujahr1925
Zustand der Immobilierenoviert / saniert
Preisdetails
Kaufpreis
179000 €179.000 €
2.341,71 €/m²
Provision für Käufer
3,57 % inkl. MwSt.
Geschätzte Gesamtkosten
197.920 €1
Kaufpreis
179.000 €
Kaufnebenkosten
18.920 €
2
Notarkosten (1,5%)
2.685 €
Grunderwerbsteuer (5%)
8.950 €
Provision für Käufer (3,57%)
6.390 €
Grundbucheintrag (0,5%)
895 €
1Der angezeigte Wert ist eine automatisch berechnete Schätzung von immowelt.
2Bei den Angaben handelt es sich um ortsübliche Werte. Individuelle Kosten können abweichen.
Lage
Backnang (71522)
Der Anbieter hat die genaue Adresse nicht freigegeben
Die Wohnung befindet sich in einer zentralen und dennoch ruhigen Wohnlage von Backnang, einer lebendigen Stadt im Rems-Murr-Kreis, rund 30 Kilometer nordöstlich von Stuttgart. Die Innenstadt ist in wenigen Minuten erreichbar und bietet ein breites Angebot an Einkaufsmöglichkeiten, Gastronomie, Kultur- und Freizeiteinrichtungen. Besonders hervorzuheben ist die charmante Altstadt mit ihren historischen Fachwerkhäusern und verwinkelten Gassen. Geschäfte des täglichen Bedarfs wie Aldi, Edeka und Lidl befinden sich in unmittelbarer Nähe und gewährleisten eine optimale Nahversorgung. Die Umgebung ist geprägt von gepflegten Wohnhäusern und Grünflächen, die ein angenehmes Wohnumfeld schaffen. Direkt gegenüber befindet sich ein neu errichtetes Altenpflegeheim, das eine wohnortnahe Betreuung für Seniorinnen und Senioren ermöglicht.
Weitere Informationen
Sonstiges
Renovierung und Modernisierung der Wohnung:
2016: wurde die Heizungsanlage ausgetauscht
2024: Elektrik und Installationen in der gesamten Wohnung wurden erneuert. Wasserleitungen wurden ausgetauscht. Neue Fenster wurden eingebaut. Türen, Türrahmen und Bodenbeläge in der gesamten Wohnung wurden ausgetauscht. Die Wände im Innenbereich wurden neu gestrichen.
Stichworte
Nutzfläche: 6,00 m², Anzahl der Schlafzimmer: 2, Anzahl der Badezimmer: 1, Anzahl der separaten WCs: 1, Anzahl Balkone: 1, 2 Etagen