Version: 8.25.1Navigation überspringen
12 €
258 m² Bürofläche
Immowelt logo

Bürofläche zur Miete • provisionsfrei
12 €
/m²
258 m² Bürofläche

AIGNER - Perlach - Großzügige Büroflächen mit guter Anbindung

Die angebotene Einheit befindet sich im zweiten Obergeschoss eines im Jahr 2002 errichteten Gebäudes und ist sowohl über das Treppenhaus als auch über einen Personenaufzug bequem erreichbar.

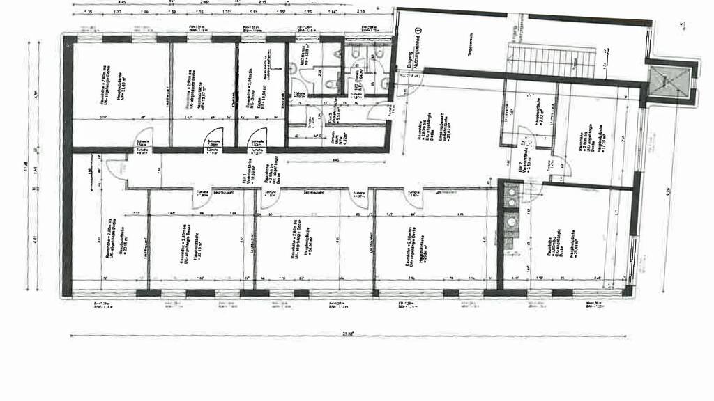
Aktuell ist die Bürofläche in acht separate Einzelbüros unterteilt. Großzügige Fensterfronten sorgen für eine optimale Tageslichtversorgung und ein angenehmes Raumgefühl. Eine elektrische Außenbeschattung an allen Fenstern bietet zusätzlichen Komfort.

Zur Ausstattung gehören getrennte WC-Anlagen für Damen und Herren, eine Teeküche sowie ein Serverraum. Die Flächen sind mit einer strukturierten CAT-6-Verkabelung ausgestattet, die über Kabelkanäle in die einzelnen Büroräume geführt wird. Zudem verfügt das Gebäude über einen Glasfaseranschluss von M-net mit einer Übertragungsrate von 25 Mbit/s.

Die Mindestvertragslaufzeit beträgt fünf Jahre. Ein kurzfristiger Bezug ist nach Absprache möglich.

Merkmale

  • 2. Geschoss

Grundrisse

Verschaffe dir einen genauen Überblick über die Raumaufteilung.selection_property_house-icon

Realisiere Dein Projekt

Bausubstanz und Energie

Möchtest du Details zum Energieverbrauch?info_energy_calculation-icon
  • Baujahr2002
  • EnergieträgerGas
Immowelt logo

Mietkosten

Warmmiete
3.689,40 €
Nettomiete
12 €/m²
3.096 €
Nebenkosten
593,40 €
Provision für Mieter
provisionsfrei; Die Vermietung erfolgt provisionsfrei für den Mieter. Unsere Angebote erfolgen freibleibend und unverbindlich. Irrtum und Zwischenvermietung bleiben vorbehalten.
Kaution
keine Angabe
Weitere Preisinformationen
Nettokaltmiete: 3.096,00 EUR

Lage

address-icon
Ramersdorf-PerlachMünchen (81737)
Der Anbieter hat die genaue Adresse nicht freigegeben
Der 16. Stadtbezirk Ramersdorf-Perlach befindet sich im Südosten vom Stadtzentrum und erstreckt sich von der Stadtgrenze bis zum Innenstadtbereich in Höhe des Ostbahnhofs. Der Stadtbezirk hat mit ca. 108.000 Einwohnern bereits Großstadtdimensionen erreicht und ist dadurch der bevölkerungsstärkste Stadtbezirk Münchens.

Das direkte Objektumfeld besteht aus einer Mischung aus Wohnbebauung, Handwerksbetrieben und höherwertigem Gewerbe. Gleich zwei Supermärkte, einer davon befindet sich direkt im Objekt, bieten Möglichkeiten zur Nahversorgung. Für die Bedürfnisse, die darüber hinausgehen bietet sich das Einkaufszentrum Perlach Passagen PEP in 6 Fahrminuten Entfernung an. Die Bushaltestelle Oscar-Maria-Graf-Ring am Karl-Marx Ring liegt 3 Gehminuten bzw. 280m entfernt. Über den Bus ist die U-Bahn Haltestelle Neuperlach Zentrum innerhalb von 5 Fahrminuten erreichbar, die wiederum bietet Anschluss zum Hauptbahnhof innerhalb von 15 Fahrminuten. Der Anschluss via PKW ist sowohl in die Innenstadt als auch auf den Autobahnring schnell gegeben.

Weitere Informationen

Sonstiges Energiekennwert Wärme: 138,9 kWh/(m²*a)
Energie mit Warmwasser: Nein
Befeuerung/Energieträger: Erdgas leicht
Energieausweistyp: Bedarfsausweis
Energiekennwert Strom: 119,8 kWh/(m²*a)
Baujahr: 2002

Kostenlose Online-Bewertung - https://aigner-immobilien.de/wertermittlung-online-muenchen/

Zu unseren Marktberichten - https://aigner-immobilien.de/marktinformationen/

- https://aigner-immobilien.de/objekt/ID-37708/MehrBilderundInfoshier

Mehr Bilder und Infos hier - https://aigner-immobilien.de/objekt/ID-37708/ Stichworte vermietbare Fläche: 258,00 m², 3 Etagen

Weitere Services

Lust auf eine Besichtigung?
Eine Frage zur Immobilie?
Mit einer persönlichen Nachricht hast du bessere Chancen auf eine Antwort.
Mit der Nutzung der oben angegebenen Telefonnummer oder durch Klicken auf „Kontaktieren“ akzeptierst Du die Allgemeinen Nutzungsbedingungen, denen Du jederzeit widersprechen kannst. Weitere Informationen zum Datenschutz

Über den Anbieter

Ruffinistraße 26, 80637 München
Herr Philipp SchmitzDein Kontakt
Online-ID: 23XWSSKL1D8N
Referenznummer: 37708
Aigner Immobilien GmbH
Aigner Immobilien GmbH
Mit einer persönlichen Nachricht hast du bessere Chancen auf eine Antwort.
Mit der Nutzung der oben angegebenen Telefonnummer oder durch Klicken auf „Kontaktieren“ akzeptierst Du die Allgemeinen Nutzungsbedingungen, denen Du jederzeit widersprechen kannst. Weitere Informationen zum Datenschutz
Wie zufrieden bist du mit dieser Seite (nicht mit der Immobilie selbst)?