ATTRAKTIVE GESCHÄFTSFLÄCHEN - MIT FLEXIBLEN GESTALTUNGSMÖGLICHKEITEN !
Objektbeschreibung Die Geschäftsflächen werden belagsfertig angeboten und können in Absprache mit dem Eigentümer an die Bedürfnisse der zukünftigen Mieter angepasst werden. Die Geschäftsflächen können nach Vereinbarung erweitert werden eine Zusammenlegung mit benachbarten Geschäftseinheiten ist möglich. Die einzelnen Geschäftseinheiten befinden sich in ausgezeichneter und gut sichtbarer Verkehrslage im 21. Bezirk. In der hauseigenen Tiefgarage können Stellplätze je nach Verfügbarkeit angemietet werden.
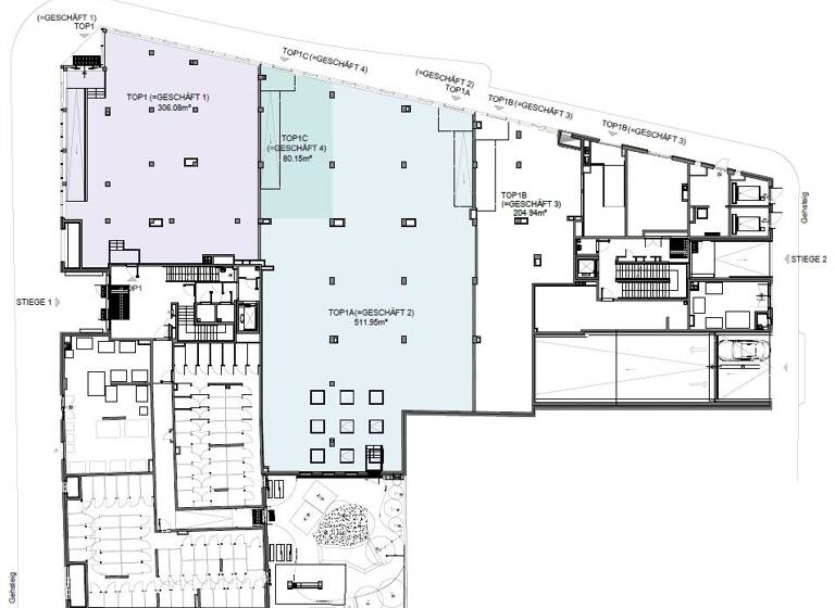
Diese Räumlichkeiten können sowohl einzeln als auch unabhängig voneinander angemietet werden, um Ihren individuellen Bedürfnissen gerecht zu werden.
- Geschäftslokal 1: 306,08 m² - Geschäftslokal 2: 592,10 m² - Gesamt: 898,18 m²
Anbindung Die Straßenbahnlinien 30 und 31 liegen direkt vor dem Haus. In der Frauenstiftgasse finden Sie die Buslinie 31A, mit der Sie rasch zur Siemensstraße und zum Kagraner Platz gelangen. Von Floridsdorf aus kommen Sie sehr zügig nach Wien Mitte, zum Hauptbahnhof und zum Praterstern (U1, U2). Mit der U1 sind Sie dann über 2 Stationen in der Wiener Innenstadt. Die Schnellbahnstation "Wien Brünner Straße" erreichen Sie in ca. 15 Gehminuten, beziehungsweise über eine Station mit der Straßenbahn.
- Straßenbahn 30, 31 - Buslinie 31A in der Frauenstiftgasse - Schnellbahnstation " Wien Brünner Straße"
Kosten Nettomiete/m²/Monat: EUR 12,50 Betriebskosten/m²/Monat: EUR 1,80 Kaution: 3 Monatsmieten Mietvertragsvergebührung (abhängig von der Befristungsdauer)
Details Verfügbarkeit ab: sofort Zustand: EdelrohbauMietpreis netto p.M/pro m²: 12,50 € Betriebskosten: 1,8 € pro m² Befristung: max. 10 Jahre, eine Verlängerungsoption ist möglich Provision: 3 BMM zzgl. 20% USt.
Merkmale
Bezug: nach Vereinbarung
Grundrisse
Grundrisse
1 / 2
Realisiere Dein Projekt
Bausubstanz und Energie
Heizwärmebedarf (HWB)
A
Gesamtenergieeffizienz (fGEE)
B
Mietkosten
Gesamtmiete
13.988,32 €
Nettokaltmiete
11,38 €/m²
10.225,38 €
Betriebskosten
1.717,86 €
Umsatzsteuer
2.331,39 €
Provision für Mieter
3BMM
Kaution
41.964,96 3 MM
Weitere Preisinformationen
Nettokaltmiete: 10.225,38 EUR
Lage
Wien (1210)
Der Anbieter hat die genaue Adresse nicht freigegeben