
HK Immobilienmanagement für Handel und Gewerbe
Herr Hans Kössinger
056 ···
Nr. anzeigenPreise & Kosten
Kaution
2 Nettomonatsmieten
Provision für Mieter
provisionsfrei
Warum sehe ich diese Anzeige? – Du siehst diese Anzeige basierend auf Ihrer Navigation auf unserer Website und den Suchkriterien, die du verwendet hast.
Lage
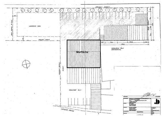
Die Lage im Kaufunger Gewerbegebiet Papierfabrik - Leipziger Str.; ist sowohl regional als auch überregional erstklassig einzustufen. Deshalb sind am Standort Papierfabrik
eine vielzalht von Unternehmen aller Branchen (Intern. Speditionen, Produktionen,
Großhandel, etc.) angesiedelt.
Die BAB- A7 - Anschlussstelle...
Die Industriefläche
Kategorie
Freiflächen
Bezug
4. Quartal 2025
Geschosse
1 Geschoss
Energie & Heizung
Warum sehe ich diese Anzeige? – Du siehst diese Anzeige basierend auf Ihrer Navigation auf unserer Website und den Suchkriterien, die du verwendet hast.
Weitere Energiedaten
Energieträger
Elektro, Gas
Heizungsart
Zentralheizung
Details
Objektbeschreibung
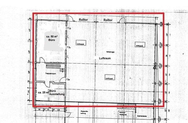
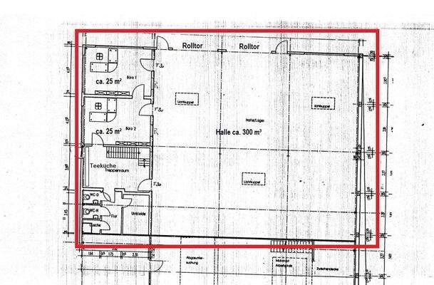
Das lange Zeit als Werkstatt (Reifenhandel, Spezialaufaufbau von Handwerker-fahrzeugen) genutzte Objekt besteht aus einer ca. 288 m² großen, ca. 5 m hohen Halle, die durch zwei große Rolltore bestens angebunden ist. Im EG gibt es zudem
ca. 100 m ² Büro, Sozialraum, WC-Anlage und Teeküche. Eine Treppe führt in das ca. 100...
Weitere Informationen
Allgemeines
Der derzeitige Mieter bezieht in Kürze ein eigenes Objekt und sucht deshalb einen Nachmieter.
Das Objekt steht kurzfristig ab 01.11.2025 oder nach Absprache auch später zur Verfügung,
Ein Energieausweis ist in Bearbeitung.
Besichtigungstermine
nach Absprache
Stichworte
Zustand...
Anbieter der Immobilie
Online-ID: 2jxd746
Referenznummer: GOV 01092025
Finde Angebote wie dieses
Hier geht es zu unserem Impressum, den Allgemeinen Geschäftsbedingungen, den Hinweisen zum Datenschutz und nutzungsbasierter Online-Werbung.