Version: 8.26.0Navigation überspringen
ohne-makler.net - Immobilien selbst vermarkten
750 €
75 m² Bürofläche

Bürofläche zur Miete • provisionsfrei
750 €
75 m² Bürofläche

Helle Gewerbefläche / Büro / Studio (ca. 75 m²) im Zentrum von Groß-Umstadt - Parkplätze vorhanden

Zur Vermietung steht eine helle und vielseitig nutzbare Gewerbefläche im Dachgeschoss eines gepflegten Gebäudes in zentraler Lage von Groß-Umstadt.

Die Einheit bietet ca. 75 m² offene Fläche und eignet sich ideal für verschiedene gewerbliche Nutzungen wie beispielsweise Büro, Coaching- oder Beratungsräume, Praxis, Studio oder Unterrichtsräume.

Durch mehrere Dachfenster sowie ein großes bodentiefes Fenster entsteht eine sehr helle und angenehme Arbeitsatmosphäre. Die offene Raumstruktur ermöglicht eine flexible Nutzung der Fläche.

Die vorhandene Bauweise sowie Fenster bieten zudem gute Voraussetzungen für auch intensivere Nutzungen, wie z. B. Unterricht oder musikalische Nutzung.

Ein besonderer Vorteil ist der vorhandene Stauraum in den Dachschrägen, der sich ideal zur Nutzung als Lagerfläche, Archiv oder Abstellbereich eignet.

Ausstattung

ca. 75 m² Gewerbefläche
großer offener Raum
4 Dachfenster
großes bodentiefes Fenster
sehr helle Räume
praktischer Stauraum in den Dachschrägen
2 getrennte WC
eigene Parkplätze am Gebäude
vielseitige Nutzungsmöglichkeiten

Die Fläche befindet sich im Dachgeschoss (2. Obergeschoss) des Gebäudes.

Mietkonditionen

Kaltmiete: 750 € monatlich
Nebenkosten: ca. 180 €

Die Fläche ist ab 01.06.2026 verfügbar.

Sonstiges

Die Gewerbefläche eignet sich ideal für verschiedene Nutzungen wie z. B.:

Büro
Coaching / Beratung
Praxis / Therapie
Unterricht / Schulungen
Musik- oder Kreativnutzung
Atelier / Studio

Besichtigungen sind nach Absprache möglich.

Merkmale

  • frei ab 01.06.2026
  • 2. Geschoss
  • Bodenbelag: Teppich
Gäste-WC, Teppichboden

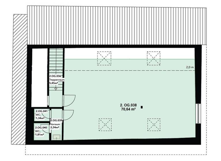
Grundrisse

Grundrisse
1 / 1

Bausubstanz und Energie

Energieausweis

Endenergieverbrauch (Wärme)

Endenergieverbrauch (Strom)

  • Baujahr2002
  • Zustand der ImmobilieGepflegt
  • HeizungsartZentralheizung
  • EnergieträgerGas
MediumRectangleTop

Mietkosten

Warmmiete
930 €
Nettomiete
750 €
Nebenkosten
100 €
Zusätzliche Kosten
Heizkosten
80 €
Provision für Mieter
provisionsfrei; keine Provision, courtagefrei
Kaution
2250 €
Weitere Preisinformationen
Nettokaltmiete: 750,00 EUR

Lage

address-icon
Höchster Straße 18Groß-Umstadt64823 Gross umstadt (64823)
Die Immobilie befindet sich in zentraler Lage von Groß-Umstadt mit guter Infrastruktur. Einkaufsmöglichkeiten, Gastronomie sowie weitere Dienstleistungen befinden sich in unmittelbarer Umgebung.

Die Lage ist sowohl für Kunden als auch für Mitarbeiter gut erreichbar.
Parkplätze direkt vor Ort sind vorhanden.
Infrastruktur (im Umkreis von 5 km):
Apotheke, Lebensmittel-Discount, Allgemeinmediziner, Kindergarten, Grundschule, Hauptschule, Realschule, Gymnasium, Gesamtschule, Öffentliche Verkehrsmittel

Weitere Informationen

Sonstiges Heizungsart: Zentralheizung
Energieträger: Gas


Makleranfragen nicht erwünscht. Nach § 7 UWG sind unaufgeforderte Kontaktaufnahmen durch Makler ohne ausdrückliche Einwilligung des Empfängers verboten!

ohne-makler (OM) ist weder Anbieter noch Vermittler der Immobilie. OM betreibt eine Plattform für Immobilieneigentümer, die unter anderem die gleichzeitige Veröffentlichung einzelner Inserate auf mehreren Immobilienportalen ermöglicht. Die Inhalte dieser Inserate werden ausschließlich von Dritten verantwortet. Für die Richtigkeit, Vollständigkeit oder Rechtmäßigkeit der Angaben übernimmt OM keine Haftung. Hinweise auf mögliche Rechtsverstöße können jederzeit gemeldet werden und werden nach Prüfung umgehend bearbeitet. Stichworte Gesamtfläche: 75,00 m², Anzahl der separaten WCs: 1, Bundesland: Hessen, 2 Etagen

Weitere Services

Lust auf eine Besichtigung?
Eine Frage zur Immobilie?
Mit einer persönlichen Nachricht hast du bessere Chancen auf eine Antwort.
Mit der Nutzung der oben angegebenen Telefonnummer oder durch Klicken auf „Kontaktieren“ akzeptierst Du die Allgemeinen Nutzungsbedingungen, denen Du jederzeit widersprechen kannst. Weitere Informationen zum Datenschutz

Über den Anbieter

Humboldtstr. 25 A, 21509 Glinde
partner badge
Partnerschaft
Privat von Maik PerezDein Kontakt
Keine Telefonnummer hinterlegt
Keine Telefonnummer hinterlegt
Online-ID: 2649F9QRGGB8
Referenznummer: 442269
MediumRectangleTop
Wie zufrieden bist du mit dieser Seite (nicht mit der Immobilie selbst)?