Version: 8.24.0Navigation ĂĽberspringen
VON POLL IMMOBILIEN Aschaffenburg - Alexander Rauh e. K.
12,50 €
200,6 m² Bürofläche

Praxis zur Miete - Erstbezug • provisionsfrei
12,50 €
/m²
200,6 m² Bürofläche

Projektierte Praxis- oder Bürofläche

Auf diesem städtebaulichen Filetstück entsteht ein zukunftsweisendes Gebäude mit dieser vielseitig nutzbaren Praxis- oder Bürofläche (2OG.MB5). Der fertig projektierte Neubau verbindet modernes Design mit nachhaltiger Bauweise.

Auf Grund der Skelettbauweise sind nur wenige tragende Säulen vorhanden, was wiederum eine maximale Flexibilität bezüglich des zukünftigen Innenausbaus erlaubt.

Aufgrund der starken wirtschaftlichen Entwicklung von Aschaffenburg und der guten Anbindung an die Region Rhein-Main ist der Standort optimal fĂĽr Unternehmen welche gesteigerten Wert auf ein attraktives Umfeld fĂĽr seine Kunden und Mitarbeiter bietet.

Kurz gesagt: Die Kombination aus Lage, Infrastruktur und wirtschaftlicher Dynamik macht den Standort fĂĽr Investoren zu einer lukrativen und zukunftssicheren Wahl.

Sie haben Interesse diese vielversprechende Investition mit viel Potenzial und Charme besser kennen zu lernen? Das von Poll Team Aschaffenburg freut sich auf Ihre Kontaktaufnahme!

Merkmale

  • 2. Geschoss
  • Personenaufzug
  • 2 Stellplätze: 2 Tiefgaragenstellplätze
+ Baufertigstellung geplant Ende 2027
+ Kennzeichnung innerhalb der Einheit (2OG.MB5)
+ der Mietzins versteht sich bezogen auf einen "veredelten Rohbau", alle Ausbauleistungen macht der Mieter selbst
+ geplante Bauweise & Materialien: massive Kalksandstein-Außenwände mit Wärmedämm-Verbundsystem, Stahlbetondecken mit abgehängten Decken, nicht tragende Innenwände in Trockenbauweise
+ Nachhaltigkeit & Energieeffizienz: Beheizung durch eine Wärmepumpe mit Außengerät in der Außenanlage, moderne Lüftungstechnik, PV-Module auf dem Dach sowie ein begrüntes Flachdach für ökologischen Mehrwert
+ Verkehrsanbindung: direkte Erschließung des Untergeschosses über die eine angrenzende Straße, zusätzliche Parkflächen auf dem angrenzenden Grundstück

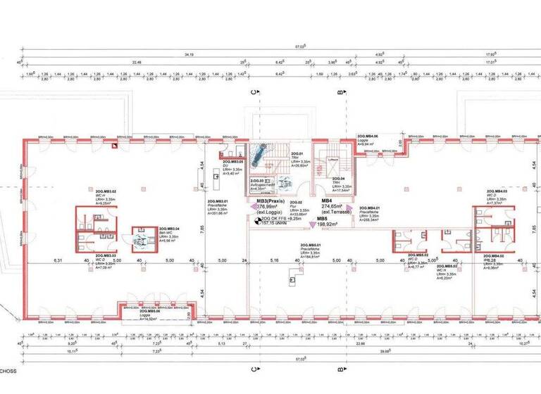
Grundrisse

Grundrisse
1 / 2

Realisiere Dein Projekt

Bausubstanz und Energie

Der Anbieter hat keine Informationen zum Energieverbrauch bereit gestellt.
  • Baujahr2027
  • Zustand der ImmobilieFertighaus, Erstbezug

Mietkosten

Monatliche Miete
12,50 €/m²
Zusätzliche Kosten
Heizkosten
Miete pro Stellplatz
80 €
Provision fĂĽr Mieter
provisionsfrei
Kaution
keine Angabe
Weitere Preisinformationen
2 Tiefgaragenstellplätze, Miete je: 80,00 EUR

Lage

address-icon
Schweinheim, Aschaffenburg / Schweinheim (63743)
Der Anbieter hat die genaue Adresse nicht freigegeben
Das Objekt befindet sich in einer der TOP Lagen von Aschaffenburg. Der Stadtteil Schweinheim ist durch eine hervorragende Anbindung nur gut 10 Minuten vom Zentrum entfernt, das angrenzende Landschaftsschutzgebiet liegt zu gleich nur wenige FuĂźminuten direkt vor Ihrer HaustĂĽre.
Aschaffenburg zeichnet sich durch die sehr gute Infrastruktur mit umfassenden Einkaufsmöglichkeiten, Kindergärten und Schulen, der Hochschule, Fußgängerzone, Geschäften, Restaurants, Theater u.v.m.
Ein weiterer Pluspunkt ist die gute Anbindung an den Ă–PNV und zur Autobahn A3 Frankfurt/WĂĽrzburg (in ca. 30 Minuten zum Flughafen) oder der A45 Hanau/GieĂźen. Einen hervorragenden Einblick von Aschaffenburg erhaltenSie auch ĂĽber diesen kleinen Film auf YouTube https://www.youtube.com/watch?v=u3Me3JaQL-w

Weitere Informationen

Sonstiges GELDWÄSCHE: Als Immobilienmaklerunternehmen ist die von Poll Immobilien GmbH nach § 2 Abs. 1 Nr. 14 und § 11 Abs. 1, 2 Geldwäschegesetz (GwG) dazu verpflichtet, bei der Begründung einer Geschäftsbeziehung die Identität des Vertragspartners festzustellen und zu überprüfen, bzw. sobald ein ernsthaftes Interesse an der Durchführung des Immobilienkaufvertrages besteht. Hierzu ist es erforderlich, dass wir nach § 11 Abs. 4 GwG die relevanten Daten Ihres Personalausweises festhalten (wenn Sie als natürliche Person handeln) - beispielsweise mittels einer Kopie. Bei einer juristischen Person benötigen wir eine Kopie des Handelsregisterauszugs, aus welchem der wirtschaftlich Berechtigte hervorgeht. Das Geldwäschegesetz sieht vor, dass der Makler die Kopien bzw. Unterlagen fünf Jahre aufbewahren muss. Als unser Vertragspartner haben Sie auch eine Mitwirkungspflicht nach § 11 Abs. 6 GwG.

HAFTUNG: Wir weisen darauf hin, dass die von uns weitergegebenen Objektinformationen, Unterlagen, Pläne etc. vom Verkäufer bzw. Vermieter stammen. Eine Haftung für die Richtigkeit oder Vollständigkeit der Angaben übernehmen wir daher nicht. Es obliegt daher unseren Kunden, die darin enthaltenen Objektinformationen und Angaben auf ihre Richtigkeit hin zu überprüfen. Alle Immobilienangebote sind freibleibend und vorbehaltlich Irrtümer, Zwischenverkauf- und Vermietung oder sonstiger Zwischenverwertung. Stichworte vermietbare Fläche: 200,55 m², Bundesland: Bayern, 4 Etagen Sonstiges/Wohnen: seniorengerechtes Wohnen

Weitere Services

Lust auf eine Besichtigung?
Eine Frage zur Immobilie?
Nachricht hinzufĂĽgen
Mit der Nutzung der oben angegebenen Telefonnummer oder durch Klicken auf „Kontaktieren“ akzeptierst Du die Allgemeinen Nutzungsbedingungen, denen Du jederzeit widersprechen kannst. Weitere Informationen zum Datenschutz

Ăśber den Anbieter

Sandgasse 42, 63739 Aschaffenburg
partner badge
Partnerschaft
Herr Alexander RauhDein Kontakt
Online-ID: 2mns65y
Referenznummer: 26 007 009
VON POLL IMMOBILIEN Aschaffenburg - Alexander Rauh e. K.
VON POLL IMMOBILIEN Aschaffenburg - Alexander Rauh e. K.
Nachricht hinzufĂĽgen
Mit der Nutzung der oben angegebenen Telefonnummer oder durch Klicken auf „Kontaktieren“ akzeptierst Du die Allgemeinen Nutzungsbedingungen, denen Du jederzeit widersprechen kannst. Weitere Informationen zum Datenschutz
Wie zufrieden bist du mit dieser Seite (nicht mit der Immobilie selbst)?