
Pegasus Real Estate Partners GmbH
Frau Stephanie Ullmann
+49 ···
Nr. anzeigenPreise & Kosten
Kaution
3 Bruttowarmmieten
Provision für Mieter
provisionsfrei
Warum sehe ich diese Anzeige? – Du siehst diese Anzeige basierend auf Ihrer Navigation auf unserer Website und den Suchkriterien, die du verwendet hast.
Lage
Der Bahnhof Stuttgart-Vaihingen, mit Anschluss an Regional- und U-Bahn, befindet sich nur 5 Gehminuten entfernt.
In wenigen Gehminuten erreicht man div. gastronomische Einrichtungen und Einkaufsmöglichkeiten.
Büro-/Praxisfläche
Kategorie
Bürofläche
Baujahr
1987
Bezug
01.08.2026
Geschoss
Erdgeschoss
Energie & Heizung
Warum sehe ich diese Anzeige? – Du siehst diese Anzeige basierend auf Ihrer Navigation auf unserer Website und den Suchkriterien, die du verwendet hast.
Wärme
Strom
Energieausweistyp
Verbrauchsausweis
Gebäudetyp
Nicht-Wohngebäude
Baujahr laut Energieausweis
1987
Wesentliche Energieträger
Erdgas
Gültigkeit
seit 30.07.2019
Endenergieverbrauch (Wärme)
116,00 kWh/(m²·a)
Endenergieverbrauch (Strom)
13,00 kWh/(m²·a)
Details
Objektbeschreibung
Der gepflegte Bürokomplex aus dem Jahr 1987 mit zeitloser Klinkerfassade besteht aus zwei Gebäudeteilen und hat die Form eines „S“.
Die großen Glaselemente wurden mit außenliegenden Raffstoren ausgestattet.
Die beiden einladenden, barrierefreien Eingangsbereiche des Gebäudes verfügen jeweils über zwei Aufzüge.
Die...
Ausstattung
Die Büroeinheit im Erdgeschoss verfügt über eine schallabsorbierende Abhangdecke mit integrierter Arbeitsplatzbeleuchtung.
Die Raumgeometrie ermöglicht eine flexible Aufteilung und Nutzung als Einzel- oder Multibüro.
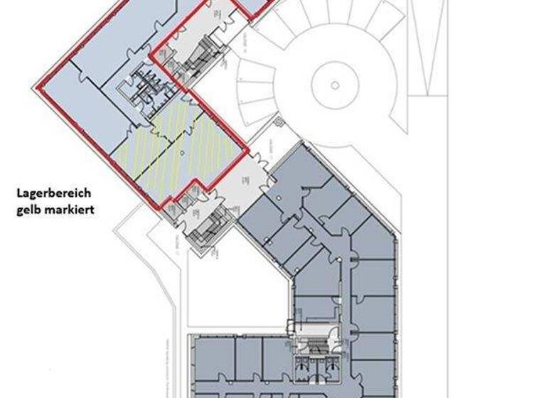
Die Einheit verfügt über einen großzügigen Lager-/Werkstattbereich mit ca. 150 m² inkl. ebenerdigen...
Weitere Informationen
Besichtigungstermine
Überzeugen Sie sich selbst bei einer Besichtigung vor Ort – wir vereinbaren gerne einen Termin nach Absprache.
Stichworte
Sonstiges: Getrennte Damen- und Herren-WCs, frei werdend
Anbieter der Immobilie
Pegasus Real Estate Partners GmbH
Nägelsbachstraße 33, 91052 Erlangen
Online-ID: 2ncgy57
Finde Angebote wie dieses
Hier geht es zu unserem Impressum, den Allgemeinen Geschäftsbedingungen, den Hinweisen zum Datenschutz und nutzungsbasierter Online-Werbung.