

Wohnung zum Kauf600001 €4.000 €/m²4 Zimmer • 150 m²
600001 €
4.000 €/m²
4 Zimmer • 150 m²
Wohnung 150m2 zum Kauf - Maksimir, Bukovac - Remete
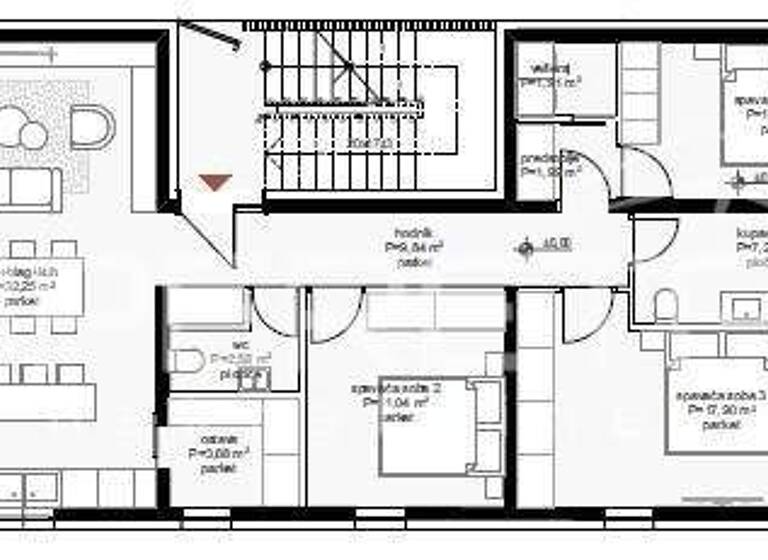
Grundrisse
Grundrisse
1 / 2
Realisiere Dein Projekt
Bausubstanz und Energie
Der Anbieter hat keine Informationen zum Energieverbrauch bereit gestellt.
- Baujahr2025
Preisdetails
Kaufpreis
600001 €
4.000,01 €/m²
Provision für Käufer
Bitte beachte, das Angebot kann bei Vertragsabschluss die Zahlung einer Provision beinhalten. Weitere Informationen erhältst Du vom Anbieter.
Lage

Bukovac - Remete
Der Anbieter hat die genaue Adresse nicht freigegeben
Weitere Informationen
Weitere Services
Lust auf eine Besichtigung?
Eine Frage zur Immobilie?
Ăśber den Anbieter
Online-ID: 2ndun5k
Referenznummer: 19346350_1

Crozilla.com
Wie zufrieden bist du mit dieser Seite (nicht mit der Immobilie selbst)?

