Version: 8.22.6Navigation ĂĽberspringen
700 €
4 Zimmer  â€˘  119 m² BĂĽrofläche
Immowelt logo

Bürofläche zur Miete
700 €
Nettomiete zzgl. NK
4 Zimmer  â€˘  119 m² BĂĽrofläche

Räumlichkeiten mit Potential zum imposanten Büro - Ca. 120m2 im 1. Stock

Zur Vermietung gelangt eine Bürofläche mit ca. 120 m² Nutzfläche im 1. Obergeschoss eines historischen Bürgerhauses (Baujahr vor 1900) im Zentrum von Hainburg.
Die Immobilie überzeugt durch ihre großzügigen Altbauräume mit über 3 Metern Raumhöhe und klassischem Parkettboden.
Ideal geeignet für Rechtsanwälte, Steuerberater, Buchhalter oder ähnliche Dienstleistungen. Die Räumlichkeiten sind renovierungsbedürftig, bietet damit aber viel Gestaltungsspielraum für eine individuelle Nutzung.

Besonderheiten:
*Historisches BĂĽrgerhaus mit Altbau-Charme.
*Großzügige Raumhöhen über 3 m.
*Geeignet fĂĽr Dienstleister (Anwaltskanzlei, Steuerberatung, Buchhaltung, etc.).
*RenovierungsbedĂĽrftig - viel Gestaltungspotenzial.
*Aktuell leerstehend.

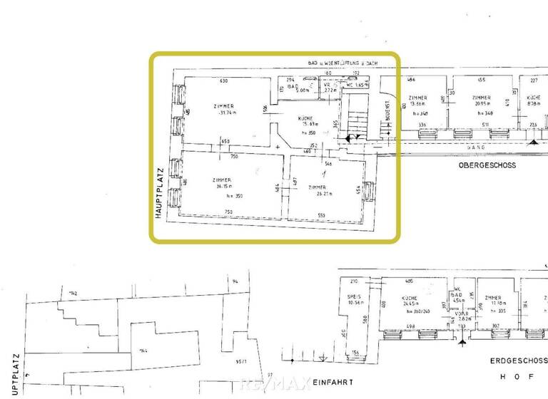
Raumaufteilung:
*Raum 1 (Vorzimmer) - Ca. 25 m2.
*Raum 2 (Fenster Richtung Hauptplatz) - Ca. 32m2.
*Raum 3 (Fenster Richtung Hauptplatz) - Ca. 36m2.
*Raum 4 (Fenster Richtung Innenhof) - Ca. 26m2.

Miete: VB € 700,-
Umfasst: Räumlichkeiten, unbewegliche Einrichtungsgegenstände, exkl. aller Betriebskosten (Kanalgebühren, Grundsteuer, Wasser, Abfallentsorgung, Strom, etc.).
Möbel/ Geräte können nach Bedarf dazugekauft/ gemietet werden!
Die Höhe der Miete und Kaution richtet sich nach der gewünschten Nutzung und Mietdauer.
Langfristige Mieter mit nachhaltigem Nutzungskonzept werden bevorzugt.
Kaution: 3 Bruttomonatsmieten.


Lagebeschreibung:
Die Lage kann man nur als hervorragend bezeichnen - mitten im Zentrum und doch ruhig gelegen! Direkt in der Hainburger Innenstadt am Hauptplatz. Durch die zentrale Lage ist eine gute Erreichbarkeit sowohl fĂĽr Kunden als auch fĂĽr Lieferanten gegeben. Nahversorgung, Gastronomie und Dienstleister befinden sich in unmittelbarer Umgebung.Vor allem die Verkehrsanbindung nach Wien/ Schwechat und die Slowakei (Bus und Schnellbahn) machen diese Stadt besonders interessant.
Nähere Informationen finden Sie unterwww.hainburg-donau.gv.at.
Die Bezirkshauptstadt Bruck an der Leitha ist ca. 10 km entfernt, Wien ist in 30 min per Auto oder auch per Zug erreichbar. Bratislava ist 20 km entfernt.

Rechtliche Hinweise!:
In Entsprechung des FAGG (Fern- und Auswärtsgeschäfte-Gesetz) und des VRUG (Verbraucherrechte-Richtlinie-Umsetzungsgesetz), ersuchen um Verständnis, dass wir von Ihnen VOR der Zusendung des Exposés die Bestätigung des sofortigen Tätigwerdens, sowie über die Aufklärung des Rücktrittsrechtes benötigen.
Darüber hinaus ist es uns leider nur mehr möglich Termine erst nach Erhalt einer schriftlichen Anfrage mit vollständigen Kontaktangaben (Name, Adresse, Telefon, Email) zu vereinbaren.
Dies gilt auch fĂĽr die Weitergabe relevanter Informationen zu den Objekten.
Wir können kraft bestehenden Geschäftsgebrauchs als Doppelmakler tätig sein.
Wir ersuchen um Verständnis und freuen uns Sie demnächst als Kunde begrüßen zu dürfen.
Nur auf remax.at finden Sie neue RE/MAX Immobilien früher und vollständig, und mit der RE/MAX App sofort am Handy!

Merkmale

  • Bezug: Nach Vereinbarung
  • Bodenbelag: Parkett

Grundrisse

Grundrisse
1 / 1

Realisiere Dein Projekt

Bausubstanz und Energie

Der Anbieter hat keine Informationen zum Energieverbrauch bereit gestellt.
  • Baujahrca. 1900
  • Zustand der ImmobilieAltbau (bis 1945)
Immowelt logo

Mietkosten

Gesamtmiete
700 €
Nettokaltmiete zzgl. Betriebskosten
700 €
Provision fĂĽr Mieter
Bitte beachte, das Angebot kann bei Vertragsabschluss die Zahlung einer Provision beinhalten. Weitere Informationen erhältst Du vom Anbieter.
Kaution
2100 €
Weitere Preisinformationen
Nettokaltmiete: 700,00 EUR

Lage

address-icon
Hainburg an der Donau (2410)
Der Anbieter hat die genaue Adresse nicht freigegeben

Weitere Informationen

Stichworte Nutzfläche: 119,00 m², Anzahl der separaten WCs: 1, Bundesland: Niederösterreich, Stadtzentrumslage

Weitere Services

Lust auf eine Besichtigung?
Eine Frage zur Immobilie?
Nachricht hinzufĂĽgen
Mit der Nutzung der oben angegebenen Telefonnummer oder durch Klicken auf „Kontaktieren“ akzeptierst Du die Allgemeinen Nutzungsbedingungen, denen Du jederzeit widersprechen kannst. Weitere Informationen zum Datenschutz

Ăśber den Anbieter

RE/MAX Gruppe PI
RE/MAX Gruppe PIMaklerbĂĽro
Hauptplatz 20a, 7100 NEUSIEDL AM SEE
Herr Alexander SchmiedDein Kontakt
Online-ID: 2l2265z
Referenznummer: 2275/7586
RE/MAX Gruppe PI
RE/MAX Gruppe PI
Nachricht hinzufĂĽgen
Mit der Nutzung der oben angegebenen Telefonnummer oder durch Klicken auf „Kontaktieren“ akzeptierst Du die Allgemeinen Nutzungsbedingungen, denen Du jederzeit widersprechen kannst. Weitere Informationen zum Datenschutz
Wie zufrieden bist du mit dieser Seite (nicht mit der Immobilie selbst)?