


1 / 12



1 / 12
Hotel zum Kauf4900000 €4.900.000 €39 Zimmer • 860 m² Grundstück
4900000 €4.900.000 €
39 Zimmer • 860 m² Grundstück
HOTEL / Boardinghouse / Wohnraum für Studierende / Arztpraxis oder Pflegeeinrichtung
Inmitten der dynamischen Metropolregion Nürnberg-Erlangen präsentiert sich diese exklusive Immobilie als außergewöhnliche Investitionsgelegenheit.
Das moderne Hotel / Microapartmenthaus vereint zukunftsorientiertes Wohnen, flexible Nutzungsmöglichkeiten und eine erstklassige Lage zu einem renditestarken Gesamtpaket.
Das im Jahr 2018 errichtete Hauptgebäude verfügt über insgesamt 39 hochwertig ausgestattete Zimmer, einen großzügigen Gemeinschafts- bzw. Frühstücksraum mit Gastroküche, Lagerräume, Technikräume sowie einen Aufzug und mehrere Stellplätze im Innenhof. Die Wohn- und Nutzfläche umfasst 1.099,31 m², verteilt auf fünf Etagen.
Besonders hervorzuheben ist die durchdachte Planung der Einheiten: Rund 35 Zimmer sind bereits mit Strom- und Wasseranschlüssen für Küchenzeilen ausgestattet und können somit jederzeit zu vollwertigen Apartments umgestaltet werden - ideal für den Betrieb als Boardinghouse, Serviced Apartments oder Langzeitvermietung.
Die Immobilie steht auf einem Grundstück von 860 m² und beeindruckt durch ihre moderne Architektur und energieeffiziente Bauweise.
Dank der exzellenten Anbindung an die Autobahnen A3 und A73, die Nähe zu den Siemens-Standorten, der Friedrich-Alexander-Universität Erlangen-Nürnberg und sämtlichen Kliniken der Stadt, ist eine kontinuierlich hohe Nachfrage nach Wohnraum und temporären Unterkünften garantiert.
Ergänzt wird das Ensemble durch einen charmanten Altbestand mit rund 250 m² Wohn- und Nutzfläche (EG + 1. OG), der vielseitiges Entwicklungspotenzial bietet.
Für diesen Gebäudeteil liegt eine Nachtragsbaugenehmigung aus dem Jahr 2015 zur Schaffung von über sieben Apartments vor (erneute Beantragung erforderlich).
Darüber hinaus eröffnet der Bebauungsplan zusätzliche Erweiterungsmöglichkeiten im rückwärtigen Grundstücksbereich - analog zur Nachbarbebauung.
Die Heizungsanlage des Hauptgebäudes kann den Altbestand problemlos mitversorgen.
Diese Kombination aus neuwertigem Hauptgebäude, erweiterbarem Altbestand und hervorragender Lage schafft ideale Voraussetzungen für verschiedenste Nutzungskonzepte - vom Microapartmenthaus über Studenten- oder Mitarbeiterwohnungen bis hin zur Pflegeeinrichtung oder Arztpraxis.
Der Kaufpreis beträgt 4.900.000 Euro.
Detaillierte Grundrisse und weitere Unterlagen stellen wir Ihnen auf Anfrage gerne zur Verfügung.
#################################################################################
Jetzt Makler werden!
ImmoUnion24 GmbH sucht motivierte Immobilienpartner (m/w/d) für erfolgreiche Zusammenarbeit - flexibel, fair, provisionsstark!
Infos unter 09126 - 29 59 675 oder per Mail an info@immounion24.de
Das moderne Hotel / Microapartmenthaus vereint zukunftsorientiertes Wohnen, flexible Nutzungsmöglichkeiten und eine erstklassige Lage zu einem renditestarken Gesamtpaket.
Das im Jahr 2018 errichtete Hauptgebäude verfügt über insgesamt 39 hochwertig ausgestattete Zimmer, einen großzügigen Gemeinschafts- bzw. Frühstücksraum mit Gastroküche, Lagerräume, Technikräume sowie einen Aufzug und mehrere Stellplätze im Innenhof. Die Wohn- und Nutzfläche umfasst 1.099,31 m², verteilt auf fünf Etagen.
Besonders hervorzuheben ist die durchdachte Planung der Einheiten: Rund 35 Zimmer sind bereits mit Strom- und Wasseranschlüssen für Küchenzeilen ausgestattet und können somit jederzeit zu vollwertigen Apartments umgestaltet werden - ideal für den Betrieb als Boardinghouse, Serviced Apartments oder Langzeitvermietung.
Die Immobilie steht auf einem Grundstück von 860 m² und beeindruckt durch ihre moderne Architektur und energieeffiziente Bauweise.
Dank der exzellenten Anbindung an die Autobahnen A3 und A73, die Nähe zu den Siemens-Standorten, der Friedrich-Alexander-Universität Erlangen-Nürnberg und sämtlichen Kliniken der Stadt, ist eine kontinuierlich hohe Nachfrage nach Wohnraum und temporären Unterkünften garantiert.
Ergänzt wird das Ensemble durch einen charmanten Altbestand mit rund 250 m² Wohn- und Nutzfläche (EG + 1. OG), der vielseitiges Entwicklungspotenzial bietet.
Für diesen Gebäudeteil liegt eine Nachtragsbaugenehmigung aus dem Jahr 2015 zur Schaffung von über sieben Apartments vor (erneute Beantragung erforderlich).
Darüber hinaus eröffnet der Bebauungsplan zusätzliche Erweiterungsmöglichkeiten im rückwärtigen Grundstücksbereich - analog zur Nachbarbebauung.
Die Heizungsanlage des Hauptgebäudes kann den Altbestand problemlos mitversorgen.
Diese Kombination aus neuwertigem Hauptgebäude, erweiterbarem Altbestand und hervorragender Lage schafft ideale Voraussetzungen für verschiedenste Nutzungskonzepte - vom Microapartmenthaus über Studenten- oder Mitarbeiterwohnungen bis hin zur Pflegeeinrichtung oder Arztpraxis.
Der Kaufpreis beträgt 4.900.000 Euro.
Detaillierte Grundrisse und weitere Unterlagen stellen wir Ihnen auf Anfrage gerne zur Verfügung.
#################################################################################
Jetzt Makler werden!
ImmoUnion24 GmbH sucht motivierte Immobilienpartner (m/w/d) für erfolgreiche Zusammenarbeit - flexibel, fair, provisionsstark!
Infos unter 09126 - 29 59 675 oder per Mail an info@immounion24.de
Merkmale
- Bezug: nach Absprache
- 4 Geschosse
- 860 m² Grundstück
- Personenaufzug
- 5 Stellplätze: 5 Außen-Stellplätze
- Balkon
- Fenster: Kunststoff
- Exklusive Investitionsmöglichkeit in Erlangen
- Microapartmenthaus / Hotel / Boardinghouse mit zusätzlichem Altbestand
- Zentrale Top-Lage in der Metropolregion Nürnberg-Erlangen
- Exzellente Infrastruktur und hohe Nachfrage
- Nähe zu Siemens, Friedrich-Alexander-Universität, allen Erlanger Kliniken und Stadt Nürnberg
- Sehr gute Verkehrsanbindung (A3, A73)
- Gesamtgrundstücksfläche: ca. 860 m²
- Hauptgebäude (Baujahr 2018):
- 39 Zimmer, davon ca. 35 mit Anschlüssen für Küchenzeilen (optional zu Microapartments ausbaubar)
- Wohn- und Nutzfläche: 1.099,31 m²
- Bruttogrundfläche gesamt: 1.326,92 m²
- EG: 272,02 m²
- 1. OG: 327,51 m²
- 2. OG: 327,51 m²
- 3. OG: 199,94 m²
- 4. OG: 199,94 m²
- Gemeinschaftsraum mit Küche
- Lagerräume
- Technikraum
- Aufzug
- Parkplätze im Innenhof
- Altbau mit Entwicklungspotenzial:
- Wohn- und Nutzfläche: ca. 250 m² (EG + 1. OG)
- Nachtragsbaugenehmigung (2015) für über 7 Apartments vorhanden (erneute Beantragung ggf. erforderlich)
- Weitere Bebauungsmöglichkeiten im rückwärtigen Grundstücksbereich laut Bebauungsplan
- Heizung des Hauptgebäudes kann Altbau mitversorgen
- geeignet als Hotelbetrieb / Boardinghouse / Serviced Apartments / Wohnraum für Fachkräfte oder Studierende / Arztpraxis oder Pflegeeinrichtung
- B E S I C H T I G U N G E N :
Als Erstkontakt sind NUR ONLINE Anfragen erwünscht. Unser Büro vereinbart vorher telefonisch KEINE Besichtigungstermine !
Besichtigungstermine sind nur nach Eingang eines vollständig ausgefüllten Kontaktformulars möglich.
#################################################################################
Jetzt Makler werden!
ImmoUnion24 GmbH sucht motivierte Immobilienpartner (m/w/d) für erfolgreiche Zusammenarbeit - flexibel, fair, provisionsstark!
Infos unter 09126 - 29 59 675 oder per Mail an info@immounion24.de
- Microapartmenthaus / Hotel / Boardinghouse mit zusätzlichem Altbestand
- Zentrale Top-Lage in der Metropolregion Nürnberg-Erlangen
- Exzellente Infrastruktur und hohe Nachfrage
- Nähe zu Siemens, Friedrich-Alexander-Universität, allen Erlanger Kliniken und Stadt Nürnberg
- Sehr gute Verkehrsanbindung (A3, A73)
- Gesamtgrundstücksfläche: ca. 860 m²
- Hauptgebäude (Baujahr 2018):
- 39 Zimmer, davon ca. 35 mit Anschlüssen für Küchenzeilen (optional zu Microapartments ausbaubar)
- Wohn- und Nutzfläche: 1.099,31 m²
- Bruttogrundfläche gesamt: 1.326,92 m²
- EG: 272,02 m²
- 1. OG: 327,51 m²
- 2. OG: 327,51 m²
- 3. OG: 199,94 m²
- 4. OG: 199,94 m²
- Gemeinschaftsraum mit Küche
- Lagerräume
- Technikraum
- Aufzug
- Parkplätze im Innenhof
- Altbau mit Entwicklungspotenzial:
- Wohn- und Nutzfläche: ca. 250 m² (EG + 1. OG)
- Nachtragsbaugenehmigung (2015) für über 7 Apartments vorhanden (erneute Beantragung ggf. erforderlich)
- Weitere Bebauungsmöglichkeiten im rückwärtigen Grundstücksbereich laut Bebauungsplan
- Heizung des Hauptgebäudes kann Altbau mitversorgen
- geeignet als Hotelbetrieb / Boardinghouse / Serviced Apartments / Wohnraum für Fachkräfte oder Studierende / Arztpraxis oder Pflegeeinrichtung
- B E S I C H T I G U N G E N :
Als Erstkontakt sind NUR ONLINE Anfragen erwünscht. Unser Büro vereinbart vorher telefonisch KEINE Besichtigungstermine !
Besichtigungstermine sind nur nach Eingang eines vollständig ausgefüllten Kontaktformulars möglich.
#################################################################################
Jetzt Makler werden!
ImmoUnion24 GmbH sucht motivierte Immobilienpartner (m/w/d) für erfolgreiche Zusammenarbeit - flexibel, fair, provisionsstark!
Infos unter 09126 - 29 59 675 oder per Mail an info@immounion24.de
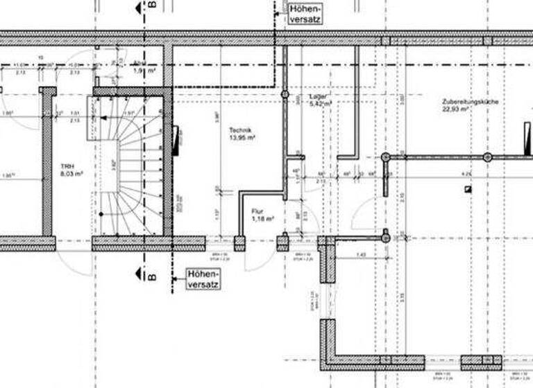
Grundrisse
Grundrisse
1 / 5
Realisiere Dein Projekt
Bausubstanz und Energie
Energieausweis
B
- Baujahr2018
- Zustand der ImmobilieGepflegt
- HeizungsartZentralheizung
- EnergieträgerGas
Preisdetails
Kaufpreis
4900000 €4.900.000 €
Provision für Käufer
3,57% vom Kaufpreis (inkl. MwSt.)
Weitere Preisinformationen
5 Stellplätze
Geschätzte Gesamtkosten
5.074.930 €1
Kaufpreis
4.900.000 €
Kaufnebenkosten
174.930 €
2Provision für Käufer (3,57%)
174.930 €
1Der angezeigte Wert ist eine automatisch berechnete Schätzung von immowelt.
2Bei den Angaben handelt es sich um ortsübliche Werte. Individuelle Kosten können abweichen.
Lage

Innenstadt, Erlangen (91054)
Der Anbieter hat die genaue Adresse nicht freigegeben
Die Immobilie befindet sich in zentraler und äußerst begehrter Lage von Erlangen - nur wenige Gehminuten von der Innenstadt, dem Hauptbahnhof und zahlreichen bedeutenden Einrichtungen entfernt.
Das Umfeld ist geprägt von einer hervorragenden Infrastruktur, einer ausgezeichneten Verkehrsanbindung sowie einem lebendigen urbanen Umfeld mit hoher Nachfrage nach modernem Wohnraum.
In einem Umkreis von nur 5 bis 15 Gehminuten erreichen Sie zahlreiche wichtige Ziele:
- Mehrere Siemens-Standorte sowie das Siemens Healthineers Training Center.
- Die Erlanger Innenstadt mit Fußgängerzone, Erlangen Arcaden und vielfältigen gastronomischen Angeboten.
- Den Hauptbahnhof und Zentralen Busbahnhof.
- Die Friedrich-Alexander-Universität Erlangen-Nürnberg (FAU) mit ihren Fakultäten für Philosophie, Rechtswissenschaften, Medizin und Naturwissenschaften.
- Sämtliche Erlanger Kliniken (u. a. Universitätsklinikum, Chirurgische Klinik, Frauenklinik, HNO-Klinik, Hautklinik, Kinderklinik, Kopfklinik, Orthopädische Klinik, Polymed-Klinik, Strahlenklinik und Zahnklinik)
- Die Heinrich-Lades-Halle und den Botanischen Garten
- Diverse Einkaufsmöglichkeiten wie Kaufland, Aldi, Norma und Rewe
Darüber hinaus befinden sich in der direkten Umgebung Bürogebäude, Studentenwohnheime, eine Mensa sowie die Staatliche Fachhochschule, was die Lage besonders attraktiv für Studierende, Berufspendler und medizinisches Fachpersonal macht.
Die Anbindung an den öffentlichen Nahverkehr ist hervorragend:
Direkt vor der Haustür befindet sich eine Bushaltestelle, die Haltestellen "Siemens Verwaltung" und "Langemarckplatz" sind in nur etwa 3 Minuten zu Fuß erreichbar.
Der Flughafen Nürnberg liegt rund 20 Minuten mit dem Auto bzw. ca. 30 Minuten mit dem Bus entfernt.
Insgesamt überzeugt die Lage durch ihre zentrale, bestens vernetzte und zukunftssichere Position im Herzen von Erlangen - ideal für die Zielgruppe urbaner Mieter mit hohem Anspruch an Mobilität und Lebensqualität.
#########################################################
Jetzt Makler werden!
ImmoUnion24 GmbH sucht motivierte Immobilienpartner (m/w/d) für erfolgreiche Zusammenarbeit - flexibel, fair, provisionsstark!
Infos unter 09126 - 29 59 675 oder per Mail an info@immounion24.de
Das Umfeld ist geprägt von einer hervorragenden Infrastruktur, einer ausgezeichneten Verkehrsanbindung sowie einem lebendigen urbanen Umfeld mit hoher Nachfrage nach modernem Wohnraum.
In einem Umkreis von nur 5 bis 15 Gehminuten erreichen Sie zahlreiche wichtige Ziele:
- Mehrere Siemens-Standorte sowie das Siemens Healthineers Training Center.
- Die Erlanger Innenstadt mit Fußgängerzone, Erlangen Arcaden und vielfältigen gastronomischen Angeboten.
- Den Hauptbahnhof und Zentralen Busbahnhof.
- Die Friedrich-Alexander-Universität Erlangen-Nürnberg (FAU) mit ihren Fakultäten für Philosophie, Rechtswissenschaften, Medizin und Naturwissenschaften.
- Sämtliche Erlanger Kliniken (u. a. Universitätsklinikum, Chirurgische Klinik, Frauenklinik, HNO-Klinik, Hautklinik, Kinderklinik, Kopfklinik, Orthopädische Klinik, Polymed-Klinik, Strahlenklinik und Zahnklinik)
- Die Heinrich-Lades-Halle und den Botanischen Garten
- Diverse Einkaufsmöglichkeiten wie Kaufland, Aldi, Norma und Rewe
Darüber hinaus befinden sich in der direkten Umgebung Bürogebäude, Studentenwohnheime, eine Mensa sowie die Staatliche Fachhochschule, was die Lage besonders attraktiv für Studierende, Berufspendler und medizinisches Fachpersonal macht.
Die Anbindung an den öffentlichen Nahverkehr ist hervorragend:
Direkt vor der Haustür befindet sich eine Bushaltestelle, die Haltestellen "Siemens Verwaltung" und "Langemarckplatz" sind in nur etwa 3 Minuten zu Fuß erreichbar.
Der Flughafen Nürnberg liegt rund 20 Minuten mit dem Auto bzw. ca. 30 Minuten mit dem Bus entfernt.
Insgesamt überzeugt die Lage durch ihre zentrale, bestens vernetzte und zukunftssichere Position im Herzen von Erlangen - ideal für die Zielgruppe urbaner Mieter mit hohem Anspruch an Mobilität und Lebensqualität.
#########################################################
Jetzt Makler werden!
ImmoUnion24 GmbH sucht motivierte Immobilienpartner (m/w/d) für erfolgreiche Zusammenarbeit - flexibel, fair, provisionsstark!
Infos unter 09126 - 29 59 675 oder per Mail an info@immounion24.de
Weitere Informationen
Sonstiges
Jetzt Makler werden!
ImmoUnion24 GmbH sucht motivierte Immobilienpartner (m/w/d) für erfolgreiche Zusammenarbeit - flexibel, fair, provisionsstark!
Infos unter 09126 - 29 59 675 oder per Mail an info@immounion24.de
#######################################################
Die ImmoUnion24 GmbH erhält vom Käufer bei Abschluss eines durch die ImmoUnion24 GmbH vermittelten und notariell beurkundeten Kaufvertrages zu dieser Immobilie 3,57 % inkl. MwSt. Käuferprovision. Die Käuferprovision wird berechnet aus dem Gesamterwerbspreis und ist verdient am Tag der notariellen Beurkundung des Kaufvertrages.
In unseren Angebot separat ausgewiesene KfZ Stellplätze wie z.B. Garagen, Carport`s usw. sind selbstverständlich auch provisionspflichtig. Die ImmoUnion24 GmbH hat auch einen provisionspflichtigen Maklervertrag mit dem Verkäufer in gleicher Höhe abgeschlossen.
Der Provisionsanspruch gilt auch gegenüber Lebensgefährten, Verwandten, Familienmitgliedern, Lebensgemeinschaften, Betriebsvertretern oder Franchisegebern/-partnern. Die ImmoUnion24 GmbH behält sich die Entscheidung vor, ob, wann, an wen und zu welchen Bedingungen die Immobilie / Grundstück verkauft wird und mit den Interessenten nachzuverhandeln. Kontaktaufnahme, Besichtigungen, Verhandlungen erfolgen ausschließlich über unser Büro !
Schadenersatzansprüche sind uns gegenüber, auch bei eigenen Fehlern, mit Ausnahme von grob fahrlässigem Verhalten, ausgeschlossen. Nach § 242 BGB muss eine Vorkenntnis umgehend schriftlich und schlüssig unter Angabe der Bezugsquelle vom Angebotsempfänger nachgewiesen werden, da sonst die Gelegenheit zum Erwerb dieses Objektes als bisher unbekannt gilt.
Das Angebot ist ausschließlich nur für Sie bestimmt und daher vertraulich zu behandeln. Bei Weitergabe an Dritte entsteht Provisionspflicht. Es gelten die AGB`s der ImmoUnion24 GmbH. Alle Angaben beruhen auf Aussagen des Verkäufers / Eigentümers oder eines Dritten. Der Makler übernimmt keine Haftung. Irrtum vorbehalten ! Stichworte Stellplatz vorhanden, Rolladen, Wohnfläche: 1.349,00 m², vermietbare Fläche: 1.349,00 m², Anzahl der Schlafzimmer: 39, Anzahl der Badezimmer: 39, Anzahl Balkone: 6, Anzahl der Wohneinheiten: 39, Bundesland: Bayern, 4 Etagen Gastronomie/Hotel: Hotelrestaurant
ImmoUnion24 GmbH sucht motivierte Immobilienpartner (m/w/d) für erfolgreiche Zusammenarbeit - flexibel, fair, provisionsstark!
Infos unter 09126 - 29 59 675 oder per Mail an info@immounion24.de
#######################################################
Die ImmoUnion24 GmbH erhält vom Käufer bei Abschluss eines durch die ImmoUnion24 GmbH vermittelten und notariell beurkundeten Kaufvertrages zu dieser Immobilie 3,57 % inkl. MwSt. Käuferprovision. Die Käuferprovision wird berechnet aus dem Gesamterwerbspreis und ist verdient am Tag der notariellen Beurkundung des Kaufvertrages.
In unseren Angebot separat ausgewiesene KfZ Stellplätze wie z.B. Garagen, Carport`s usw. sind selbstverständlich auch provisionspflichtig. Die ImmoUnion24 GmbH hat auch einen provisionspflichtigen Maklervertrag mit dem Verkäufer in gleicher Höhe abgeschlossen.
Der Provisionsanspruch gilt auch gegenüber Lebensgefährten, Verwandten, Familienmitgliedern, Lebensgemeinschaften, Betriebsvertretern oder Franchisegebern/-partnern. Die ImmoUnion24 GmbH behält sich die Entscheidung vor, ob, wann, an wen und zu welchen Bedingungen die Immobilie / Grundstück verkauft wird und mit den Interessenten nachzuverhandeln. Kontaktaufnahme, Besichtigungen, Verhandlungen erfolgen ausschließlich über unser Büro !
Schadenersatzansprüche sind uns gegenüber, auch bei eigenen Fehlern, mit Ausnahme von grob fahrlässigem Verhalten, ausgeschlossen. Nach § 242 BGB muss eine Vorkenntnis umgehend schriftlich und schlüssig unter Angabe der Bezugsquelle vom Angebotsempfänger nachgewiesen werden, da sonst die Gelegenheit zum Erwerb dieses Objektes als bisher unbekannt gilt.
Das Angebot ist ausschließlich nur für Sie bestimmt und daher vertraulich zu behandeln. Bei Weitergabe an Dritte entsteht Provisionspflicht. Es gelten die AGB`s der ImmoUnion24 GmbH. Alle Angaben beruhen auf Aussagen des Verkäufers / Eigentümers oder eines Dritten. Der Makler übernimmt keine Haftung. Irrtum vorbehalten ! Stichworte Stellplatz vorhanden, Rolladen, Wohnfläche: 1.349,00 m², vermietbare Fläche: 1.349,00 m², Anzahl der Schlafzimmer: 39, Anzahl der Badezimmer: 39, Anzahl Balkone: 6, Anzahl der Wohneinheiten: 39, Bundesland: Bayern, 4 Etagen Gastronomie/Hotel: Hotelrestaurant
Weitere Services
Lust auf eine Besichtigung?
Eine Frage zur Immobilie?
Über den Anbieter
ImmoUnion24 GmbHMaklerbüro
Eckentaler Straße 12, 90542 Eckental
Partnerschaft

Frau Annett SchillingDein Kontakt
Online-ID: 2mtkl57
Referenznummer: 1137


ImmoUnion24 GmbH
Wie zufrieden bist du mit dieser Seite (nicht mit der Immobilie selbst)?