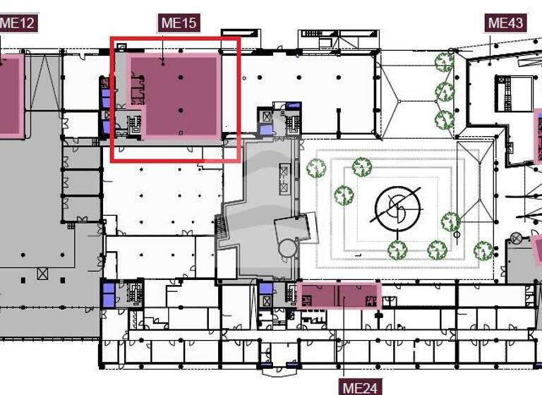
Das FORUM AM MARIANNENPARK wurde 1995 fertiggestellt. Hier sind z.B. Unternehmensbereiche der Deutschen Post angesiedelt. Der Bürokomplex verfügt über eine zentrale und begrünte Halle mit Glasdach. Von dort aus werden die Büroetagen bequem über die Aufzugsanlage erschlossen.. Im Objekt stehen ca. 10.000 m² Bürofläche zur Verfügung und bietet damit hervorragende Möglichkeiten, Ihr Flächengesuch zu realisieren. Die Mietflächen können entsprechend dem Raumprofil des Mieters ausgebaut und aufgeteilt werden. Die Ladenfläche ME 15 mit einer Größe von ca. 338 m² befindet sich im Erdgeschoß des Objektes.
PKW-Stellplätze können auf dem Grundstück zusätzlich angemietet werden. - zusätzlich verfügt das Gebäude über 10.000 m² Lagerfläche
Stellplätze für Ihre Mitarbeiter und Kunden können in der hauseigenen Tiefgarage angemietet werden.
Der markante Gebäudekomplex FORUM AM MARIANNENPARK befindet sich nordöstlich des Leipziger Stadtzentrums an der hier vierspurig ausgebauten B87. Über diesen Zubringer ist sowohl die BAB 14 als auch der Flughafen Leipzig/ Halle in wenigen Minuten erreichbar. Die Innenstadt und der Hauptbahnhof sind nur etwa 5 - 10 PKW- Minuten entfernt. Öffentliche Verkehrsmittel halten direkt vor dem Objekt.
Weitere Informationen
Sonstiges
Der Mietpreis richtet sich nach Ausstattung, Mietvertragslaufzeit und Lage im Objekt und liegt ca. zwischen 11,15 und 13,15 EUR/m² zzgl. Nebenkosten. Gern unterbreiten wir Ihnen Ihr persönliches Mietangebot.
BUEROanmietung leicht gemacht?
Bitte sprechen Sie uns an, gern stellen wir Ihnen eine Auswahl geeigneter Büroflächenangebote zusammen. Für Fragen, ein persönliches Gespräch oder auch eine persönliche Terminvereinbarung stehen wir Ihnen gern telefonisch unter 0341 | 5643000 zur Verfügung.