Version: 8.24.0Navigation überspringen
99.000 €
13 Zimmer  •  315 m²  •  1.040 m² Grundstück  •  frei ab sofort
Immowelt logo

Mehrfamilienhaus zum Kauf
99000 €
314 €/m²
13 Zimmer  •  315 m²  •  1.040 m² Grundstück  •  frei ab sofort

Objekt mit besonderem Flair!

Zum Verkauf steht ein tolles Sanierungsobjekt mit einem gewissen Extra. Das Objekt wurde 1875 in massiver Bauweise errichtet. Durch die große Loggia und die verspielten Dekorelemente am Dach versprüht diese Immobilie einen besonderen Scharm und erinnert an längst vergangene Zeiten. Denkbar ist eine Neuvermietung, ein Umbau zu Ferienwohnungen oder eine Nutzung als Mehrgenerationenhaus, lassen sie sich inspirieren. Sanieren sie dieses tolle Objekt und füllen es mit neuem Leben.
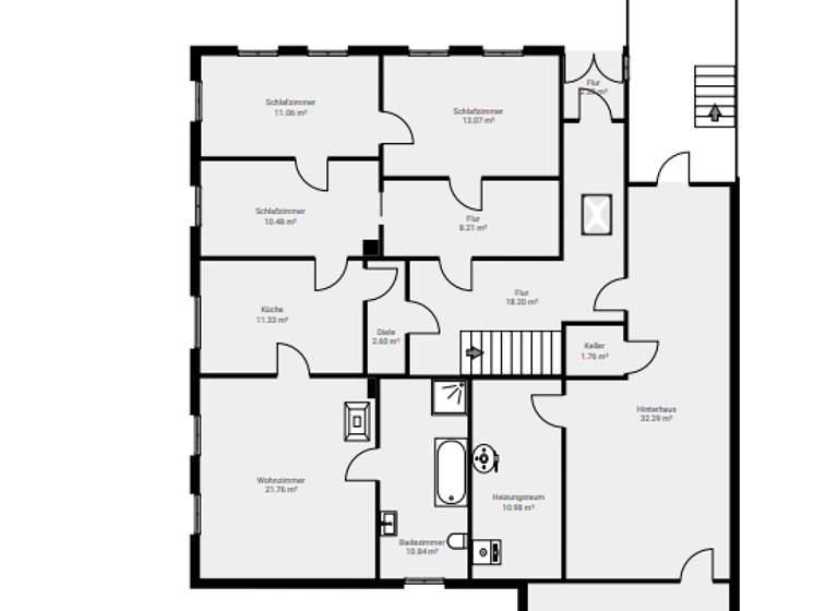
Auf 3 Etagen stehen aktuell 4-5 Wohneinheiten zur Verfügung, wovon 2 Wohnungen im Dachgeschoss bereits vermietet sind. Im Erdgeschoss und im Obergeschoss befindet sich jeweils eine große Wohneinheit. Hier ist es jedoch möglich die Raumaufteilung neu zu strukturieren und jeweils 2 kleine Wohneinheiten zu schaffen. Die Wohneinheit im Erdgeschoss verfügt über eine Wohnfläche von ca. 90m² und bietet 2 Wohnzimmer, 2 Schlafzimmer, eine Küche, ein Bad mit Wanne, Dusche, Waschtisch und WC sowie einen Flur. In einem Wohnzimmer befindet sich ein alter Kachelofen, welcher zusätzlich für Wärme sorgt. Eine Funktionsprüfung durch einen Schornsteinfeger ist jedoch erforderlich. Im 1.OG verfügt die Wohnung über ca. 130m² Wohnfläche. Diese verteilt sich auf ein schönes Wohnzimmer mit Kachelofen und mit Zutritt zur großen hellen Loggia, welche rundum mit alten originalen Holzfenstern mit spezieller Öffnungstechnik ausgestattet ist. Genießen sie hier mit einem Glas Wein den Feierabend und genießen die tolle Aussicht. Weiter finden sie hier 2 Kinderzimmer, ein großes Schlafzimmer mit einem originellen Einbauschrank und Kachelofen, ein Arbeitszimmer, ein Bad mit Wanne, Dusche, Waschtisch und WC (weiterer Anschluss für Bidet vorhanden), ein Gästebad mit Dusche, Waschtisch und WC sowie der Flur. Im Dachgeschoss befinden sich eine 3-Raum Wohnungen mit ca. 45m² und eine 3-Raum Wohnung mit ca. 50m² Wohnfläche. Diese beiden WEs sind vermietet und erzielen monatlich Kaltmieteinnahmen in Höhe von 460,00€. Auf dem Dachboden stehen je Wohneinheit ein Abteil zur Verfügung, der Rest dient zum Wäsche trocknen und Lagerung. Im Erdgeschoss befindet sich auch der Heizungsraum, in welcher eine 1992 eingebaute Gasheizung das Haus mit Wärme und Warmwasser versorgt. Außerdem befinden sich hier noch 2 weitere Räume, welche zum Abstellen und Lagern dienen, den Zugang zum Anbau mit 2 Garagen (eine Montagegrube) und kleinem Dachboden und der Zugang zum Nebengebäude. Das Objekt ist teilunterkellert, hier befindet sich ein Gewölbekeller mit Anschluss für Brunnenwasser. Das Treppenhaus mit Steinfußböden, Steintreppen, Oberlicht am Eingang, den alten schweren Holztüren und der Holzvertäfelung erinnern an längst vergangene Zeiten.
Ein schöner großer Garten bietet viel Platz für Gestaltungsmöglichkeiten. Eine Rasenfläche steht für die Kinder zum Spielen und zum Wäsche trocknen zur Verfügung, alter Baumbestand, Obstbäume und Sträucher spenden Schatten und für eine Terrasse zum Entspannen und Grillen mit Freunden findet sich auch eine Ecke. Ein großes Nebengebäude lässt sich wieder herrichten für Lagermöglichkeiten, Werkstatt oder anderes.

Merkmale

  • vermietet
  • 3 Geschosse
  • 1.040 m² Grundstück
  • Kelleranteil
  • 2 Stellplätze: 2 Garagen, Außen-Stellplatz
  • Garten
Das Objekt bietet grundsätzlich eine gute Ausgangsbasis für eine Sanierung. Einige Sanierungsarbeiten wurden seit den 90iger Jahren bereits ausgeführt. So wurde 1992 die Gas-Zentralheizung eingebaut, 1993 wurden doppelt verglaste Isolierfenster eingebaut, eine Seite des Daches erneuert, die Elektrik teilweise erneuert, die Wohneinheiten in EG und 1.OG saniert, die WEs im DG wurden in den 2000 Jahren saniert usw. Um an den Wohnstandard von heute anzuschließen, bedarf es jedoch weiterer Sanierungen und Renovierungen. Das Objekt ist an den öffentlichen Abwasserkanal angeschlossen und die Nutzung von Brunnenwasser ist möglich. Die vielen kleinen Details aus früheren Zeiten machen dieses Objekt zu einer besonderen Immobilie mit viel Ausbaupotential.

Grundrisse

Grundrisse
1 / 12

Realisiere Dein Projekt

Bausubstanz und Energie

Energieausweis

E
  • Baujahr1875
  • Zustand der ImmobilieAltbau (bis 1945), renovierungsbedürftig / sanierungsbedürftig
  • HeizungsartZentralheizung: Ofen
  • EnergieträgerKohle, Gas, Holz
Immowelt logo

Preisdetails

Kaufpreis
99000 €
314,29 €/m²
Provision für Käufer
3,57% vom KP, mind. jedoch 3570,00€ inkl. MwSt.
Die Maklercourtage für den Käufer beträgt 3,57% inkl. MwSt. vom Kaufpreis, mind. jedoch 3570,00€. Weitere Informationen siehe Provisionshinweis.
Weitere Preisinformationen
2 Garagenstellplätze
Geschätzte Gesamtkosten
109.959 €1
Kaufpreis
99.000 €
Notarkosten (1,5%)
1.485 €
Grunderwerbsteuer (5,5%)
5.445 €
Provision für Käufer (3,57%)
3.534 €
Grundbucheintrag (0,5%)
495 €
1Der angezeigte Wert ist eine automatisch berechnete Schätzung von immowelt.
2Bei den Angaben handelt es sich um ortsübliche Werte. Individuelle Kosten können abweichen.

Lage

address-icon
Bärenstein (09471)
Der Anbieter hat die genaue Adresse nicht freigegeben
Das Objekt befindet sich etwas oberhalb des Tales in einer Nebenstraße und bietet einen fantastischen Ausblick. Der Ort bietet eine gut ausgebaute Infrastruktur. Sie finden hier Supermärkte, Bäcker, Fleischer, Frisör, Ärzte, Apotheke, Kindergärten, Grundschule uvm. Am Fuße des Bärenstein gelegen können sie hier erholsame Wander- oder Radtouren unternehmen und im Winter Ski fahren. Mit dem öffentlichen Nahverkehr erreichen sie in kurzer Zeit Annaberg-Buchholz und Oberwiesenthal mit all ihren Annehmlichkeiten. Bärenstein ist eine Gemeinde im Erzgebirge. Sie liegt direkt an der tschechischen Grenze und verfügt über einen Grenzübergang mit der Möglichkeit günstig zu tanken und einzukaufen. Umgeben von viel Natur kann man hier entspannt leben oder Urlaub machen. Der Fichtelberg und der Keilberg mit seinen Skigebieten ist auch nur ca. 15 Minuten mit dem PKW entfernt.

Weitere Informationen

Provisionshinweis 3,57% vom KP, mind. jedoch 3570,00€ inkl. MwSt.
Die Maklercourtage für den Käufer beträgt 3,57% inkl. MwSt. vom Kaufpreis, mind. jedoch 3570,00€. Sie ist fällig und verdient mit der Unterzeichnung vom Kaufvertrag. Eine Vereinbarung in gleicher Höhe wurde mit dem Verkäufer getroffen. Sonstiges Diese Immobilie wird im Rahmen eines Makleralleinauftrages von uns angeboten. Weitere Auskünfte erhalten Sie gern auf Nachfrage. Besichtigungstermine sind ausschließlich mit uns zu vereinbaren und in unserer Anwesenheit durchzuführen. Auf ausdrücklichen Wunsch unserer Auftraggeber und zum Schutz Ihrer Privatsphäre, bitten wir von selbständiger Kontaktaufnahme und auch Außenbesichtigungen abzusehen!
Alle hier gemachten Angaben beziehen sich auf Aussagen der Eigentümer, so dass wir trotz sorgfältiger Prüfung keinerlei Haftung für deren Richtigkeit übernehmen. Flächenmaße usw. sind ggf. selbstständig am Objekt zu entnehmen. Wir bitten um Verständnis, dass wir nur Anfragen mit der vollständigen Angabe von Namen, Tel. Nr. und Mailadresse bearbeiten können.
Gern sind wir Ihnen auch bei der Objektfinanzierung behilflich. Stichworte Garage vorhanden, Anzahl der Schlafzimmer: 7, Anzahl der Badezimmer: 5, 3 Etagen, Lage im Ort, modernisiert: 2000 Sonstiges/Wohnen: Dachboden Versorgung: Regenwassernutzung

Weitere Services

Lust auf eine Besichtigung?
Eine Frage zur Immobilie?
Nachricht hinzufügen
Mit der Nutzung der oben angegebenen Telefonnummer oder durch Klicken auf „Kontaktieren“ akzeptierst Du die Allgemeinen Nutzungsbedingungen, denen Du jederzeit widersprechen kannst. Weitere Informationen zum Datenschutz

Über den Anbieter

Robert - Blum - Str. 23, 09456 Annaberg - B.
partner badge
Partnerschaft
Frau Sandra BarthelDein Kontakt
Online-ID: 2mff25h
Referenznummer: 163271863#OkrsQc
Wohnungsmarkt Erzgebirge
Wohnungsmarkt Erzgebirge
Bewertung: 4,2 von 5 Sternen
Nachricht hinzufügen
Mit der Nutzung der oben angegebenen Telefonnummer oder durch Klicken auf „Kontaktieren“ akzeptierst Du die Allgemeinen Nutzungsbedingungen, denen Du jederzeit widersprechen kannst. Weitere Informationen zum Datenschutz
Wie zufrieden bist du mit dieser Seite (nicht mit der Immobilie selbst)?