Version: 8.25.1Navigation überspringen
395.000 €
7 Zimmer  •  252 m²  •  2.274 m² Grundstück
Immowelt logo

Haus zum Kauf
395000 €
1.567 €/m²
7 Zimmer  •  252 m²  •  2.274 m² Grundstück

Als Generationenobjekt oder zur teilweisen Vermietung - viel Platz für Deine Ideen

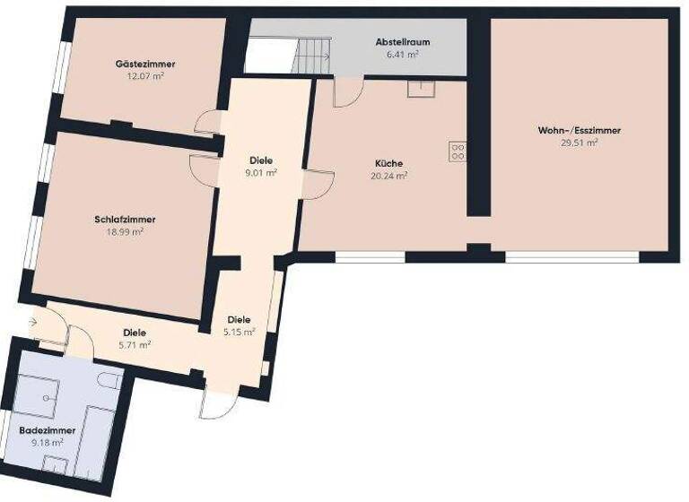
Das ehemals landwirtschaftlich genutzte Objekt steht auf einem großen Grundstück mit verschiedenen Nebengebäuden zur individuellen Nutzung. Das Wohngebäude an der Straßenseite ist in zwei separate Wohneinheiten aufgeteilt. Der Zugang zur Erdgeschosswohnung mit einem Bad, zwei Schlafzimmern, einer großen Küche nebst Abstellraum und dem ebenfalls großzügig geschnittenen Wohn-/Esszimmer befindet sich an der Hausfront. Vom Abstellraum führt Dich eine Treppe in den Keller mit zwei Nutzräumen als Abstellfläche. Hier sind auch die Hausanschlüsse zu finden. Im Innenhof bieten diverse weitere Räume zusätzliche Nutzflächen als Abstellräume und ähnliches. Auch die moderne Pelletheizung inkl. dem Lager für die Holzpellets befindet sich in einem der Räume.

Über eine Treppe im Innenhof erreichst Du die zweite Wohneinheit, die ab 2004 zu Wohnraum um- und ausgebaut wurde. Diese modern geschnittene Einheit ist aufgeteilt in den Flur mit Zugang zum Badezimmer mit bodengleicher Dusche, zum Arbeitszimmer, zur Küche, von dort weiter zum großen Wohn-/Esszimmer mit einer Empore. Über einen zweiten Flur erreichst Du ein weiteres Zimmer und das große Schlafzimmer. Ein Zugang zum Spitzboden und ein außerhalb der Wohnung liegender Abstell- und Hauswirtschaftsraum vervollständigen die obere Einheit.

Ehemalige Stallungen und weitere Nebengebäude - teilweise als offene Unterstände hergestellt - bieten zahlreiche Nutzungsmöglichkeiten , vom Wohnmobilstellplatz bis zum Hobbyraum ist hier Vieles denkbar. Der hintere Teil des Grundstückes ist als Wiese zum Beispiel auch für Tierhaltung oder als Nutzgarten für den eigenen Obst- und Gemüseanbau geeignet.

Nutze die Möglichkeiten dieser Immobilie, zur (teilweisen) Vermietung oder auch zur kompletten Eigennutzung. Frage nach unserem Objekt HS-GOE_26-094 und lasse Dich bei einem Besichtigungstermin von den Möglichkeiten dieser interessanten Immobilie überzeugen!

Merkmale

  • 2.274 m² Grundstück
  • Einbauküche
  • Keller
  • Terrasse
  • 5 Stellplätze: Garage, 5 Außen-Stellplätze
-vielseitig nutzbar
-diverse Nebengebäude zur vielfältigen Nutzung
-moderne Heizungstechnik (Pelletheizung)
-Fenster OG 2006/2022 erneuert
-Bad EG 2004 erneuert

Grundrisse

Grundrisse
1 / 3

Virtueller Rundgang

3D tour

Realisiere Dein Projekt

Bausubstanz und Energie

Energieausweis

G
  • Baujahr1952
  • HeizungsartZentralheizung
  • EnergieträgerPellets
Immowelt logo

Preisdetails

Kaufpreis
395000 €
1.567,46 €/m²
Provision für Käufer
2,38% inkl. MwSt.
Verdient und fällig mit Beurkundung des notariellen Kaufvertrages. Der Immobilienmakler hat einen provisionspflichtigen Maklervertrag mit dem Verkäufer in gleicher Höhe abgeschlossen.
Weitere Preisinformationen
5 Stellplätze
1 Garagenstellplatz
Geschätzte Gesamtkosten
437.976 €1
Kaufpreis
395.000 €
Notarkosten (1,5%)
5.925 €
Grunderwerbsteuer (6,5%)
25.675 €
Provision für Käufer (2,38%)
9.401 €
Grundbucheintrag (0,5%)
1.975 €
1Der angezeigte Wert ist eine automatisch berechnete Schätzung von immowelt.
2Bei den Angaben handelt es sich um ortsübliche Werte. Individuelle Kosten können abweichen.

Lage

address-icon
SchierwaldenrathGangelt (52538)
Der Anbieter hat die genaue Adresse nicht freigegeben
Diese Immobilie befindet sich auf einem schönen Grundstück in Ortslage von Schierwaldenrath. Die Ortschaft Schierwaldenrath hat ca. 600 Einwohner und gehört zur Gemeinde Gangelt. Im Jahr 2003 gründete sich der Ortsring. Neben der Förderung der Kultur und Brauchtumspflege, werden auch die Förderung der Jugend und die Altenhilfe groß geschrieben. Nach dem Umbau der alten Schule zum Bürgerhaus wird dieses von vielen Vereinen und Bürgern genutzt. Im ortseigenen Kindergarten "Regenbogen" werden die Kleinen betreut. Schierwaldenrath erhielt 2012 eine Silberplakette für hervorragende Leistungen im Landeswettbewerb "Unser Dorf hat Zukunft". Bekannt ist der Ort auch durch seine historische Dampfeisenbahn, die regelmäßig zwischen Schierwaldenrath und Gillrath pendelt. Ein Pluspunkt ist die schnelle Erreichbarkeit der Städte Heinsberg und Geilenkirchen. Über den Ausbau der B 56 N erreichen Sie auch die benachbarten Niederlande in wenigen Kilometern. Auch die Autobahn A46 liegt nur ca. 8 Kilometer entfernt. In den Nachbarorten Gangelt und Birgden befinden sich alle Geschäfte des täglichen Bedarfs, Ärzte und Apotheken. Weitere Kindergärten und Schulen sind durch gute Busverbindungen angeschlossen.

Weitere Informationen

Sonstiges Baujahr: 1952
Energiekennwert: 245,65 kWh/(m²*a)
Befeuerung/Energieträger: Pelletheizung
Energieausweistyp: Bedarfsausweis
Heizungsart: Zentralheizung
Energieeffizienzklasse: G

Bitte haben Sie Verständnis, dass wir Exposés nur bei vollständiger Angabe Ihrer Kontaktdaten verschicken.
Mit Ihrer Anforderung eines Exposés erklären Sie sich mit unserer telefonischen Kontaktaufnahme (gem. §7 und §20 UWG) einverstanden.
Die Angaben zum Objekt basieren auf den Auskünften des Eigentümers, so dass keine Haftung übernommen werden kann. Änderungen und Irrtümer bleiben vorbehalten. Stichworte Garage vorhanden, Stellplatz vorhanden, Anzahl der Schlafzimmer: 5, Anzahl der Badezimmer: 2, Anzahl Terrassen: 1, Bundesland: Nordrhein-Westfalen, Flur: 6, Gemarkung: Schierwaldenrath, 3 Etagen, keine Eintragung Sonstiges/Wohnen: Einliegerwohnung

Weitere Services

Lust auf eine Besichtigung?
Eine Frage zur Immobilie?
Nachricht hinzufügen
Mit der Nutzung der oben angegebenen Telefonnummer oder durch Klicken auf „Kontaktieren“ akzeptierst Du die Allgemeinen Nutzungsbedingungen, denen Du jederzeit widersprechen kannst. Weitere Informationen zum Datenschutz

Über den Anbieter

Bahnhofstr. 7c, 52538 Gangelt
partner badge
10 Jahre Partnerschaft
Herr Bernd Bougie
Herr Bernd BougieDein Kontakt
Online-ID: 26PNFNP5TT8M
Referenznummer: 26 094
Bougie GmbH
title
Bougie GmbH
Bewertung: 4,7 von 5 Sternen
Nachricht hinzufügen
Mit der Nutzung der oben angegebenen Telefonnummer oder durch Klicken auf „Kontaktieren“ akzeptierst Du die Allgemeinen Nutzungsbedingungen, denen Du jederzeit widersprechen kannst. Weitere Informationen zum Datenschutz
Wie zufrieden bist du mit dieser Seite (nicht mit der Immobilie selbst)?