Version: 8.26.0Navigation überspringen
1.020 €
170 m² Lagerfläche
Immowelt logo

Lagerhalle zur Miete
1.020 €
170 m² Lagerfläche

Vielseitig nutzbare Gewerbehallen - ca. 170 m², beheizt, große Tore, Freifläche in Salzhausen

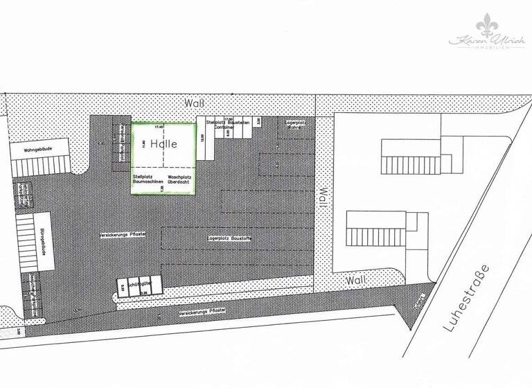
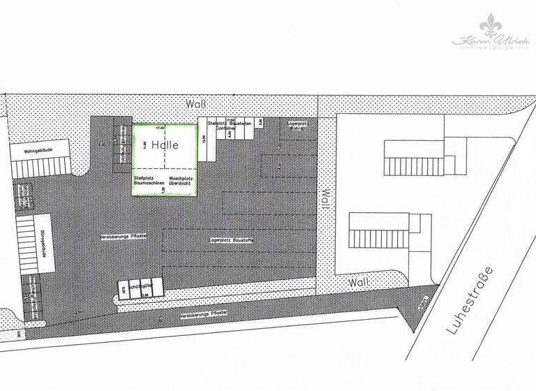
Zur Vermietung stehen zwei beheizte Hallen mit einer Gesamtfläche von ca. 170 m², die sich aufgrund ihrer Ausstattung und Flächenstruktur besonders für Kfz-Betriebe, handwerkliche Unternehmen oder logistiknahe Nutzungen eignen. Die Immobilie wurde im Jahr 2001 errichtet und befindet sich in einem gepflegten Zustand.

Die Hallen verfügen über zwei große, elektrisch betriebene Tore mit einer Durchfahrtshöhe von jeweils ca. 4,20 m, wodurch auch größere Fahrzeuge problemlos ein- und ausfahren können. Die Beheizung erfolgt derzeit über eine Gasheizung; zusätzlich ist die Umrüstung auf eine moderne Wärmepumpe zeitnah vorgesehen.

Ergänzend stehen ein WC, ein Kühlraum sowie ein Vordach zur Verfügung. Eine Außenfläche bzw. Freifläche von bis zu ca. 1.000 m² kann optional für nt. 0,90 €/m² nach Absprache mitvermietet werden und eignet sich ideal als Abstell-, Lager- oder Rangierfläche. Eine Anmietung mit Untervermietung ist ebenfalls möglich.

Sowohl die Grundmiete als auch die Nebenkosten verstehen sich zzgl. MwSt. (Nettomiete inkl. Nebenkosten 1.700,00 € + 19% MwSt. 323,00 € = 2.023,00 € Bruttomiete).
Die Strom- / Heiz- und Wasserkosten werden über die Nebenkosten mit abgerechnet. Des Weiteren ist die Beheizung des Büros und Lagerhalle in den Nebenkosten enthalten.

Die Immobilie bietet vielseitige Nutzungsmöglichkeiten und ist sowohl für Werkstatt-, Lager- als auch für handwerkliche Tätigkeiten geeignet. Weitere Informationen zu Nutzungsmöglichkeiten, Mietkonditionen und Verfügbarkeit erhalten Sie gerne auf Anfrage.

Merkmale

- 170 m² Halle - beheizt
- Außenbereich / Freifläche optional bis ca. 1000 m²
- 2 große, elektrische Tore (4,20m Höhe)
- Baujahr 2001
- Gasheizung
- Wärmepumpe kommt neu zeitnah
- WC
- Kühlraum
- Vordach

Grundrisse

Grundrisse
1 / 2
Immowelt logo

Mietkosten

Warmmiete
1.700 €
Nettomiete
1.020 €
Nebenkosten
680 €
Heizkosten
in Warmmiete enthalten
Provision für Mieter
Courtage 3 Kaltmieten zzgl. 19 % MwSt. zu zahlen vom Mieter. Es gelten die AGB. inkl. MwSt.
Kaution
3 Kaltmieten
Weitere Preisinformationen
Nettokaltmiete: 1.020,00 EUR

Lage

address-icon
PutensenSalzhausen (21376)
Der Anbieter hat die genaue Adresse nicht freigegeben
Diese tollen Gewerbehallen liegen in Salzhausen im südlichen Einzugsbereich der Metropolregion Hamburg und befindet sich in einem gewachsenen, überwiegend kleinteilig geprägten Gewerbeumfeld. Der Standort eignet sich besonders für kleinere Unternehmen, Handwerksbetriebe sowie Betriebe mit Werkstatt- und Lagercharakter, die eine funktionale und gut erreichbare Betriebsstätte suchen.

Die verkehrliche Anbindung ist gut. Über die nahegelegene Autobahn A7 besteht eine schnelle Verbindung in Richtung Hamburg und Hannover sowie zu weiteren regionalen Wirtschaftsstandorten. Ergänzend sorgen gut ausgebaute Straßen für eine zuverlässige Erreichbarkeit im regionalen Umfeld. Anlieferungen und Abholungen sind problemlos möglich, auch mit Transportern oder kleineren Lkw.

Das Umfeld ist ruhig und praxisorientiert, ohne innerstädtische Einschränkungen, und bietet damit ideale Voraussetzungen für Arbeiten, Lagern und leichte Produktion. Die Struktur des Gewerbegebiets erlaubt flexible Nutzungsmöglichkeiten und spricht insbesondere Betriebe an, die Wert auf eine effiziente Arbeitsumgebung legen.

Der Ortskern von Salzhausen mit Einkaufsmöglichkeiten, Gastronomie und weiteren Dienstleistungen ist in kurzer Zeit erreichbar. Auch eine Anbindung an den öffentlichen Nahverkehr ist vorhanden, was die Erreichbarkeit für Mitarbeiter zusätzlich erleichtert.

Insgesamt bietet der Standort eine solide, wirtschaftliche Gewerbelage mit Fokus auf kleinere Unternehmen, Werkstattbetriebe und Lagerflächen, die eine gute Anbindung mit einem funktionalen, bodenständigen Umfeld verbinden.

Weitere Informationen

Sonstiges Wir möchten, dass Sie zufrieden sind! Wir sind ein erfahrener Makler und seit 1987 tätig. Wir stehen Ihnen für alle Fragen rund um die Immobilie zur Verfügung. Sie möchten eine Bewertung ihrer Immobilie- wir kommen selbstverständlich unverbindlich zu Ihnen. Der Makler-Vertrag mit uns kommt durch schriftliche Vereinbarung oder durch die Inanspruchnahme unserer Maklertätigkeit auf der Basis des Objekt-Exposés und seiner Bedingungen zustande. Die Mietercourtage ist mit dem Zustandekommen des Mietvertrages (schriftlicher Mietvertragsabschluss) verdient und fällig.

Alle Angaben sind ohne Gewähr und basieren ausschließlich auf Informationen, die uns von unserem Auftraggeber zur Verfügung gestellt wurden. Wir übernehmen keine Gewähr für die Vollständigkeit, Richtigkeit und Aktualität dieser Angaben. Sollte das von uns nachgewiesene Objekt bereits bekannt sein, teilen Sie uns dieses bitte unverzüglich mit. Die Weitergabe dieses Exposés an Dritte ohne unsere Zustimmung löst gegebenenfalls Courtage- bzw. Schadenersatzansprüche aus. Irrtum und Zwischenverkauf vorbehalten. Stichworte Lagerfläche: 170,00 m², Gesamtfläche: 170,00 m²

Weitere Services

Lust auf eine Besichtigung?
Eine Frage zur Immobilie?
Mit einer persönlichen Nachricht hast du bessere Chancen auf eine Antwort.
Mit der Nutzung der oben angegebenen Telefonnummer oder durch Klicken auf „Kontaktieren“ akzeptierst Du die Allgemeinen Nutzungsbedingungen, denen Du jederzeit widersprechen kannst. Weitere Informationen zum Datenschutz

Über den Anbieter

Marquardtsweg 2, 21217 Seevetal
partner badge
6 Jahre Partnerschaft
Frau Melanie Bester
Frau Melanie BesterDein Kontakt
Online-ID: 26P2TLFLXEZY
Referenznummer: 1291
Wie zufrieden bist du mit dieser Seite (nicht mit der Immobilie selbst)?