Version: 8.26.0Navigation überspringen
1.068 €
2,5 Zimmer  •  106,8 m² Bürofläche
Immowelt logo

Büro zur Miete
1.068 €
2,5 Zimmer  •  106,8 m² Bürofläche

Büro-, Praxis- oder Kanzleiräume in Leipzig-Gohlis zu vermieten

Die helle Büroeinheit im 1. Obergeschoss des Objekts Coppistraße 55 in Leipzig-Gohlis-Mitte steht ab 01.04.2026 zur Verfügung.
*Eine frühere Anmietung ist nach Rücksprache möglich.*

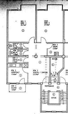
Neben den bereits aufgeführten Annehmlichkeiten umfasst die Einheit helle Räume mit einer großen Küche und separaten Sanitärbereichen für Gäste sowie Personal. Der Abstell- und Archivraum bieten Stauraum für Akten und Materialien und großem Empfang/Wartebereich.

Merkmale

  • frei ab sofort
  • 1. Geschoss
  • Personenaufzug
  • Bodenbelag: Laminat

Grundrisse

Grundrisse
1 / 1

Bausubstanz und Energie

Energieausweis

D
  • Baujahr1995
Immowelt logo

Mietkosten

Warmmiete
1.359,20 €
Nettomiete
1.068,20 €
Nebenkosten
291 €
Provision für Mieter
Bitte beachte, das Angebot kann bei Vertragsabschluss die Zahlung einer Provision beinhalten. Weitere Informationen erhältst Du vom Anbieter.
Kaution
3 KM

Lage

address-icon
Coppistrasse 55Gohlis-MitteLeipzig (04157)
Die Büroeinheit liegt im begehrten Stadtteil Gohlis, einem lebendigen und beliebten Viertel.

In unmittelbarer Nähe finden Sie zahlreiche Einkaufsmöglichkeiten, Cafés, Restaurants und kulturelle Angebote, die den täglichen Bedarf optimal abdecken.

Die Anbindung an den öffentlichen Nahverkehr ist hervorragend: Straßenbahn- und Bushaltestellen sind fußläufig gut erreichbar und gewährleisten schnelle Verbindungen in die City sowie andere Stadtteile. Auch mit dem Auto ist die Innenstadt schnell erreichbar, ebenso wie wichtige Verkehrsknotenpunkte und Autobahnen.

Weitere Informationen

Besichtigungstermine - nach Vereinbarung per E-Mail - Stichworte Sonstiges: Getrennte Damen- und Herren-WCs

Weitere Services

Lust auf eine Besichtigung?
Eine Frage zur Immobilie?
Mit einer persönlichen Nachricht hast du bessere Chancen auf eine Antwort.
Mit der Nutzung der oben angegebenen Telefonnummer oder durch Klicken auf „Kontaktieren“ akzeptierst Du die Allgemeinen Nutzungsbedingungen, denen Du jederzeit widersprechen kannst. Weitere Informationen zum Datenschutz

Über den Anbieter

Arnoldplatz 27, 04319 Leipzig
partner badgepartner badge
6 Jahre Partnerschaft + Diamond Partner
Herr Andreas KöhlerDein Kontakt
Online-ID: 26XQVXJRHULD
Referenznummer: Coppi_1li
Wie zufrieden bist du mit dieser Seite (nicht mit der Immobilie selbst)?