Version: 8.25.1Navigation überspringen
ohne-makler.net - Immobilien selbst vermarkten
289.900 €
4 Zimmer  •  109 m²  •  900 m² Grundstück

Einfamilienhaus zum Kauf - Erstbezug • provisionsfrei
289900 €
2.660 €/m²
4 Zimmer  •  109 m²  •  900 m² Grundstück

Charmanter, geräumiger Bungalow, provisionsfrei, inkl. Grundstück in Sonnewalde-Münchhausen!

Wohnen ohne Treppen - alles auf einer Ebene!

Provisionsfrei - direkt vom Eigentümer!

Dieser hochwertig gebaute Bungalow (Fertigstellung 2024) in Münchhausen bei Finsterwalde bietet Ihnen modernes, komfortables Wohnen mit viel Platz und einem großzügigen Grundstück.

HIGHLIGHTS DES HAUSES:





Massivbauweise, KfW-55 Standard, Energieeffizienzklasse A+

Fußbodenheizung, Daikin Luft-Wasser-Wärmepumpe mit 300 L Speicher

Elektrische Aluminium-Rollläden, 3-fach Verglasung, kontrollierte Lüftungsanlage

Großes, gefliestes Bad mit Dusche (90 x 90 cm, L-Lösung)

Hebe-Schiebetür im Wohnbereich für lichtdurchflutetes Wohnen

Hochwertige Dachziegel (Braas Rubin 9 V, royal grau)

Umfangreiche Elektroausstattung inkl. Netzwerkdosen

Option Generationenobjekt: Neben diesem Bungalow steht ein modernes Einfamilienhaus (151 m²) zum Verkauf. Beide Häuser können zusammen als Generationenobjekt erworben werden.

GRUNDSTÜCK:

ca. 900 m², eingefriedet mit Doppelstabmattenzaun (anthrazit, 143 cm hoch)

Elektrisches Rolltor (lichte Breite 3,80 m)

1 m breiter Pflanzstreifen für Hecken oder Beete vorbereitet

GESTALTUNGSSPIELRAUM:

Boden- und Wandbeläge sowie die Gartenanlage können Sie nach Ihren Wünschen umsetzen - so gestalten Sie Ihr neues Zuhause ganz individuell.

Merkmale

  • Bezug: nach Absprache
  • 900 m² Grundstück
  • 2 Stellplätze: 2 Außen-Stellplätze

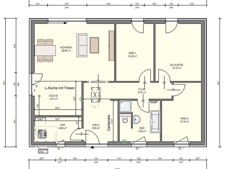
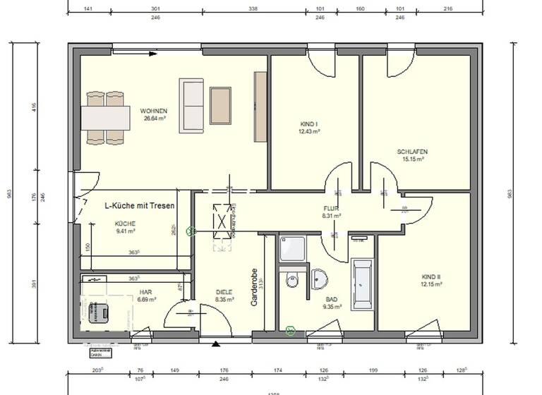
Grundrisse

Grundrisse
1 / 1

Realisiere Dein Projekt

Bausubstanz und Energie

Energieausweis

A+
  • Baujahr2024
  • Zustand der ImmobilieErstbezug
  • HeizungsartFußbodenheizung
  • EnergieträgerLuft-/Wasser-Wärmepumpe
MediumRectangleTop

Preisdetails

Kaufpreis
289900 €
2.659,63 €/m²
Provision für Käufer
provisionsfrei; keine Provision, courtagefrei
Weitere Preisinformationen
2 Stellplätze
Geschätzte Gesamtkosten
314.543 €1
Kaufpreis
289.900 €
Notarkosten (1,5%)
4.349 €
Grunderwerbsteuer (6,5%)
18.844 €
Grundbucheintrag (0,5%)
1.450 €
1Der angezeigte Wert ist eine automatisch berechnete Schätzung von immowelt.
2Bei den Angaben handelt es sich um ortsübliche Werte. Individuelle Kosten können abweichen.

Lage

address-icon
Ponnsdorfer Weg 4Münchhausen03249 Münchhausen (03249)
LAGE:

Münchhausen (Ortsteil von Sonnewalde, südliches Brandenburg) liegt nur wenige Minuten von Finsterwalde entfernt.

Einkaufsmöglichkeiten, Ärzte, Apotheken, Klinikum in Finsterwalde

Kitas und Grundschule in der Nähe

Gute Verkehrsanbindung über Buslinie 595 Richtung Finsterwalde und Luckau
Infrastruktur (im Umkreis von 5 km):
Apotheke, Lebensmittel-Discount, Allgemeinmediziner, Kindergarten, Grundschule, Hauptschule, Realschule, Gymnasium, Gesamtschule, Öffentliche Verkehrsmittel

Weitere Informationen

Sonstiges Heizungsart: Fußbodenheizung
Energieträger: Luft-/Wasserwärme


Makleranfragen nicht erwünscht. Nach § 7 UWG sind unaufgeforderte Kontaktaufnahmen durch Makler ohne ausdrückliche Einwilligung des Empfängers verboten!

ohne-makler (OM) ist weder Anbieter noch Vermittler der Immobilie. OM betreibt eine Plattform für Immobilieneigentümer, die unter anderem die gleichzeitige Veröffentlichung einzelner Inserate auf mehreren Immobilienportalen ermöglicht. Die Inhalte dieser Inserate werden ausschließlich von Dritten verantwortet. Für die Richtigkeit, Vollständigkeit oder Rechtmäßigkeit der Angaben übernimmt OM keine Haftung. Hinweise auf mögliche Rechtsverstöße können jederzeit gemeldet werden und werden nach Prüfung umgehend bearbeitet. Stichworte Stellplatz vorhanden, Nutzfläche: 109,00 m², Anzahl der Schlafzimmer: 3, Anzahl der Badezimmer: 1, Bundesland: Brandenburg

Weitere Services

Lust auf eine Besichtigung?
Eine Frage zur Immobilie?
Nachricht hinzufügen
Mit der Nutzung der oben angegebenen Telefonnummer oder durch Klicken auf „Kontaktieren“ akzeptierst Du die Allgemeinen Nutzungsbedingungen, denen Du jederzeit widersprechen kannst. Weitere Informationen zum Datenschutz

Über den Anbieter

Humboldtstr. 25 A, 21509 Glinde
partner badge
Partnerschaft
Privat von Matthias KrügerDein Kontakt
Keine Telefonnummer hinterlegt
Keine Telefonnummer hinterlegt
Online-ID: 2633AFKS4EJ5
Referenznummer: 433947
ohne-makler.net - Immobilien selbst vermarkten
ohne-makler.net - Immobilien selbst vermarkten
Nachricht hinzufügen
Mit der Nutzung der oben angegebenen Telefonnummer oder durch Klicken auf „Kontaktieren“ akzeptierst Du die Allgemeinen Nutzungsbedingungen, denen Du jederzeit widersprechen kannst. Weitere Informationen zum Datenschutz
MediumRectangleTop
MediumRectangleBottom
MediumRectangleTop
Wie zufrieden bist du mit dieser Seite (nicht mit der Immobilie selbst)?