Version: 8.25.1Navigation überspringen
team19 Immobilien GmbH
512 €
1 Zimmer  •  42,4 m²  •  1. Geschoss  •  frei ab 01.06.2026

Studio zur Miete
512 €
1 Zimmer  •  42,4 m²  •  1. Geschoss  •  frei ab 01.06.2026

Geräumige 1-Zimmer-Wohnung mit hochwertiger Ausstattung inklusive Einbauküche in unschlagbarer Lage!

MODERNES WOHNEN BEIM STADTZENTRUM - Neubauwohnungen in hervorragender Lage

In der Maximilianstraße x Ecke Kremser Landstraße in St. Pölten zwischen dem Hauptbahnhof und dem Universitätsklinikum wurden aufgeteilt auf zwei Stiegen Wohnungen zwischen 42m2 - 124m2 erbaut.

Die Liegenschaft zeichnet sich vor allem durch die tolle Lage mit Nähe zum Stadtzentrum (fußläufig in 7 Minuten zu erreichen) aus. Demnach ist auch die öffentliche Verkehrsanbindung durch den Hauptbahnhof (zu Fuß in 6 min erreichbar) ausgezeichnet.

Bei Bedarf besteht die Möglichkeit einen Stellplatz in der hauseigenen Tiefgarage anzumieten.

 

_Die Highlights für Sie zusammengefasst:_

-) Energieeffizienter Neubau

-) Hochwertige Ausstattung

-) Freiflächen (Garten, Terrasse, Balkon, Loggia)

-) Voll ausgestattete Küche inkludiert

-) 3-Scheiben-verglaste Kunststoff-Fenster mit Außenbeschattung

-) Mittels Fernwärme betriebene Fußbodenheizung

-) Garagenplätze anmietbar

-) Einlagerungsraum für jede Wohnung inkludiert

-) Begrünter, ruhiger Innenhof

-) Hervorragende Lage - wenige Minuten vom Hauptbahnhof und Stadtzentrum entfernt

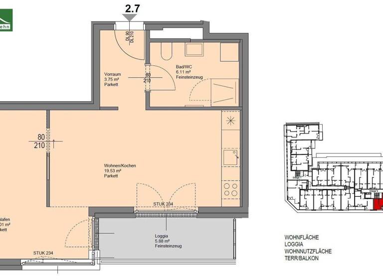
Wohnung Stiege 2 Top 7:

Verfügbar ab 01.06.2026

Die 2-Zimmer-Wohnung mit ca. 42,40 m² Wohnfläche  und ca. 5,88 m² Loggia liegt im 1. Obergeschoss und gliedert sich in folgende tolle Räume:

* Vorraum ca. 3,75 m²
* Badezimmer ca. 6,11 m²
* Wohnküche ca. 19,53 m²
* Zimmer ca. 13,01 m²

Bitte beachten Sie, dass es sich hier um eine Nachmietersuche handelt. Die Wohnung ist also derzeit noch bewohnt.

 

Kosten:

Der Mietpreis für die Wohnung beläuft sich auf 721,53 Euro (inkl. BK und USt.).

 

Der Mietpreis gliedert sich wie folgt:

Hauptmietzins: 511,57 Euro

Betriebskosten: 144,36 Euro

Umsatzsteuer: 65,60 Euro

Bei dem angeführten Mietpreis handelt es sich um eine Kaltmiete, somit sind sämtliche Energiekosten wie Warmwasser-, Heiz- und Stromkosten nicht inkludiert.

Ein Tiefgaragenstellplatz kann zusätzlich für monatlich € 79,80 (inkl. BK und USt.) angemietet werden.

 

Nebenkosten:

Kaution: 3 Monatsmieten

Die Wohnung kann ab dem 01.06.2026 bezogen werden und wird auf die befristete Dauer von 5 Jahren vermietet.

 

 In der unmittelbaren Umgebung befinden sich:

_-Einkaufsmöglichkeiten:_

 Penny Markt, Billa, Spar

 

_-Ärzte und Apotheken:_

 Universitätsklinikum, Hippolyt Apotheke

 

_-Öffentliche Verkehrsanbindungen:_

 St. Pölten Hauptbahnhof

 Bushaltestation Maximilianstraße 480

 Bushaltestation Daniel Gran Schule 470, 475

 

Energieausweis:

Der Heizwärmebedarf beträgt 32,01 kWh/m²a, welcher der Klasse B entspricht.

 

Für Fragen bzw. Besichtigungen steht Ihnen Frau Katharina Kurek sehr gerne unter 0676 852 243 512 oder via E-Mail unter Kurek@teamneunzehn.at zur Verfügung.

Wir weisen darauf hin, dass zwischen dem Vermittler und dem zu vermittelnden Dritten ein familiäres oder wirtschaftliches Naheverhältnis besteht.

Der Immobilienmakler erklärt, dass er - entgegen dem in der Immobilienwirtschaft üblichen Geschäftsgebrauch des Doppelmaklers - einseitig nur für den Vermieter tätig ist.

"Leben braucht Raum" * T19-RE Real Estate GmbH & Co KG * www.teamneunzehn.at [https://www.teamneunzehn.at]

Doppelmakler

Wir werden als Immobilienmakler kraft bestehenden Geschäftsgebrauchs als Doppelmakler tätig und haben sohin beide Seiten des Vertrages (Verkäufer-Käufer, Vermieter-Mieter) zu unterstützen.

Wirtschaftliches Naheverhältnis

Es wird bekannt gegeben, dass folgendes wirtschaftliches Naheverhältnis zwischen der teamneunzehn-Gruppe und dem Verkäufer/der vermietenden Partei besteht: ständige und dauerhafte Beauftragung mit der Vermittlung des bestehenden Immobilienportfolios

Haftungserklärung zum Inserat

Irrtum und Änderungen vorbehalten! Sofern es sich bei Bildern um Visualisierungen handelt, können Abänderungen zur tatsächlichen Ausführung resultieren. Wir weisen ausdrücklich darauf hin, dass das auf Fotos oder Visualisierungen ersichtliche Mobiliar bzw. Inventar nicht Bestandteil des inserierten Preises ist.

 

 

Infrastruktur / Entfernungen

Gesundheit
Arzt <275m
Apotheke <200m
Klinik <100m
Krankenhaus <375m

Kinder & Schulen
Schule <175m
Kindergarten <175m
Universität <475m
Höhere Schule <550m

Nahversorgung
Supermarkt <150m
Bäckerei <275m
Einkaufszentrum <475m

Sonstige
Bank <125m
Geldautomat <175m
Polizei <400m
Post <400m

Verkehr
Bus <100m
Bahnhof <375m
Autobahnanschluss <2.925m
Flughafen <6.425m

Angaben Entfernung Luftlinie / Quelle: OpenStreetMap

Merkmale

  • frei ab 01.06.2026
  • 1. Geschoss
  • Einbauküche, offene Küche
  • Personenaufzug
  • Bad mit Dusche
  • Bodenbelag: Fliesen, Parkett
  • Loggia

Grundrisse

Grundrisse
1 / 1

Realisiere Dein Projekt

Bausubstanz und Energie

Heizwärmebedarf (HWB)

B

Gesamtenergieeffizienz (fGEE)

A
  • Baujahr2017
  • Zustand der ImmobilieNeubau, Massivhaus
  • HeizungsartFußbodenheizung
  • EnergieträgerFernwärme
MediumRectangleTop

Mietkosten

Gesamtmiete
721,53 €
Nettokaltmiete
15,47 €/m²
511,57 €
Betriebskosten
144,36 €
Kaution
3 Bruttomonatsmieten
Weitere Preisinformationen
Nettokaltmiete: 511,57 EUR

Lage

address-icon
Kremser Landstraße 24St. Pölten (3100)
Nahe St. Pölten Hauptbahnhof, Universitätsklinikum, Maximilianstraße mit Ärztezentrum, Daniel-Gran-Straße mit Einkaufszentrum, Praterstraße, Fußgängerzone (Rathausplatz, Domplatz mit Wochenmarkt, City Shopping Promenade,...)

Weitere Informationen

Stichworte Tiefgarage vorhanden, West-Balkon/Terrasse, Fahrradraum, Rolladen, Nutzfläche: 48,28 m², Gesamtfläche: 48,28 m², Freifläche: 5,88 m², Anzahl der Badezimmer: 1, Anzahl der separaten WCs: 1, Anzahl Loggias: 1, Balkon-Terrassen-Fläche: 5,88 m², Bundesland: Niederösterreich, 5 Etagen, Wohnungsnr.: 7

Weitere Services

Lust auf eine Besichtigung?
Eine Frage zur Immobilie?
Nachricht hinzufügen
Mit der Nutzung der oben angegebenen Telefonnummer oder durch Klicken auf „Kontaktieren“ akzeptierst Du die Allgemeinen Nutzungsbedingungen, denen Du jederzeit widersprechen kannst. Weitere Informationen zum Datenschutz

Über den Anbieter

Handelskai 94-96/21. Stock, 1200 BRIGITTENAU
partner badge
Partnerschaft
Frau Katharina KurekDein Kontakt
Online-ID: 26W15A3V3D8V
Referenznummer: OBGC2026031814574649374b58b61d4
team19 Immobilien GmbH
team19 Immobilien GmbH
Nachricht hinzufügen
Mit der Nutzung der oben angegebenen Telefonnummer oder durch Klicken auf „Kontaktieren“ akzeptierst Du die Allgemeinen Nutzungsbedingungen, denen Du jederzeit widersprechen kannst. Weitere Informationen zum Datenschutz
MediumRectangleTop
MediumRectangleBottom
MediumRectangleTop
Wie zufrieden bist du mit dieser Seite (nicht mit der Immobilie selbst)?