Version: 8.25.1Navigation überspringen
VON POLL IMMOBILIEN München-Bogenhausen - Volker Stich
1.350.000 €
5 Zimmer  •  157 m²  •  EG

Wohnung zum Kauf
1350000 €
8.599 €/m²
5 Zimmer  •  157 m²  •  EG

STILVOLLE ERDGESCHOSSWOHNUNG IN GIESING

Diese stilvolle 5 Zimmerwohnung befindet sich in einem 1933 erbauten Mehrfamilienhaus, welches im Jahr 2016 modernisiert und um einen Anbau erweitert wurde. Die Wohnung besticht durch eine gelungene Aufteilung und den großzügigen Schnitt der Räume.

Die Räumlichkeiten erstrecken sich über eine Wohnfläche von ca. 157 m² - aufgeteilt auf zwei Ebenen. Im Erdgeschoss befindet sich der ca. 35 m² große, lichtdurchflutete Wohn- & Essbereich mit einer Fensterfront zum Garten. Bereits hier wird die hohe Qualität dieser Immobilie und die Liebe zum Detail sichtbar. Anschließend befindet sich zu Ihrer rechten Seite die Einbauküche mit integrierter Theke.

Die privaten Räumlichkeiten liegen im ursprünglichen Gebäudeteil. Hier befinden sich zwei Schlafzimmer mit jeweils ca. 16 m² sowie ein modernisiertes Badezimmer, welches über eine Badewanne und eine Dusche verfügt.

Der Garten sowie die Terrasse in Richtung Osten laden dazu ein, energiegeladen in den neuen Tag zu starten und die Morgensonne zu genießen.

Der dazugehörige Souterrainbereich ist komplett ausgebaut und ebenfalls, wie der Rest der Wohnung, mit einer Fußbodenheizung ausgestattet. Aufgeteilt ist die untere Ebene in drei Räume, welche flexibel als Büro, Gästezimmer, Lagerfläche oder Hobbyräume genutzt werden können. Zusätzlich gibt es zwei Abstellräume. Hier sind die passenden Anschlüsse für eine Waschmaschine und einen Trockner vorhanden.

Eine weitere Besonderheit der Wohnung ist ein über einen eigenen Eingang erreichbares Zimmer mit zusätzlichem Duschbad. Dieses eignet sich ideal als Büro oder Gästezimmer.

Gerne stehen wir Ihnen für einen Besichtigungstermin zur Verfügung und freuen uns auf Ihre Anfrage.

Merkmale

  • Erdgeschoss
  • Einbauküche
  • Gäste-WC
  • Keller
  • Garten
* Modernisierung und Anbau 2016
* Offener Wohn-/Essbereich
* Hochwertige Einbauküche
* Abstellraum mit Anschlüssen für Waschmaschine und Trockner
* Terrasse
* Garten
* Außenrollos (teilweise elektrisch)
* Fußbodenheizung
* Haus im Haus Charakter (eigener Eingang)
* Wasserenthärtungs- und Dosieranlage im Keller (Pflege und Erhalt der wasserführenden Leitungen)

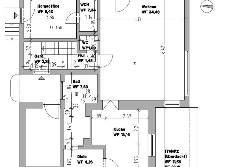
Grundrisse

Grundrisse
1 / 2

Realisiere Dein Projekt

Bausubstanz und Energie

Energieausweis

B
  • Baujahr1933
  • HeizungsartFußbodenheizung
  • EnergieträgerGas

Preisdetails

Kaufpreis
1350000 €
8.598,73 €/m²
Hausgeld
330 €
Provision für Käufer
Käuferprovision beträgt 3,57 % (inkl. MwSt.) des beurkundeten Kaufpreises
Geschätzte Gesamtkosten
1.472.445 €1
Kaufpreis
1.350.000 €
Notarkosten (1,5%)
20.250 €
Grunderwerbsteuer (3,5%)
47.250 €
Provision für Käufer (3,57%)
48.195 €
Grundbucheintrag (0,5%)
6.750 €
1Der angezeigte Wert ist eine automatisch berechnete Schätzung von immowelt.
2Bei den Angaben handelt es sich um ortsübliche Werte. Individuelle Kosten können abweichen.

Lage

address-icon
Ramersdorf-PerlachMünchen (81539)
Der Anbieter hat die genaue Adresse nicht freigegeben
Die Wohnung selbst befindet sich in wunderschöner Lage und ist umgeben von traumhaften Grünflächen und Parks. Neben dem Balan-Park ist auch der Grünstadter Park in unmittelbarer Nähe. Diese bieten sich ideal für einen Spaziergang oder eine Joggingrunde nach dem Arbeiten an.

Darüber hinaus sind mehrere Spielplätze und zahlreiche Einkaufsmöglichkeiten über den täglichen Bedarf hinaus fußläufig zu erreichen.

Vom Objekt aus sind es ca. 3 Minuten zu Fuß bis zur nächsten Bushaltestelle "Klagenfurter Straße" und nur ca. 12 Minuten zum nahe gelegenen Bahnhof "Giesing". Von dort aus gelangt man mit der Bahn in nur ca. 4 Minuten zum Ostbahnhof München, in ca. 12 Minuten zum Marienplatz und in ca. 49 Minuten zum Flughafen München.

Weitere Informationen

Sonstiges GELDWÄSCHE: Als Immobilienmaklerunternehmen ist die von Poll Immobilien GmbH nach § 2 Abs. 1 Nr. 14 und § 11 Abs. 1, 2 Geldwäschegesetz (GwG) dazu verpflichtet, bei der Begründung einer Geschäftsbeziehung die Identität des Vertragspartners festzustellen und zu überprüfen, bzw. sobald ein ernsthaftes Interesse an der Durchführung des Immobilienkaufvertrages besteht. Hierzu ist es erforderlich, dass wir nach § 11 Abs. 4 GwG die relevanten Daten Ihres Personalausweises festhalten (wenn Sie als natürliche Person handeln) - beispielsweise mittels einer Kopie. Bei einer juristischen Person benötigen wir eine Kopie des Handelsregisterauszugs, aus welchem der wirtschaftlich Berechtigte hervorgeht. Das Geldwäschegesetz sieht vor, dass der Makler die Kopien bzw. Unterlagen fünf Jahre aufbewahren muss. Als unser Vertragspartner haben Sie auch eine Mitwirkungspflicht nach § 11 Abs. 6 GwG.

HAFTUNG: Wir weisen darauf hin, dass die von uns weitergegebenen Objektinformationen, Unterlagen, Pläne etc. vom Verkäufer bzw. Vermieter stammen. Eine Haftung für die Richtigkeit oder Vollständigkeit der Angaben übernehmen wir daher nicht. Es obliegt daher unseren Kunden, die darin enthaltenen Objektinformationen und Angaben auf ihre Richtigkeit hin zu überprüfen. Alle Immobilienangebote sind freibleibend und vorbehaltlich Irrtümer, Zwischenverkauf- und Vermietung oder sonstiger Zwischenverwertung.

UNSER SERVICE FÜR SIE ALS EIGENTÜMER:
Planen Sie den Verkauf oder die Vermietung Ihrer Immobilie, so ist es für Sie wichtig, deren Marktwert zu kennen. Lassen Sie kostenfrei und unverbindlich den aktuellen Wert Ihrer Immobilie professionell durch einen unserer Immobilienspezialisten einschätzen. Unser bundesweites und internationales Netzwerk ermöglicht es uns, Verkäufer bzw. Vermieter und Interessenten bestmöglich zusammenzuführen. Stichworte Anzahl der Schlafzimmer: 2, Anzahl der Badezimmer: 2, Bundesland: Bayern, 3 Etagen, modernisiert

Weitere Services

Lust auf eine Besichtigung?
Eine Frage zur Immobilie?
Nachricht hinzufügen
Mit der Nutzung der oben angegebenen Telefonnummer oder durch Klicken auf „Kontaktieren“ akzeptierst Du die Allgemeinen Nutzungsbedingungen, denen Du jederzeit widersprechen kannst. Weitere Informationen zum Datenschutz

Über den Anbieter

Ismaninger Straße 118, 81679 München
partner badge
Partnerschaft
VON POLL IMMOBILIEN Shop München-BogenhausenDein Kontakt
Online-ID: 26BLMXMFZAYA
Referenznummer: 26 391 009
VON POLL IMMOBILIEN München-Bogenhausen - Volker Stich
VON POLL IMMOBILIEN München-Bogenhausen - Volker Stich
Nachricht hinzufügen
Mit der Nutzung der oben angegebenen Telefonnummer oder durch Klicken auf „Kontaktieren“ akzeptierst Du die Allgemeinen Nutzungsbedingungen, denen Du jederzeit widersprechen kannst. Weitere Informationen zum Datenschutz
Wie zufrieden bist du mit dieser Seite (nicht mit der Immobilie selbst)?