Version: 8.26.0Navigation überspringen
15 €
8.856 m² Bürofläche  •  teilbar ab 310 m²
Immowelt logo

Bürofläche zur Miete • provisionsfrei
15 €
/m²
8.856 m² Bürofläche  •  teilbar ab 310 m²

Moderne Büroflächen in gefragter Lage - JLL

Das Objekt überzeugt bereits durch seine moderne und zeitlose Architektur, welche sich im Inneren des Gebäudes fortsetzt. Dieses Objekt lässt keine Wünsche offen - lichtdurchflutete, zeitlose und moderne Flächen laden zum arbeiten ein. Hier bietet sich Ihnen die Möglichkeit die Flächen individuell mitzugestalten und sie ganz nach Ihren Wünschen einzurichten und aufzuteilen. Eine Übernahme des Mobiliars ist ebenfalls möglich. Ausreichend Stellplätze stehen den künftigen Mietern sowohl im Außen- als auch im Innenbereich ausreichend zur Verfügung.

Merkmale

  • Bezug: Sofort
  • Personenaufzug
  • Teeküche
  • 123 Stellplätze: 123 Außen-Stellplätze
  • voll klimatisiert
Besonderheiten:
- Lagerflächen können zu 9,50 EUR/m² angemietet werden
- Terrassenfläche im 4. OG

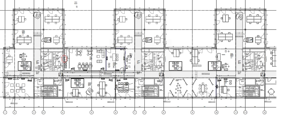
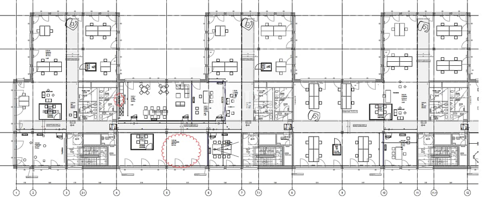
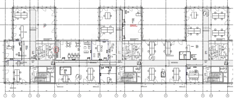
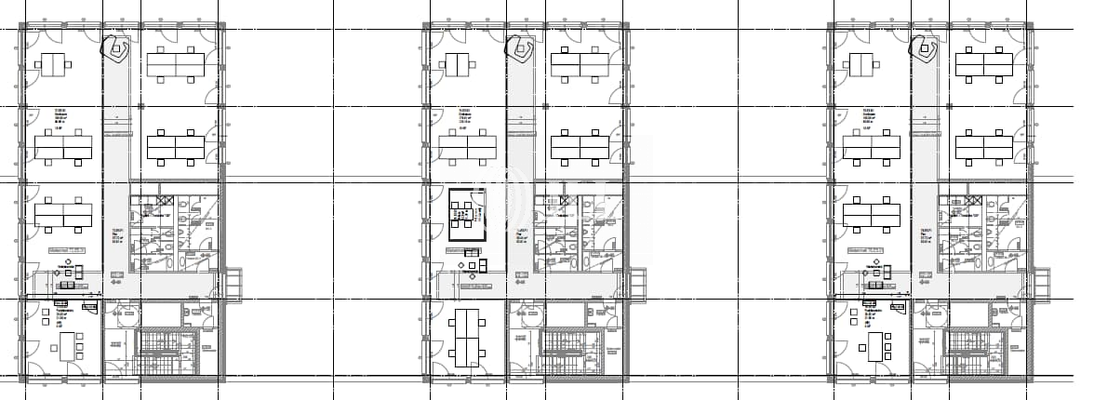
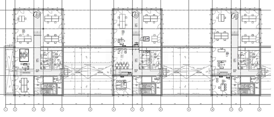
Grundrisse

Grundrisse
1 / 11

Bausubstanz und Energie

Energieausweis

Endenergiebedarf (Wärme)

Endenergiebedarf (Strom)

  • Baujahr2019
Immowelt logo

Mietkosten

Monatliche Miete
15 €/m²
Nebenkosten
3 €
Zusätzliche Kosten
Miete pro Stellplatz
90 €
Provision für Mieter
provisionsfrei; provisionsfrei für den Mieter/Käufer
Kaution
keine Angabe
Weitere Preisinformationen
123 Stellplätze, Miete je: 90,00 EUR

Lage

address-icon
Bad CannstattStuttgart (70376)
Der Anbieter hat die genaue Adresse nicht freigegeben
Der moderne Neubau befindet sich zwischen namhaften Herstellerfirmen direkt in Stuttgart Bad-Cannstatt. Bad Cannstatt ist der größte und einwohnerstärkste Stadtbezirk der Landeshauptstadt Stuttgart, mit insgesamt 18 Stadtteilen. Der Stadtbezirk ist vor allem für die Mineralbäder, Sport- und Kulturveranstaltungen und für namhafte Unternehmen bekannt. Mit direkter Anbindung an die Bundesstraßen B 10, B 27 und B 14 ist Bad Cannstatt optimal zu erreichen. Die Stuttgarter Innenstadt ist mit mehreren S- Bahn, U-Bahn und Bushaltestellen in wenigen Minuten erreichbar. Insbesondere die in direkter Nähe des Objekts befindlichen U-Bahnstationen sorgen mit den Linien U12, U13 und U16 für eine optimale Anbindung. Durch Regionalbahnanschlüssen gelangt man in weitere Städte wie beispielsweise Tübingen und Ulm. Außerdem bietet Bad Cannstatt ein breitgefächertes Angebot an Einzelhändlern, Nahversorger und Restaurants. Mehrere Parks und Grünflächen laden zur Erholung und Entspannung ein. Eine Tankstelle befindet sich in der Nähe. Dienstleister des täglichen Bedarfs befinden sich in der Nähe.

Weitere Informationen

Stichworte Gesamtfläche: 8.880,92 m²

Weitere Services

Lust auf eine Besichtigung?
Eine Frage zur Immobilie?
Mit einer persönlichen Nachricht hast du bessere Chancen auf eine Antwort.
Mit der Nutzung der oben angegebenen Telefonnummer oder durch Klicken auf „Kontaktieren“ akzeptierst Du die Allgemeinen Nutzungsbedingungen, denen Du jederzeit widersprechen kannst. Weitere Informationen zum Datenschutz

Über den Anbieter

Kleiner Schloßplatz 13, 70173 Stuttgart
partner badge
Partnerschaft
Herr Peter GentDein Kontakt
Online-ID: 2337VWD7PZ39
Referenznummer: 4@of63243@14@0
Wie zufrieden bist du mit dieser Seite (nicht mit der Immobilie selbst)?