Version: 8.24.0Navigation überspringen
119.900 €
26 m²  •  200 m² Grundstück  •  frei ab 01.05.2026
Immowelt logo

Chalet zum Kauf - Erstbezug • provisionsfrei
119900 €
4.612 €/m²
26 m²  •  200 m² Grundstück  •  frei ab 01.05.2026

TinyChalet Hochgern by Köhldorfner - natürlich g´sund

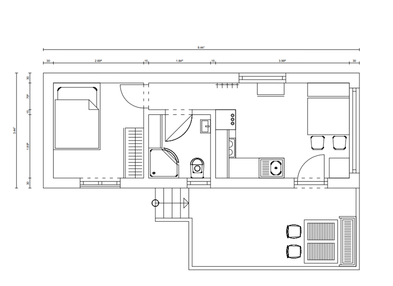
Das TinyChalet Hochgern zeigt eindrucksvoll, wie viel Wohnkomfort auf kompakten 26 m² möglich ist. Der Grundriss überzeugt durch eine flexible und klug konzipierte Raumaufteilung, ideal für Singles, Paare oder die Nutzung als Homeoffice oder stilvolles Ferienchalet. Der helle Wohn- und Essbereich schafft ein einladendes Ambiente, während der separate Schlafraum angenehme Rückzugsmöglichkeiten bietet. Dank der gut durchdachten Planung eignet sich das Modell Hochgern perfekt für bis zu 2 Personen. Große Fensterflächen sorgen für eine natürliche, freundliche Lichtstimmung und lassen das Chalet größer wirken, als es ist. Die maßgefertigte Schreinerküche sowie das vollständig ausgestattete Badezimmer gehören zur hochwertigen Standardausstattung und ermöglichen ein direktes Einziehen. Die technische Grundausstattung umfasst Fußboden- und Natursteinheizung, dezentrale Wohnraumlüftung und moderne LED-Beleuchtung. Ein Klimagerät kann optional integriert werden, um zusätzlichen Komfort zu schaffen. Das TinyChalet Hochgern besteht aus 99 % natürlichem Holz, ist folienfrei aufgebaut und bietet ein angenehm gesundes Raumklima. Die Montage auf Schraubfundamenten ermöglicht eine völlig bodenversiegelungsfreie und umweltfreundliche Installation, die zudem flexibel rückbaubar ist. Optional kann das Chalet mit einer PV-Anlage und Speicher nahezu autark betrieben werden. Das charmante Vordach schützt den Eingangsbereich zuverlässig vor Witterung und unterstreicht gleichzeitig den stilvollen Charakter des Chalets. Durch die hohe Vorfertigung ist das Modell Hochgern innerhalb eines Tages bezugsfertig, die vollständige Fertigstellung – inklusive Terrasse, Vordach und optionaler PV-Anlage – erfolgt innerhalb von nur zwei Tagen. Ein kompaktes, nachhaltiges Wohnkonzept, das durch Flexibilität, Qualität und moderne Holzarchitektur begeistert.

Merkmale

  • frei ab 01.05.2026
  • 200 m² Grundstück
  • offene Küche
  • Kein Keller
  • Außen-Stellplatz
  • 1 WC
  • Terrasse (gesamt 8 m²)
  • Barrierefrei, Rollstuhlgerecht

Grundrisse

Grundrisse
1 / 1

Realisiere Dein Projekt

Bausubstanz und Energie

Energieausweis

Ein Energieausweis ist für diesen Gebäudetyp nicht notwendig.
  • Zustand der ImmobilieErstbezug
  • HeizungsartWand- und Deckenheizung
Immowelt logo

Preisdetails

Kaufpreis
119900 €
4.611,54 €/m²
Provision für Käufer
provisionsfrei
Geschätzte Gesamtkosten
126.496 €1
Kaufpreis
119.900 €
Notarkosten (1,5%)
1.799 €
Grunderwerbsteuer (3,5%)
4.197 €
Grundbucheintrag (0,5%)
600 €
1Der angezeigte Wert ist eine automatisch berechnete Schätzung von immowelt.
2Bei den Angaben handelt es sich um ortsübliche Werte. Individuelle Kosten können abweichen.

Lage

address-icon
NeudeckWasserburg am Inn (83547)
Der Anbieter hat die genaue Adresse nicht freigegeben
Lagevorteile – Neudeck 7, Wasserburg am Inn Dieses TinyChalet steht in bevorzugter, ruhiger Wohnlage von Wasserburg am Inn – ideal für alle, die naturnah wohnen und dennoch schnell in der Stadt sein möchten. Die charmante Altstadt mit Einkaufsmöglichkeiten, Cafés und Restaurants ist nur wenige Minuten entfernt. Die Infrastruktur rund um den Standort ist hervorragend: Nahversorgung: Supermärkte, Bäcker, Ärzte & Apotheken in unmittelbarer Nähe Familienfreundlich: Schulen und Kindergärten schnell erreichbar Mobilität: Bushaltestellen fußläufig; Bahnhof Wasserburg (Reitmehring) mit Verbindung nach München, Rosenheim, Mühldorf und Salzburg Kurze Wege zur B304 für eine schnelle Anbindung in die Region Besonders attraktiv ist der hohe Freizeit- und Erholungswert: Spazier- und Radwege, das Inn-Ufer, Sportanlagen sowie die kulturellen Angebote der historischen Altstadt machen die Lage zu einem idealen Wohnort – ruhig, grün und zugleich bestens angebunden.

Weitere Informationen

Das Grundstück mit ca. 250 m² kann auf flexible Laufzeit gepachtet werden – für nur ca. 250 € pro Monat. Eine attraktive Möglichkeit, hochwertiges Wohnen ohne Grundstückskauf zu realisieren. Kontaktieren Sie uns gerne für weitere Informationen oder eine Besichtigung

Weitere Services

Lust auf eine Besichtigung?
Eine Frage zur Immobilie?
Nachricht hinzufügen
Mit der Nutzung der oben angegebenen Telefonnummer oder durch Klicken auf „Kontaktieren“ akzeptierst Du die Allgemeinen Nutzungsbedingungen, denen Du jederzeit widersprechen kannst. Weitere Informationen zum Datenschutz

Über den Anbieter

Stangern 7, 83530 Schnaitsee
Frau Andrea   Köhldorfner
Frau Andrea KöhldorfnerDein Kontakt
Online-ID: 2m8er5n
Köhldorfner Holzbau GmbH
title
Köhldorfner Holzbau GmbH
Nachricht hinzufügen
Mit der Nutzung der oben angegebenen Telefonnummer oder durch Klicken auf „Kontaktieren“ akzeptierst Du die Allgemeinen Nutzungsbedingungen, denen Du jederzeit widersprechen kannst. Weitere Informationen zum Datenschutz
Wie zufrieden bist du mit dieser Seite (nicht mit der Immobilie selbst)?