Version: 8.25.1Navigation überspringen
13,50 €
6.330 m² Bürofläche  •  teilbar ab 180 m²
Immowelt logo

Bürofläche zur Miete • provisionsfrei
13,50 €
/m²
6.330 m² Bürofläche  •  teilbar ab 180 m²

Provisionsfrei | Stadion-Nähe | Vielseitige Büroflächen

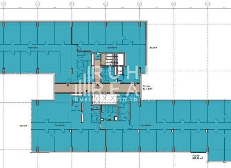
Die angebotenen Büroflächen befinden sich in einem modernen Bürogebäude und bieten großzügige sowie flexibel nutzbare Arbeitsflächen auf mehreren Etagen. Zur Vermietung stehen Büroflächen im 2. bis zum 6. Obergeschoss mit jeweils ca. 1.266 m² zur Verfügung. Insgesamt umfasst das Flächenangebot ca. 6.330 m² Bürofläche. Die Flächen sind ab ca. 180 m², 200 m², 380 m² oder 510 m² teilbar und ermöglichen dadurch unterschiedliche Nutzungskonzepte für Unternehmen verschiedener Größen. Der Mietpreis beträgt ca. 13,50 EUR pro m², der Bezug erfolgt nach Vereinbarung. Die Büroeinheiten überzeugen durch eine funktionale Raumaufteilung sowie eine Teilklimatisierung, die für ein angenehmes Arbeitsklima sorgt. Das im Jahr 2000 errichtete Gebäude bietet moderne und effiziente Büroflächen, die sich ideal für klassische Bürostrukturen sowie flexible Arbeitskonzepte eignen.

Merkmale

  • Bezug: nach Vereinbarung
  • Personenaufzug
  • Kochnische, Speisekammer
  • Bodenbelag: Laminat, Kunststoff, Teppich
. Baujahr: 2000
. funktionale Raumaufteilung
. Teilklimatisierung

Grundrisse

Grundrisse
1 / 4

Realisiere Dein Projekt

Bausubstanz und Energie

Energieausweis

Endenergiebedarf (Wärme)

Endenergiebedarf (Strom)

  • Baujahr2000
  • Zustand der ImmobilieGepflegt
  • EnergieträgerElektro, Erdwärme
Immowelt logo

Mietkosten

Monatliche Miete
13,50 €/m²
Zusätzliche Kosten
Heizkosten
Provision für Mieter
provisionsfrei; Bei Verträgen bis zu fünf Jahren Laufzeit ist ein Honorar von 3 Nettomonatsmieten vom Mieter an RUHR REAL zahlbar; bei Laufzeiten bis zu zehn Jahren werden 4 Nettomonatsmieten fällig. Hinzu kommt die jeweils gültige Umsatzsteuer.
Kaution
keine Angabe

Lage

address-icon
MüngersdorfKöln (50933)
Der Anbieter hat die genaue Adresse nicht freigegeben
Die Büroflächen befinden sich in gut erreichbarer Lage im Kölner Süden, in einem etablierten gewerblich geprägten Umfeld nahe dem RheinEnergieStadion. Der Standort überzeugt durch seine verkehrsgünstige Anbindung und bietet zugleich ein funktionales, professionelles Arbeitsumfeld für unterschiedliche Unternehmensgrößen und Nutzungskonzepte. Sowohl die Kölner Innenstadt als auch weitere wichtige Wirtschaftsstandorte im Stadtgebiet sind in kurzer Zeit erreichbar, was den Standort für Mitarbeitende, Kunden und Geschäftspartner gleichermaßen attraktiv macht. In der Umgebung finden sich zudem verschiedene Angebote aus den Bereichen Gastronomie, Dienstleistungen sowie Sport und Freizeit, die den Arbeitsalltag zusätzlich bereichern. Insgesamt verbindet die Lage eine gute Erreichbarkeit mit einem etablierten gewerblichen Umfeld und bietet damit passende Voraussetzungen für moderne und effiziente Büronutzungen.

Weitere Informationen

Sonstiges Es gelten ausschließlich unsere AGB (www.ruhr-real.de/agb). Wir möchten Sie darauf hinweisen, dass die Angaben ausschließlich auf den uns vom Eigentümer übermittelten Unterlagen und Informationen basieren. Für Richtigkeit und Vollständigkeit übernehmen wir keine Gewähr. Zwischenvermietung vorbehalten. Stichworte Sonstiges: EDV-Verkabelung

Weitere Services

Lust auf eine Besichtigung?
Eine Frage zur Immobilie?
Mit einer persönlichen Nachricht hast du bessere Chancen auf eine Antwort.
Mit der Nutzung der oben angegebenen Telefonnummer oder durch Klicken auf „Kontaktieren“ akzeptierst Du die Allgemeinen Nutzungsbedingungen, denen Du jederzeit widersprechen kannst. Weitere Informationen zum Datenschutz

Über den Anbieter

Holsterhauser Platz 2, 45147 Essen
partner badge
6 Jahre Partnerschaft
Herr Lars LaufenbergDein Kontakt
Online-ID: 26ME7VDZ8J11
Referenznummer: 4913/G1/E6
RUHR REAL GmbH
RUHR REAL GmbH
Mit einer persönlichen Nachricht hast du bessere Chancen auf eine Antwort.
Mit der Nutzung der oben angegebenen Telefonnummer oder durch Klicken auf „Kontaktieren“ akzeptierst Du die Allgemeinen Nutzungsbedingungen, denen Du jederzeit widersprechen kannst. Weitere Informationen zum Datenschutz
Wie zufrieden bist du mit dieser Seite (nicht mit der Immobilie selbst)?