Version: 8.26.0Navigation überspringen
ohne-makler.net - Immobilien selbst vermarkten
Mietkosten auf Anfrage

Ausstellungsfläche zur Miete • provisionsfrei
Mietkosten auf Anfrage

Vielseitig nutzbare Gewerbefläche mit großem Gestaltungsspielraum, 8€ pro m²

Diese vielseitig nutzbare Gewerbefläche im 1. Obergeschoss eines gepflegten Wohn- und Geschäftshauses bietet auf rund 380 m² eine großzügige Grundlage für beispielsweise moderne Arbeits-, Präsentations-, Fitnessraum- oder Schulungskonzepte.
Die offene, langgestreckte Grundstruktur eignet sich auch ideal für Unternehmen, die große, zusammenhängende Bereiche benötigen - beispielsweise für Showrooms, Schulungsräume, offene Bürolandschaften, Kreativ- oder Praxisbereiche.
Zahlreiche Fenster sorgen dafür, dass die Fläche hell und lichtdurchflutet ist und viel Spielraum für individuelle Aufteilungen, Arbeitsinseln oder Präsentationsflächen bittet. Mehrere abgetrennte Räume sowie Sanitärbereiche und ein Bistrobereich (kann nach Wunsch demontiert werden) runden das Angebot ab.
Die Fläche befindet sich in einem gepflegten Zustand und kann nach Absprache teilsaniert oder renoviert übergeben werden. Dadurch eröffnen sich vielfältige Möglichkeiten, die Immobilie exakt an Ihr Nutzungskonzept anzupassen.

Merkmale

  • Bezug: sofort
  • 1. Geschoss
  • Bodenbelag: Kunststoff, Teppich
Gäste-WC, Teppichboden

Bemerkungen:
.Variable Nutzungsmöglichkeiten und großzügige, offene Raumstruktur - ideal z.B. für Showroom, Büro, Schulung, Praxis, Studio oder Agenturen sowie für Präsentationsflächen, moderne Arbeitswelten bis hin zum kleinen Lagerflächen
.Flexible Raumgestaltung: Auf Wunsch können Trennwände verändert oder ergänzt werden
.Parkplätze: Außenstellplätze & Tiefgaragenplätze auf Wunsch verfügbar
.Sanitäranlagen vorhanden

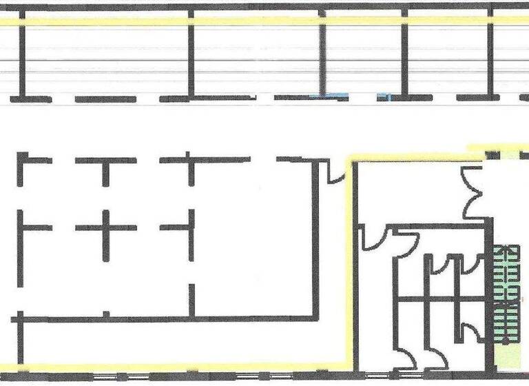
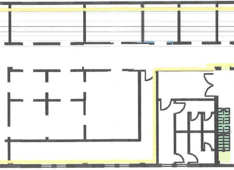
Grundrisse

Grundrisse
1 / 1

Bausubstanz und Energie

Energieausweis

Endenergieverbrauch (Wärme)

Endenergieverbrauch (Strom)

  • Baujahr1995
  • Zustand der ImmobilieGepflegt
  • HeizungsartZentralheizung
  • EnergieträgerGas
MediumRectangleTop

Mietkosten

Miete auf Anfrage
Provision für Mieter
provisionsfrei; keine Provision, courtagefrei
Kaution
keine Angabe

Lage

address-icon
Wilhelmstraße 78Reilingen (68799)
Die Immobilie befindet sich in gut erschlossener Lage in Reilingen. Der Standort bietet eine gute Verkehrsanbindung genau zwischen A5 (6 km, 7 Minuten) und A6 (11 km, 10 Minuten) und ist mit dem Auto und mit öffentlichen Verkehrsmitteln gut zu erreichen. In der Umgebung befinden sich zahlreiche Geschäfte, Dienstleister und gastronomische Angebote.
Infrastruktur (im Umkreis von 5 km):
Apotheke, Lebensmittel-Discount, Allgemeinmediziner, Kindergarten, Grundschule, Gesamtschule, Öffentliche Verkehrsmittel

Weitere Informationen

Sonstiges Heizungsart: Zentralheizung
Energieträger: Gas

HERAUSGEBER

SPGI Grundstücks GmbH
Wilhelmstraße 78
68799 Reilingen
Fon +49 (0)6205 977496
Fax +49 (0)6205 977468
spgi@schaumaplast.de

Angaben gemäß § 5 DDG (Gesetz über Nutzung von Telediensten)

Geschäftsführer: Bernhard Hauck, Markus Hoffmann
Sitz der Gesellschaft ist Reilingen.
Eingetragen beim Registergericht Mannheim HRB 753795

Umsatzsteueridentifikationsnummer: DE 453291862

Makleranfragen nicht erwünscht. Nach § 7 UWG sind unaufgeforderte Kontaktaufnahmen durch Makler ohne ausdrückliche Einwilligung des Empfängers verboten!

ohne-makler (OM) ist weder Anbieter noch Vermittler der Immobilie. OM betreibt eine Plattform für Immobilieneigentümer, die unter anderem die gleichzeitige Veröffentlichung einzelner Inserate auf mehreren Immobilienportalen ermöglicht. Die Inhalte dieser Inserate werden ausschließlich von Dritten verantwortet. Für die Richtigkeit, Vollständigkeit oder Rechtmäßigkeit der Angaben übernimmt OM keine Haftung. Hinweise auf mögliche Rechtsverstöße können jederzeit gemeldet werden und werden nach Prüfung umgehend bearbeitet. Stichworte Gesamtfläche: 380,00 m², Anzahl der separaten WCs: 1, Bundesland: Baden-Württemberg

Weitere Services

Lust auf eine Besichtigung?
Eine Frage zur Immobilie?
Mit einer persönlichen Nachricht hast du bessere Chancen auf eine Antwort.
Mit der Nutzung der oben angegebenen Telefonnummer oder durch Klicken auf „Kontaktieren“ akzeptierst Du die Allgemeinen Nutzungsbedingungen, denen Du jederzeit widersprechen kannst. Weitere Informationen zum Datenschutz

Über den Anbieter

Humboldtstr. 25 A, 21509 Glinde
partner badge
Partnerschaft
Privat von Barbara Nyga-MüllerDein Kontakt
Keine Telefonnummer hinterlegt
Keine Telefonnummer hinterlegt
Online-ID: 254C77VEI27R
Referenznummer: 404336
MediumRectangleTop
Wie zufrieden bist du mit dieser Seite (nicht mit der Immobilie selbst)?