
Immobilien Kühn
Herrn Michael Kühn
Kontaktiere den Anbieter schriftlich, es ist keine Telefonnummer hinterlegt.
Preise & Kosten
Provision für Käufer
provisionsfrei
Lage
Die Maisonettewohnung befindet sich in einem ruhigen und grünen Stadtteil von Kaarst, der für seine familienfreundliche Umgebung und die Nähe zur Natur bekannt ist. Der Stadtteil bietet eine gute Infrastruktur mit Einkaufsmöglichkeiten, Restaurants und Schulen in der Nähe. Zudem sind Grünflächen und Parks für Erholung und...
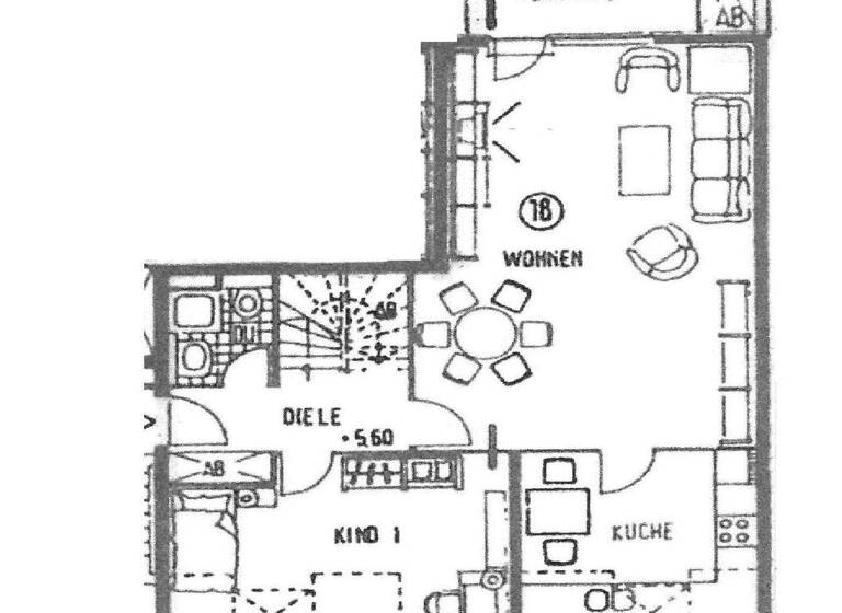
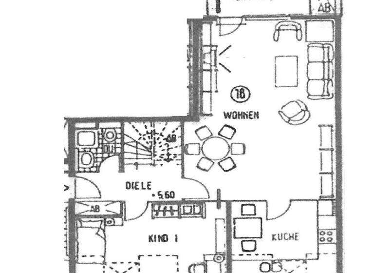
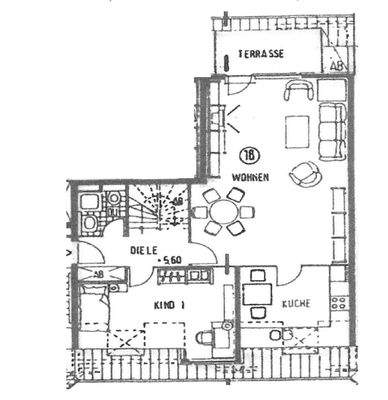
Die Wohnung
Kategorie
Maisonette
Wohnungslage
2. Geschoss
Bezug
nach Absprache
Wohnanlage
Energie & Heizung
Warum sehe ich diese Anzeige? – Du siehst diese Anzeige basierend auf Ihrer Navigation auf unserer Website und den Suchkriterien, die du verwendet hast.
Energieausweistyp
Verbrauchsausweis
Gebäudetyp
Wohngebäude
Baujahr laut Energieausweis
1993
Wesentliche Energieträger
Gas
Gültigkeit
25.03.2019 bis 24.03.2029
Effizienzklasse
D
Endenergieverbrauch
126,50 kWh/(m²·a)
Weitere Energiedaten
Energieträger
Gas
Heizungsart
Zentralheizung
Details
Objektbeschreibung
Die moderne Maisonettewohnung mit einer Wohnfläche von 115 m² befindet sich im Jahr 1993 erbauten Gebäude und erstreckt sich über die zwei Etagen. Das Gebäude verfügt insgesamt über 3 Etagen und wurde im Jahr 2025 zuletzt modernisiert. Ein Keller sowie ein Balkon mit einer Fläche von 6 m² sind vorhanden. Ein Parkplatz und...
Preisinformation
1 Stellplatz, Kaufpreis: 8.000,00 EUR
1 Garagenstellplatz, Kaufpreis: 15.000,00 EUR
Weitere Informationen
Stichworte
Tiefgarage vorhanden, Stellplatz vorhanden, Anzahl der Schlafzimmer: 3, Anzahl der Badezimmer: 2, Anzahl der separaten WCs: 1, Anzahl Balkone: 1, Balkon-Terrassen-Fläche: 6,00 m², Kellerfläche: 6,00 m², 2 Etagen, modernisiert: 2025, modernisiert
Anbieter der Immobilie
Immobilien Kühn
Lindenstr. 15, 41515 Grevenbroich
Herrn Michael Kühn
Dein Ansprechpartner
Kontaktiere den Anbieter schriftlich, es ist keine Telefonnummer hinterlegt.
Online-ID: 2mtb55k
Referenznummer: 588475#8MPwg4
Finde Angebote wie dieses
Hier geht es zu unserem Impressum, den Allgemeinen Geschäftsbedingungen, den Hinweisen zum Datenschutz und nutzungsbasierter Online-Werbung.